433 671 Р 5 800 $ или 4 950

Информация об помещении

3
Этаж

Состояние и оснащение

Количество этажей
5
Развернуть
Агент
+7 (986) 274-27-15
Начать чат с агентом

Помещение свободного назначения в Москва Хлебозаводский проезд, 7С5 ...

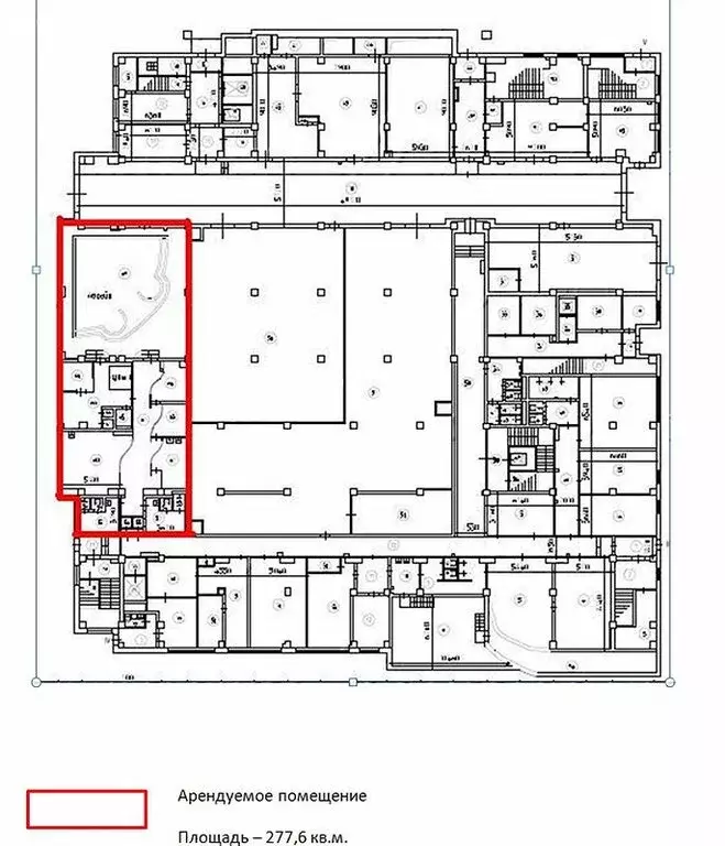
Лот 836842 Предложение от Собственника Предлагается помещение под офис площадью 281.30 м2. Помещение расположено 25 мин от м Нагорная. 3 этаж. Помещение меблировано. Система кондиционирования. Пропускная система. Есть круглосуточный доступ. Планировка - кабинетная. В цену включено: коммунальные расходы. Обеспечительный платеж 1 месяц.Чтобы получить ПОДРОБНУЮ ПРЕЗЕНТАЦИЮ С ПЛАНИРОВКОЙ И ФОТОГРАФИЯМИ, звоните или отправьте свой email и номер телефона в сообщении на портале. Высылаем в течение 15 минут по запросу Конт. лицо: Оксана , доб. 239, ЛОТ 836842

Читать полностью
    Позвонить Написать
    433 671 Р5 800 $ или 4 950
    Агент
    +7 (986) 274-27-15
    Начать чат с агентом
    Похожие предложения
    Помещение свободного назначения в Москва Доминион жилой комплекс (185 ... - Фото 1
    Помещение свободного назначения в Москва Доминион жилой комплекс (185 ... - Фото 2
    Сдается помещение с Дизайнерским ремонтом под указанные в объявлении цели.Рассмотрим все Ваши запросы и предложения. Метро рядом. Помещение имеет витринные окна. Ранее размещалось элитное ателье, представительский офис, картинная галерея, Детский досуговый...
    • 1/17 эт.
    420 000 Р
    Агент
    +7 (916) Показать номер
    Посмотреть контакты
    Помещение свободного назначения (42 м) - Фото 1
    Помещение свободного назначения (42 м) - Фото 2
    42 кв.м. [1 этаж] - торговое помещениеЛокация:• Ст. м. Проспект Вернадского – 1 минута пешком• Наземная парковка - 50 м/м• Жилой массив - примыкает непосредственно к зданию помещения• Деловой кластер – в окружении БЦ Вернадский – 21 000 кв.м., БЦ Академик...
    • 1/7 эт.
    420 002 Р
    Агент
    +7 (915) Показать номер
    Посмотреть контакты
    Помещение свободного назначения (155 м) - Фото 1
    Помещение свободного назначения (155 м) - Фото 2
    АРЕНДА ОТ СОБСТВЕННИКАМосква, наб. Озерковская, 12Звоните и пишите прямо сейчас — не упустите возможность арендовать коммерческое помещение в отличном месте Сотрудничаем с агентами.- Удобная транспортная доступность — всего несколько минут от метро.-...
    • 4 этажа
    426 250 Р
    Агент
    +7 (932) Показать номер
    Посмотреть контакты
    Помещение свободного назначения (277 м) - Фото 1
    Помещение свободного назначения (277 м) - Фото 2
    АРЕНДА ОТ 11 МЕС. Бизнес-центр класса B+, первая линия домов. Сдаётся под салон или медцентр блок с санузлом на первом этаже площадью 277 кв.м с отдельным входом с улицы. Стандартная отделка. 3 места на парковке.НДС и эксплуатационные расходы включены....
    • 1/6 эт.
    427 042 Р
    Агент
    +7 (966) Показать номер
    Посмотреть контакты
    Помещение свободного назначения (105.3 м) - Фото 1
    Помещение свободного назначения (105.3 м) - Фото 2
    Аренда помещения в ТЦ на ул. Перерва 8с1.Помещение 105,3 м2 с отдельным входом с фасада торгового центра «ПЕРЕРВА 8 , первая линия Хорошая видимостью с дороги.Гуcтонаceленный paйон Маpьино, на Юго-востоке Москвы, с плoтнoй высoкоэтaжнoй застройкой, более...
    • 1/2 эт.
    420 000 Р
    Агент
    +7 (906) Показать номер
    Посмотреть контакты

    Не нашли подходящего объявления?

    Оставьте заявку, и наши риэлторы подберут псн в районе Москвы

    (0)