2 578 800 Р 32 340 $ или 27 970

Информация об помещении

1
Этаж

Состояние и оснащение

Количество этажей
21
Развернуть
Агент
+7 (938) 656-74-88
Начать чат с агентом

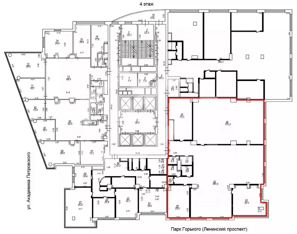
Помещение свободного назначения в Москва ул. Вавилова, 27 (921 м)

854182. Предлагаем помещение свободного назначения, площадью 921 кв. м., расположенное на 1 и -1 этаже жилого дома. Преимущества объекта:-первая линия ул. Вавилова;-ЖК состоит из двух 19-этажных корпусов, рассчитанных на 396 квартир;-пешая доступность от станции метро Академическая (13 минут пешком);-отлично просматривается, находится в легком доступе для потенциальных клиентов;-развитая инфраструктура в окружении;-гибкая планировка, позволяющая адаптировать пространство под различные нужды;-витринное остекление;-место для вывески;-все коммуникации центральные;-зона разгрузки/погрузки;-наземная парковка и рядом остановка общественного транспорта.Технические параметры объекта:-2 отдельные входные группы;-площадь по этажам:-1 этаж - 60.2 кв. м.,1 этаж - 860.8 кв. м.;-электрическая мощность: 180 кВт;-высота потолков: 6.5 м.Данный объект коммерческой недвижимости представлен на эксклюзивной основе компанией Invest7.Свяжитесь с нами для получения дополнительной информации

Читать полностью
    Позвонить Написать
    2 578 800 Р32 340 $ или 27 970
    Агент
    +7 (938) 656-74-88
    Начать чат с агентом
    Похожие предложения
    Помещение свободного назначения в Москва ул. Вавилова, 27 (921 м) - Фото 1
    Помещение свободного назначения в Москва ул. Вавилова, 27 (921 м) - Фото 2
    854182. Предлагаем помещение свободного назначения, площадью 921 кв. м., расположенное на 1 и -1 этаже жилого дома. Преимущества объекта:-первая линия ул. Вавилова;-ЖК состоит из двух 19-этажных корпусов, рассчитанных на 396 квартир;-пешая доступность...
    • 1/21 эт.
    2 578 800 Р
    Агент
    +7 (938) Показать номер
    Посмотреть контакты
    Помещение свободного назначения в Москва пер. Столешников, 13/15 (214 ... - Фото 1
    Помещение свободного назначения в Москва пер. Столешников, 13/15 (214 ... - Фото 2
    Предложение от собственника. С агентами не работаем Лот: 38632. Прекрасное расположение помещения в центре Москвы. Высокий пешеходный и автомобильный трафик. Общая площадь помещения: 213,68 кв. мРаспределение по площади: 1 этаж 82 кв.м, Антресоль...
    • 1/6 эт.
    2 699 990 Р
    Агент
    +7 (986) Показать номер
    Посмотреть контакты
    Помещение свободного назначения в Москва наб. Пресненская, 10блока ... - Фото 1
    Помещение свободного назначения в Москва наб. Пресненская, 10блока ... - Фото 2
    1144283. Предлагаем в аренду офисное помещение площадью 275 кв. м, расположенное в бизнес-центре Башня на Набережной Преимущества объекта:- Бизнес-центр класса А- Шаговая доступность от станции метро Деловой Центр, Москва-Сити (3 минуты пешком)- Этаж:...
    • 8/17 эт.
    2 516 250 Р
    Агент
    +7 (938) Показать номер
    Посмотреть контакты
    Помещение свободного назначения в Москва Ленинский просп., 15А (437 м) - Фото 1
    Помещение свободного назначения в Москва Ленинский просп., 15А (437 м) - Фото 2
    1138900. Предлагаем в аренду офисное помещение площадью 437,2 кв. м, расположенное в бизнес-центре Central Park Tower Преимущества объекта: - Бизнес-центр класса А- Шаговая доступность от станции метро Шаболовская (6 минут пешком)- Этаж: 4- Помещение...
    • 4/22 эт.
    2 666 920 Р
    Агент
    +7 (938) Показать номер
    Посмотреть контакты
    Помещение свободного назначения в Москва Ленинградское ш., 39с2 (473 ... - Фото 1
    Помещение свободного назначения в Москва Ленинградское ш., 39с2 (473 ... - Фото 2
    1117319. Предлагаем в аренду офисное помещение площадью 472,5 кв. м, расположенное в бизнес-центре Marina Business Park Преимущества объекта: - Бизнес-центр класса В+- Шаговая доступность от станции метро Водный стадион (9 минут пешком)- Этаж: 2- Помещение...
    • 2/5 эт.
    2 600 000 Р
    Агент
    +7 (938) Показать номер
    Посмотреть контакты

    Не нашли подходящего объявления?

    Оставьте заявку, и наши риэлторы подберут псн в районе Москвы

    (0)