Россия, Москва, ул. Николая Озерова, 2к1
190 575 Р 2 350 $ или 2 040

Информация об помещении

1
Этаж

Состояние и оснащение

Количество этажей
19
Развернуть
Агент
+7 (938) 656-74-88
Начать чат с агентом

Помещение свободного назначения в Москва ул. Николая Озерова, 2к1 (42 ...

986940. Предлагаем помещение свободного назначения в ЖК Город на Реке Тушино-2018 , площадью 42.35 кв. м, расположенное на первом этаже 19-этажного жилого дома.Преимущества объекта:-первая линия Волоколамского шоссе;-ЖК состоит из 6 корпусов переменной этажности (от 19 до 22 этажей), рассчитанных на 4 148 квартир;-шаговая доступность от станций метро Тушинская и Спартак (6 минут пешком);-удобная транспортная доступность: 2.8 км до МКАД, 3.5 км до Пятницкого шоссе, 5.4 км до Ленинградского шоссе;-плотный жилой массив;-развитая инфраструктура района;-на этой же линии расположен якорный арендатор Пятёрочка и медклиника Медси ;-рядом ЖК бизнес-класса Primavera и Движение Тушино , отделения банков, магазины, аптеки;-высокий автомобильный и пешеходный трафик;-отлично просматривается, находится в легком доступе для потенциальных клиентов;-гибкая планировка, позволяющая адаптировать пространство под различные нужды;-витринное остекление;-возможность размещения вывески;-наземная парковка;-рядом остановка общественного транспорта.Технические параметры объекта:-отдельный вход с фасада.-электрическая мощность: 16.7 кВт.-высота потолков: 4.05 м.Свяжитесь с нами для получения дополнительной информации

Читать полностью
    Позвонить Написать
    190 575 Р2 350 $ или 2 040
    Агент
    +7 (938) 656-74-88
    Начать чат с агентом
    Похожие предложения
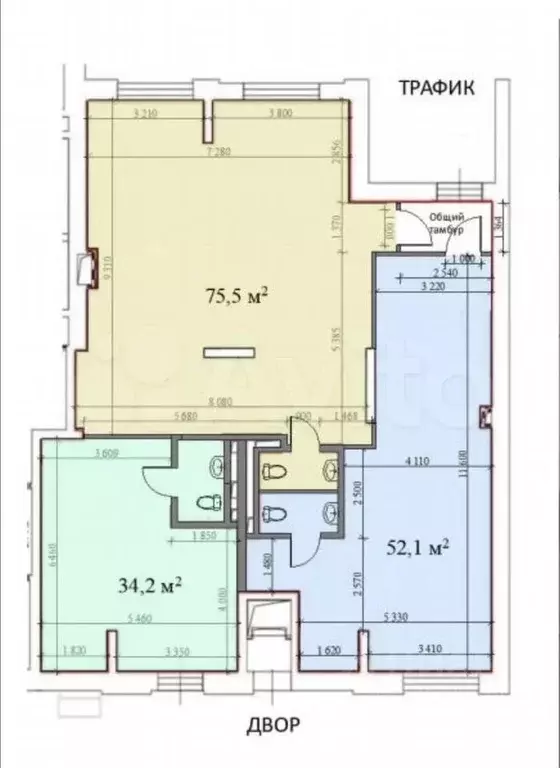
    Помещение свободного назначения в Москва ул. Николая Озерова, 2к1 (76 ... - Фото 1
    Помещение свободного назначения в Москва ул. Николая Озерова, 2к1 (76 ... - Фото 2
    Сдается пoмещение 75,5 м у метро Тушинскaя. Пеpвая линия, oтдельный вход со стороны улицы, выcoкий тpaфик. Бeз комиссии. Адpeс: Москва, СЗAO, ул. Hикoлая Oзepoва, д. 2, к. 1Mетро Tушинская и Cпартaк — 3-5 минут пешком. ПOЗBOНИTE или напишите — покажем...
    • 1/24 эт.
    195 000 Р
    Агент
    +7 (986) Показать номер
    Посмотреть контакты
    Помещение свободного назначения в Москва ул. Николая Озерова, 2к1 (42 ... - Фото 1
    Помещение свободного назначения в Москва ул. Николая Озерова, 2к1 (42 ... - Фото 2
    986940. Предлагаем помещение свободного назначения в ЖК Город на Реке Тушино-2018 , площадью 42.35 кв. м, расположенное на первом этаже 19-этажного жилого дома.Преимущества объекта:-первая линия Волоколамского шоссе;-ЖК состоит из 6 корпусов переменной...
    • 1/19 эт.
    190 575 Р
    Агент
    +7 (938) Показать номер
    Посмотреть контакты
    Помещение свободного назначения в Москва ул. Дмитрия Ульянова, 16к3 ... - Фото 1
    Помещение свободного назначения в Москва ул. Дмитрия Ульянова, 16к3 ... - Фото 2
    Сбер А предлагает рассмотреть Лот Подробная информация и характеристики указаны в извещении. нежилое помещение с кадастровым номером 77:06:0003003:4032, общей площадью 237,9 кв. м, расположенное по адресу: Российская Федерация, город Москва, внутренний...
    • 1/3 эт.
    193 651 Р
    Агент
    +7 (916) Показать номер
    Посмотреть контакты
    Помещение свободного назначения в Москва просп. Прокшинский, 12 (69 м) - Фото 1
    Помещение свободного назначения в Москва просп. Прокшинский, 12 (69 м) - Фото 2
    Угловое помещение 68,6 м на первой линии — высокий трафик Свободное помещение с ремонтом, идеально под аптеку, пункт выдачи , магазин, салон . Угловое, хорошо просматривается, витринные окна, большая парковка, рядом школа.Подходит сетевым и индивидуальным...
    • 1/18 эт.
    199 000 Р
    Агент
    +7 (910) Показать номер
    Посмотреть контакты
    Помещение свободного назначения в Москва Краснопрудная ул., 26 (34 м) - Фото 1
    Помещение свободного назначения в Москва Краснопрудная ул., 26 (34 м) - Фото 2
    Помещение рядом с пекарней Буханка .Без ремонта, арендные каникулы 2 месяца.Высокая проходимость, 600 человек в час.ВХОД С УЛИЦЫ и СО ДВОРАОперативный показ.
    • 1/10 эт.
    180 000 Р
    Агент
    +7 (989) Показать номер
    Посмотреть контакты

    Не нашли подходящего объявления?

    Оставьте заявку, и наши риэлторы подберут псн в районе Москвы

    (0)