393 000 Р 4 830 $ или 4 210

Информация об помещении

1
Этаж

Состояние и оснащение

Количество этажей
17
Развернуть
Агент
+7 (938) 656-74-88
Начать чат с агентом

Помещение свободного назначения в Москва Варшавское ш., 282к1 (131 м)

1105694. Предлагаем помещение свободного назначения в ЖК Никольские луга , площадью 131 кв. м, расположенное на первом этаже 17-этажного жилого дома.Преимущества объекта:-ЖК состоит из 10 корпусов переменной этажности (от 9 до 17 этажей), рассчитанных на 3 142 квартиры;-шаговая доступность от станции МЦД-2 Щербинка (15 минут пешком);-удобная транспортная доступность: 560 м до Симферопольского шоссе, 1 км до Варшавского шоссе, 4.8 км до Нового шоссе;-плотный жилой массив;-развитая инфраструктура района;-высокий автомобильный и пешеходный трафик;-отлично просматривается, находится в легком доступе для потенциальных клиентов;-гибкая планировка, позволяющая адаптировать пространство под различные нужды;-витринное остекление;-возможность размещения вывески;-бесплатный наземный паркинг;-рядом остановка общественного транспорта.Технические параметры объекта:-отдельный вход с фасада.-электрическая мощность: 26 кВт.-высота потолков: 4.29 м.Свяжитесь с нами для получения дополнительной информации

Читать полностью
    Позвонить Написать
    393 000 Р4 830 $ или 4 210
    Агент
    +7 (938) 656-74-88
    Начать чат с агентом
    Похожие предложения
    Помещение свободного назначения в Москва ул. Фридриха Энгельса, 7-21 ... - Фото 1
    Помещение свободного назначения в Москва ул. Фридриха Энгельса, 7-21 ... - Фото 2
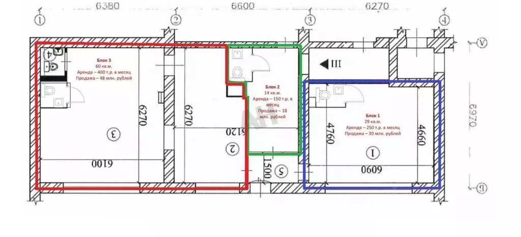
    ЛотПредложение от Собственника Предлагаем в аренду помещения свободного назначения, неподалеку от выхода из метро Бауманская. Помещения располагаются на 1 этаже жилого дома, с большими витринными окнами на улицу. Представляют собой: 3 блока открытой...
    • 1/11 эт.
    389 999 Р
    Агент
    +7 (986) Показать номер
    Посмотреть контакты
    Помещение свободного назначения в Москва Ягодная ул., 6 (251 м) - Фото 1
    Помещение свободного назначения в Москва Ягодная ул., 6 (251 м) - Фото 2
    Помещение, ПСН, м. Царицыно, 15 мин. авто.ул. Ягодная, д.6.Помещение площадью 251.2 кв.м., 1-й этаж.Ремонт сделан. Коммунальные платежи оплачиваются отдельно. Собственность. Прямая аренда.
    • 1/24 эт.
    397 734 Р
    Агент
    +7 (931) Показать номер
    Посмотреть контакты
    Помещение свободного назначения в Москва Ленинский просп., 79 (145 м) - Фото 1
    Помещение свободного назначения в Москва Ленинский просп., 79 (145 м) - Фото 2
    Код объекта: 2062405.Отличное помещение в удачной локации Предлагаем в аренду помещение в цокольном этаже свободного назначения, площадью 144,5 кв.м., всего в 7 метрах от выхода станции метро Вавиловская (Ленинский проспект, первая линия домов). Локация...
    • -1/9 эт.
    400 000 Р
    Агент
    +7 (915) Показать номер
    Посмотреть контакты
    Помещение свободного назначения в Москва Тропарево Парк мк, к2.2 (148 ... - Фото 1
    Помещение свободного назначения в Москва Тропарево Парк мк, к2.2 (148 ... - Фото 2
    Продажа нежилого помещения 147.82 кв. м в проекте Тропарево Парк в строящемся доме 2.2.Срок сдачи: 3-й квартал 2026 года.Технические характеристики помещения:1-й этаж 23-этажного дома;Витринное остекление - да;Без отделки;Помещение оснащено водоснабжением,...
    • 1/25 эт.
    388 287 Р
    Агент
    +7 (916) Показать номер
    Посмотреть контакты
    Помещение свободного назначения в Москва д. Кнутово, 8Б (400 м) - Фото 1
    Помещение свободного назначения в Москва д. Кнутово, 8Б (400 м) - Фото 2
    1139544. Предлагается складское помещение общей площадью 400 кв. м. в д. Кнутово. 1, 2 этаж ОСЗ.Преимущества:7 км до Калужского шоссе, 8 км до Киевского шоссе, 18 км до МКАД, 26 км до ЦКАД.В 20 минутах езды от станции Филатов Луг, 10 минут пешком до автобусной...
    • 1/2 эт.
    390 000 Р
    Агент
    +7 (938) Показать номер
    Посмотреть контакты

    Не нашли подходящего объявления?

    Оставьте заявку, и наши риэлторы подберут псн в районе Москвы

    (0)