320 000 Р 3 940 $ или 3 430

Информация об помещении

1
Этаж

Состояние и оснащение

Количество этажей
2
Развернуть
Агент
+7 (938) 656-74-88
Начать чат с агентом

Помещение свободного назначения в Москва Ореховый бул., 24АС2 (268 м)

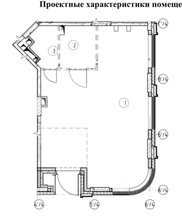
1123035. Предлагается склад общей площадью 268 м на Ореховом бульваре в Москве. 1, 2 этаж ОСЗ.Преимущества:450 метров от м. Красногвардейская.Быстрый выезд на основные магистрали.Удобная логистика для курьерских служб.Круглосуточно охраняемый складской комплекс с пропускной системой.Центральные коммуникации.Отапливаемое помещение (тёплый склад).Индивидуальная мокрая точка.Бесплатная парковка (1 машиноместо включено).Удобная зона разгрузки/погрузки.Формат одного блока. Подойдёт под склад, фулфилмент, интернет-магазин.Технические характеристики:Общая площадь: 268 м.Площадь 1 этажа: 121 м.Площадь 2 этажа: 147 м.Высота потолков: 1 этаж - 3,4 м, 2 этаж - 2,4 м.Нагрузка на пол: 1 этаж - 2 т/м, 2 этаж - 450 кг/м.Электрическая мощность: 10 кВт.Предоставляется штабелер.Коммунальные платежи включеныПомещение оптимально под фулфилмент: зонирование позволяет организовать хранение, сборку и офисную часть в рамках одного блока.

Читать полностью
    Позвонить Написать
    320 000 Р3 940 $ или 3 430
    Агент
    +7 (938) 656-74-88
    Начать чат с агентом
    Похожие предложения
    Помещение свободного назначения в Москва Скотопрогонная ул., 27/26С1 ... - Фото 1
    Помещение свободного назначения в Москва Скотопрогонная ул., 27/26С1 ... - Фото 2
    Лот 870943 Предложение от Собственника Предлагается помещение под офис площадью 124.60 м2. Помещение расположено 5 мин от м Калитники (МЦД). 5 этаж. Помещение меблировано. Система кондиционирования. Пропускная система. Планировка - смешанная. 100 парковочных...
    • 5/7 эт.
    311 500 Р
    Агент
    +7 (986) Показать номер
    Посмотреть контакты
    Помещение свободного назначения в Москва наб. Марка Шагала, 15к2 (66 ... - Фото 1
    Помещение свободного назначения в Москва наб. Марка Шагала, 15к2 (66 ... - Фото 2
    925820. Предлагаем помещение свободного назначения, площадью 66 кв. м., расположенное на первом этаже жилого дома в ЖК Shagal . Корпус 4. Без комиссии для арендатора.Преимущества объекта:-первая линия набережной Марка Шагала;-ЖК состоит из 27 корпусов...
    • 1/15 эт.
    330 000 Р
    Агент
    +7 (938) Показать номер
    Посмотреть контакты
    Помещение свободного назначения в Москва Большая Семеновская ул., 17А ... - Фото 1
    Помещение свободного назначения в Москва Большая Семеновская ул., 17А ... - Фото 2
    840796. Предлагаем торговое помещение, площадью 40,6 кв. м., расположенное на первом этаже ТЦ МАРТ в ВАО. Преимущества объекта:-первая линия Большой Семеновской улицы;-100 метров от вестибюля ст. метро Электрозаводская ;-сверхинтенсивный пешеходный...
    • 1/3 эт.
    330 000 Р
    Агент
    +7 (938) Показать номер
    Посмотреть контакты
    Помещение свободного назначения в Москва Большая Семеновская ул., 20 ... - Фото 1
    Помещение свободного назначения в Москва Большая Семеновская ул., 20 ... - Фото 2
    840815. Предлагаем помещение свободного назначения в торговом центре Заря , площадью 53.3 кв. м, расположенное на третьем этаже 5-этажного здания.Преимущества объекта:-первая линия ул. Большая Семёновская;-в 5 м от станции метро Электрозаводская;-удобная...
    • 3/4 эт.
    320 000 Р
    Агент
    +7 (938) Показать номер
    Посмотреть контакты
    Помещение свободного назначения в Москва ул. Добролюбова, 8к1 (81 м) - Фото 1
    Помещение свободного назначения в Москва ул. Добролюбова, 8к1 (81 м) - Фото 2
    847027. Предлагаем помещение свободного назначения, площадью 80,6 кв. м., расположенное на первом этаже жилого дома в ЖК Руставели 14 . Преимущества объекта:-комплекс состоит из 14 корпусов переменной этажности (от 14 до 33 этажей);-7 минут пешком от...
    • 1/35 эт.
    320 000 Р
    Агент
    +7 (938) Показать номер
    Посмотреть контакты

    Не нашли подходящего объявления?

    Оставьте заявку, и наши риэлторы подберут псн в районе Москвы

    (0)