2 724 667 Р 33 650 $ или 29 010

Информация об помещении

9
Этаж

Состояние и оснащение

Количество этажей
17
Развернуть
Агент
+7 (938) 656-74-88
Начать чат с агентом

Помещение свободного назначения в Москва Ярцевская ул., 19 (400 м)

1108757. Предлагаем в аренду офисное помещение площадью 400 кв. м, расположенное в бизнес-центре Кунцево Плаза Преимущества объекта:- Бизнес-центр класса А- Шаговая доступность от станции метро Молодёжная (5 минут пешком)- Этаж: 9- Помещение предлагается с отделкой- Планировка смешанная- Помещение свободно с августа 2026 года- Количество парковочных мест - 5Эксплуатационные платежи включены в ставку, коммунальные платежи оплачиваются дополнительно.Оперативно организуем для Вас показ и ответим на все вопросы.Свяжитесь с нами для получения дополнительной информации

Читать полностью
    Позвонить Написать
    2 724 667 Р33 650 $ или 29 010
    Агент
    +7 (938) 656-74-88
    Начать чат с агентом
    Похожие предложения
    Помещение свободного назначения в Москва Ярцевская ул., 19 (400 м) - Фото 1
    1108757. Предлагаем в аренду офисное помещение площадью 400 кв. м, расположенное в бизнес-центре Кунцево Плаза Преимущества объекта:- Бизнес-центр класса А- Шаговая доступность от станции метро Молодёжная (5 минут пешком)- Этаж: 9- Помещение предлагается...
    • 9/17 эт.
    2 724 667 Р
    Агент
    +7 (938) Показать номер
    Посмотреть контакты
    Помещение свободного назначения в Москва Каширское ш., 3К2С2 (1035 м) - Фото 1
    Помещение свободного назначения в Москва Каширское ш., 3К2С2 (1035 м) - Фото 2
    1146400. Предлагаем в аренду офисное помещение площадью 1 035 кв. м, расположенное в бизнес-центре Сириус парк Преимущества объекта: - Бизнес-центр класса В+- Шаговая доступность от станции метро Нагатинская (16 минут пешком)- Рядом остановка общественного...
    • 4/7 эт.
    2 760 000 Р
    Агент
    +7 (938) Показать номер
    Посмотреть контакты
    Помещение свободного назначения в Москва Ленинский просп., 15А (437 м) - Фото 1
    Помещение свободного назначения в Москва Ленинский просп., 15А (437 м) - Фото 2
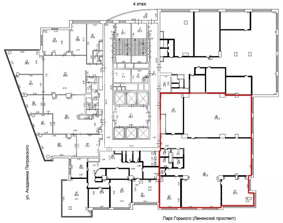
    1138900. Предлагаем в аренду офисное помещение площадью 437,2 кв. м, расположенное в бизнес-центре Central Park Tower Преимущества объекта: - Бизнес-центр класса А- Шаговая доступность от станции метро Шаболовская (6 минут пешком)- Этаж: 4- Помещение...
    • 4/22 эт.
    2 666 920 Р
    Агент
    +7 (938) Показать номер
    Посмотреть контакты
    Помещение свободного назначения в Москва Огородный проезд, 16/1с4 (352 ... - Фото 1
    Помещение свободного назначения в Москва Огородный проезд, 16/1с4 (352 ... - Фото 2
    1115703. Предлагаем в субаренду офисное помещение площадью 351,8 кв. м, расположенное в бизнес-центре Останкино Преимущества объекта: - Бизнес-центр класса А- Шаговая доступность от станции метро Бутырская (2 минуты пешком)- Этаж: 6- Помещение предлагается...
    • 6/12 эт.
    2 684 000 Р
    Агент
    +7 (938) Показать номер
    Посмотреть контакты
    Помещение свободного назначения в Москва Валовая ул., 35 (363 м) - Фото 1
    Помещение свободного назначения в Москва Валовая ул., 35 (363 м) - Фото 2
    1107127. Предлагаем в аренду офисное помещение площадью 363 кв. м, расположенное в бизнес-центре Wall Street Преимущества объекта: - Бизнес-центр класса А- Шаговая доступность от станции метро Добрынинская (4 минуты пешком)- Этаж: 7- Помещение предлагается...
    • 7/8 эт.
    2 657 160 Р
    Агент
    +7 (938) Показать номер
    Посмотреть контакты

    Не нашли подходящего объявления?

    Оставьте заявку, и наши риэлторы подберут псн в районе Москвы

    (0)