340 000 Р 4 190 $ или 3 640

Информация об помещении

1
Этаж

Состояние и оснащение

Количество этажей
32
Развернуть
Агент
+7 (933) 936-69-78
Начать чат с агентом

Помещение свободного назначения в Москва ул. Расплетина, 21 (111 м)

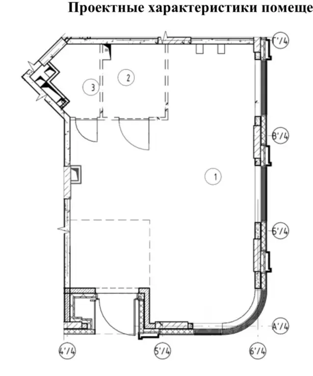
ОСВОБОЖДАЕТСЯ 01.04.26г. ШИКАРНОЕ ПОМЕЩЕНИЕ С ДИЗАЙНЕРСКИМ РЕМОНТОМ ПОМЕЩЕНИЕ СВОБОДНОГО НАЗНАЧЕНИЯ Оно находится на первом этаже ЖК Дом в сосновой роще . Жилой комплекс имеет ограждение по периметру и оборудован системами видеонаблюдения. Территория вокруг здания благоустроена зелёными насаждениями. Отличная транспортная доступность. До станции метро Октябрьское поле три остановки общественного транспорта. На автомобиле 5 километров до Третьего транспортного кольца. Путь в центр Москвы проходит по Волоколамскому шоссе. В помещении выполнен дизайнерский ремонт с применением качественных натуральных материалов и оборудования европейских производителей. Помещение сдаётся в аренду как общей площадью, так и двумя отдельными частями. Оно сдаётся без мебели, кроме той, которая встроена. Коричневая мебель, которая на фотографиях будет вывезена. Помещение состоит из фойе с стойкой для ресепшн, за ресепшн находится комната площадью 12,6 м.кв., которую можно использовать под складское помещение. Зал с левой стороны, с диваном, имеет площадь 31,9 метра квадратных. В этом зале остаётся диван и один стол. Проходной зал с камином с правой стороны площадью 28,4 кв.м. В нём остаются в углу декоративный круглый стол и таких же два мягких кресла. Из этого помещения по небольшому коридору вход в первый санузел, далее в хозяйственный блок с большими шкафами, а так же стиральной и сушильной машинами фирмы Miele и далее двери в кухню и во второй санузел. Вход в помещение находится с другой стороны здания, отдельно от общественного входа.

Читать полностью
    Позвонить Написать
    340 000 Р4 190 $ или 3 640
    Агент
    +7 (933) 936-69-78
    Начать чат с агентом
    Похожие предложения
    Помещение свободного назначения в Москва Профсоюзная ул., 5/9 (33 м) - Фото 1
    Помещение свободного назначения в Москва Профсоюзная ул., 5/9 (33 м) - Фото 2
    1094578. Предлагаем помещение свободного назначения, площадью 33,3 кв. м., расположенное на первом этаже 8-этажного жилого дома. Преимущества объекта: -первая линия;-3 минуты пешком от станции метро Академическая;-плотный жилой массив;-развитая инфраструктура...
    • 1/8 эт.
    350 000 Р
    Агент
    +7 (938) Показать номер
    Посмотреть контакты
    Помещение свободного назначения в Москва Дубининская ул., 59Б (44 м) - Фото 1
    Помещение свободного назначения в Москва Дубининская ул., 59Б (44 м) - Фото 2
    1079488. Предлагаем помещение свободного назначения в ЖК Павелецкая Сити , площадью 44.3 кв. м, расположенное на первом этаже 42-этажного жилого дома. Корпус: Кэрри.Преимущества объекта:-ЖК состоит из 12 корпусов переменной этажности (от 9 до 46 этажей),...
    • 1/42 эт.
    330 000 Р
    Агент
    +7 (938) Показать номер
    Посмотреть контакты
    Помещение свободного назначения в Москва Производственная ул., 19Ак3 ... - Фото 1
    Помещение свободного назначения в Москва Производственная ул., 19Ак3 ... - Фото 2
    1072573. Предлагаем угловое помещение свободного назначения в ЖК Лучи , площадью 82.4 кв. м, расположенное на первом этаже 24-этажного жилого дома. Корпус: 3-4.Преимущества объекта:-ЖК состоит из 16 корпусов переменной этажности (от 19 до 24 этажей),...
    • 1/24 эт.
    350 000 Р
    Агент
    +7 (938) Показать номер
    Посмотреть контакты
    Помещение свободного назначения в Москва наб. Марка Шагала, 15к2 (66 ... - Фото 1
    Помещение свободного назначения в Москва наб. Марка Шагала, 15к2 (66 ... - Фото 2
    925820. Предлагаем помещение свободного назначения, площадью 66 кв. м., расположенное на первом этаже жилого дома в ЖК Shagal . Корпус 4. Без комиссии для арендатора.Преимущества объекта:-первая линия набережной Марка Шагала;-ЖК состоит из 27 корпусов...
    • 1/15 эт.
    330 000 Р
    Агент
    +7 (938) Показать номер
    Посмотреть контакты
    Помещение свободного назначения в Москва ул. Красного Маяка, 26А (76 ... - Фото 1
    Помещение свободного назначения в Москва ул. Красного Маяка, 26А (76 ... - Фото 2
    1098591. Предлагаем угловое торговое помещение в ЖК Parkside , площадью 76.4 кв. м, расположенное на первом этаже 23-этажного жилого дома. Корпус: 4.Преимущества объекта:-ЖК состоит из 8-ми 23-этажных корпусов, рассчитанных на 1 554 квартиры;-6 минут...
    • 1/23 эт.
    350 000 Р
    Агент
    +7 (938) Показать номер
    Посмотреть контакты

    Не нашли подходящего объявления?

    Оставьте заявку, и наши риэлторы подберут псн в районе Москвы

    (0)