Россия, Москва, Мякинино Парк жилой комплекс
250 000 Р 3 040 $ или 2 630

Информация об помещении

1
Этаж

Состояние и оснащение

Количество этажей
17
Развернуть
Агент
+7 (915) 313-26-86
Начать чат с агентом

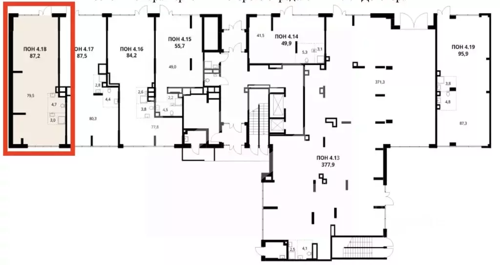
Помещение свободного назначения в Москва Мякинино Парк жилой комплекс ...

Арт.ЖК Мякинино Парк Аренда. Готовый бизнес под кафе / коворкинг. Первая линия. ЖК заселен. Без вложенийСдаётся помещение, в которое можно зайти и начать зарабатывать практически сразу.Без ремонта. Без стройки. Без потери времени и денег.Локация — одна из ключевых точек ЖК Мякинино Парк:первая линия, главная аллея, постоянный пешеходный поток.Основные параметры:— Площадь: 97 м— Электрическая мощность: 17 кВт— Санузел— Кухонная зона— Посудомоечная машина— Интернет Важное преимущество:Помещение полностью готово под работу:— выполнена качественная дизайнерская отделка из премиальных материалов— пространство продумано под кафе / антикафе / коворкинг— уже установлена часть оборудованияРанее работало в тестовом формате всего 4 месяца — всё новое, без износа. Что вы получаете: Готовую площадку для запуска бизнеса Экономию сотен тысяч (а чаще миллионов) на ремонте Экономию месяцев времени Возможность стартовать быстрее конкурентовПо сути — вам остаётся только открыть двери и начать работать. Оборудование:Встроенное — остаётсяПереносное — вывозится или может быть выкуплено(примерно за 50 от рыночной стоимости, обсуждается) Локация и трафик:— ЖК полностью заселён— Все квартиры проданы с отделкой— Сформированный поток жителей— Новый район с высоким спросом на места для встреч, работы и отдыхаЗдесь уже есть аудитория. Её не нужно ждать — с ней нужно работать. Подойдёт под:— кафе / кофейню— антикафе— коворкинг— пространство для мероприятийУсловия:— Долгосрочная аренда— Коммунальные и электричество оплачиваются отдельно— Обеспечительный платёж — 1 месяц Итог:Это не помещение под ремонт .Это готовый инструмент для бизнеса в живом районе.Из этого объекта, вы легко сможете создать точку притяжения своих клиентовТакие объекты долго не стоят — потому что экономят деньги и время. Оперативный показЗвоните или пишите — расскажу детали и покажу в удобное время

Читать полностью
    Позвонить Написать
    250 000 Р3 040 $ или 2 630
    Агент
    +7 (915) 313-26-86
    Начать чат с агентом
    Похожие предложения
    Помещение свободного назначения в Москва 1-й Измайловский жилой ... - Фото 1
    Помещение свободного назначения в Москва 1-й Измайловский жилой ... - Фото 2
    1150618. Предлагаем помещение свободного назначения в ЖК 1-й Измайловский , площадью 87.2 кв. м, расположенное на первом этаже 23-этажного жилого дома. Преимущества объекта:-первая линия ул. Амурская;-ЖК состоит из 6 корпусов переменной этажности (от...
    • 1/23 эт.
    245 000 Р
    Агент
    +7 (938) Показать номер
    Посмотреть контакты
    Помещение свободного назначения в Москва Старокалужское ш., 62 (104 м) - Фото 1
    Помещение свободного назначения в Москва Старокалужское ш., 62 (104 м) - Фото 2
    ЛотПредложение от Собственника Сдаётся в аренду помещение свободного назначения площадью 103.5 м2. Первый этаж этаж бизнес - центра, отдельный вход, большие панорамные окна, высота потолков 3 м, свободная планировка, своя мокрая точка, развитая инфраструктура....
    • 1/5 эт.
    258 750 Р
    Агент
    +7 (986) Показать номер
    Посмотреть контакты
    Помещение свободного назначения в Москва бул. Скандинавский, 14 (86 м) - Фото 1
    Помещение свободного назначения в Москва бул. Скандинавский, 14 (86 м) - Фото 2
    ЖК Скандинавия Плотный жилой массив В 14 минутах от помещения метро Потапово В 8 минутах от помещения остановка общественного транспорта 1 этаж 17-ти этажного жилого дома 1 отдельный вход Витрины Зальная планировка Высокие потолки, более 3.5 м Мощность:...
    • 1/17 эт.
    260 000 Р
    Агент
    +7 (985) Показать номер
    Посмотреть контакты
    Помещение свободного назначения в Москва Алтуфьевское ш., 53к2 (92 м) - Фото 1
    Помещение свободного назначения в Москва Алтуфьевское ш., 53к2 (92 м) - Фото 2
    Сдается помещение в самом центре высотного и плотного ЖК Помещение расположено в сердце ЖК, там где сконцентрирована вся жизнь. В этом же месте Дикси и Винлаб, которые генерируют трафик. Рабочая планировка, большие окна, высокие потолки. Своя мокрая точка....
    • 1/24 эт.
    250 000 Р
    Агент
    +7 (923) Показать номер
    Посмотреть контакты
    Помещение свободного назначения в Москва Бауманская ул., 16С2 (100 м) - Фото 1
    Помещение свободного назначения в Москва Бауманская ул., 16С2 (100 м) - Фото 2
    Сдаем помещение в аренду на первом этаже. Идеально подходит под пвз. Подробности по телефону.
    • 1/3 эт.
    250 000 Р
    Агент
    +7 (915) Показать номер
    Посмотреть контакты

    Не нашли подходящего объявления?

    Оставьте заявку, и наши риэлторы подберут псн в районе Москвы

    (0)