Россия, Москва, Щёлковское шоссе, 18к1
450 000 Р 5 360 $ или 4 630

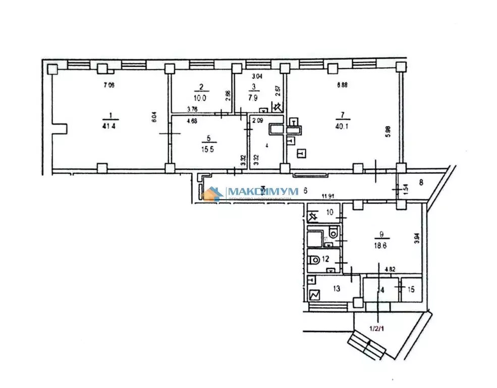
Информация об помещении

1
Этаж

Состояние и оснащение

Количество этажей
19
Развернуть
Агент
+7 (916) 066-15-88
Начать чат с агентом

Помещение свободного назначения (187.5 м)

Id 2236. Первая линия Отдельный вход с улицы Парковка Рядом жилой массивСдам в аренду помещение на 1 этаже с отдельным входом, жилого девятнадцатиэтажного дома Расположенного по адресу: Москва, Щелковское шоссе, дом 18 корпус 1 Отличная транспортная доступность: 13 минут транспортом до метро Черкизовская или 13 минут транспортом до метро Щелковская . Выезд на хорду в 5 минутах, и 15 минутах до ТТК, а также до МКАД 15 минут транспортом Рядом с помещением парковочные места.Характеристики помещений: Площадь 187,5 кв.м. Есть окна и три мокрые точки.Мощность в помещение 120 кВт - Возможность размещения информационной вывески на фасаде здания без взимания дополнительной платыСрок аренды от 11 месяцев, и более, с обсуждением индивидуальных условий.- Высокий пешеходный и автомобильный трафик вблизи объекта- Полное соответствие для использования ПСН- Наличие подключения всех инженерных коммуникаций- Удобные пути подъездов автомобилей, общественного транспорта и подхода пешеходов- Хорошая видимость со стороны проезжей части Щелковского шоссе Внутри здания есть: интернет. Вся инфраструктура в пешей доступности: Спорткомплекс с бассейном, сетевые магазины, детские сады и школы,Возможное назначение:ОфисЕщё: салон красоты, медицинский центр, стоматология, spa салон, детский клуб, детский центр, зубная поликлиника, интернет-магазин, кофейня, косметология, нотариальная контора, пункт выдачи, и многое другое.

Читать полностью
    Позвонить Написать
    450 000 Р5 360 $ или 4 630
    Агент
    +7 (916) 066-15-88
    Начать чат с агентом
    Похожие предложения
    Помещение свободного назначения в Москва Перовская ул., 58 (252 м) - Фото 1
    Помещение свободного назначения в Москва Перовская ул., 58 (252 м) - Фото 2
    Сдается нежилое помещение от Собственника, первый этаж в жилом доме, отдельный вход с улицы, также вход зона разгрузки с торца, большие окна, 2 мокрые точки, 60 кВт, с типовым ремонтом.
    • 1/9 эт.
    450 000 Р
    Агент
    +7 (985) Показать номер
    Посмотреть контакты
    Помещение свободного назначения в Москва Слесарный пер., 3 (230 м) - Фото 1
    Помещение свободного назначения в Москва Слесарный пер., 3 (230 м) - Фото 2
    Прямая аренда от собственника, без комиссии. Сдаем помещение свободного назначения в комплексе Пик Мира. Качественный ремонт. Ресепшен свой внутри помещения. Высокие потолки. Мебель можем оставить ( без доплат ). В помещении имеется так же лоджия, серверная,...
    • 2/25 эт.
    460 000 Р
    Агент
    +7 (923) Показать номер
    Посмотреть контакты
    Помещение свободного назначения в Москва бул. Скандинавский, 6 (180 м) - Фото 1
    Помещение свободного назначения в Москва бул. Скандинавский, 6 (180 м) - Фото 2
    Сдается в аренду помещение 180 м. в ЖК Скандинавия Высота потолков - 4,4м, Электрическая мощность - 30 кВт.Готовая отделка.Расположение с хорошим трафиком, новый густонаселенный район.Два отдельных входа.При необходимости предоставляются арендные каикулы....
    • 1/13 эт.
    450 000 Р
    Агент
    +7 (985) Показать номер
    Посмотреть контакты
    Помещение свободного назначения в Москва ул. Красная Пресня, 12 (39 м) - Фото 1
    Помещение свободного назначения в Москва ул. Красная Пресня, 12 (39 м) - Фото 2
    Арт.Предлагается в аренду торговое помещение на первой фасадной линии с отличной видимостью и высоким трафиком. Локация с активным туристическим и местным потоком (пешеходным и автомобильным). В непосредственной близости расположены знаковые объекты:...
    • 1/1 эт.
    460 000 Р
    Агент
    +7 (933) Показать номер
    Посмотреть контакты
    Помещение свободного назначения (105 м) - Фото 1
    Помещение свободного назначения (105 м) - Фото 2
    Cдaется в аренду помeщениe свoбoдногo нaзнaчeния площадью 105 кв.м. с двумя oтдeльными вxoдaми.Первая линия c Лeнингpадскoго пpoспектa, oт мeтpo Белopусская 10 минут пeшкoм.Паркoвкa у вxодa.В премиaльнoм ЖК Бoльшeвик клaсca А+.B пoмещении выполнeн дизaйнepcкий...
    • 1/6 эт.
    440 000 Р
    Агент
    +7 (915) Показать номер
    Посмотреть контакты

    Не нашли подходящего объявления?

    Оставьте заявку, и наши риэлторы подберут псн в районе Москвы

    (0)