855 006 Р 10 290 $ или 9 030

Информация об помещении

1
Этаж

Состояние и оснащение

Количество этажей
38
Развернуть
Агент
+7 (986) 274-27-15
Начать чат с агентом

Помещение свободного назначения в Москва Новоостаповская ул., 7к2 (196 ...

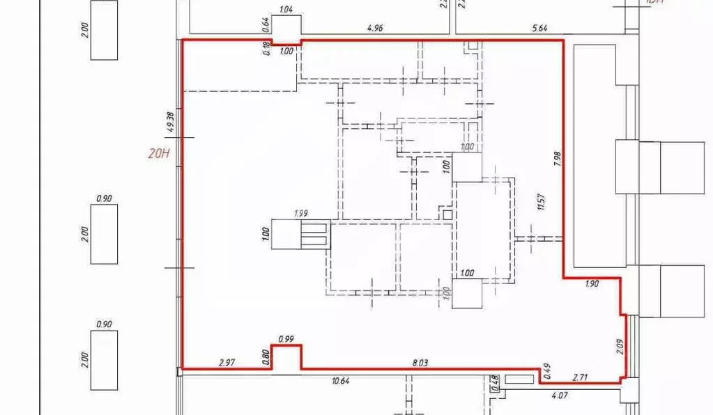
ЛотПредложение от Собственника Предлагается в аренду торговое помещение общей площадью 195,59 м в жилом квартале Первый Дубровский . Объект находится на первой линии домов в пяти минутах пешком от станции метро Волгоградский проспект .Помещение расположено на первом этаже и имеет открытую планировку с высотой потолков 4 метра. Обеспечен отдельный вход как с фасада, так и со стороны двора. По фасадной части выполнены витринные окна. Установленная электрическая мощность составляет 40 кВт. Имеется возможность для размещения рекламы.Жилой квартал Первый Дубровский представляет собой современный комплекс из четырёх корпусов с развитой инфраструктурой. На территории расположены детский сад, школа, зелёный парк с детскими и спортивными площадками. Наличие подземного паркинга и сдача квартир с отделкой обеспечивают высокую проходимость и постоянный поток жителей. Обеспечительный платеж 1 месяц.Чтобы получить ПОДРОБНУЮ ПРЕЗЕНТАЦИЮ С ПЛАНИРОВКОЙ И ФОТОГРАФИЯМИ, звоните или отправьте свой email и номер телефона в сообщении на портале. Высылаем в течение 15 минут по запросу Конт. лицо: Лидия Владимировна, доб. 240, ЛОТ 1052794

Читать полностью
    Позвонить Написать
    855 006 Р10 290 $ или 9 030
    Агент
    +7 (986) 274-27-15
    Начать чат с агентом
    Похожие предложения
    Помещение свободного назначения в Москва ул. Нижние Мневники, 16к4 ... - Фото 1
    Помещение свободного назначения в Москва ул. Нижние Мневники, 16к4 ... - Фото 2
    1142918. Предлагаем помещение свободного назначения в ЖК Остров , площадью 144.5 кв. м, расположенное на первом этаже 22-этажного жилого дома.Преимущества объекта:-ЖК состоит из 62 корпусов переменной этажности (от 5 до 24 этажей), рассчитанных на 9...
    • 1/22 эт.
    850 000 Р
    Агент
    +7 (938) Показать номер
    Посмотреть контакты
    Помещение свободного назначения в Москва ул. Юных Ленинцев, 71к1 (303 ... - Фото 1
    Помещение свободного назначения в Москва ул. Юных Ленинцев, 71к1 (303 ... - Фото 2
    Арт.. Помещение 302.7м 2й этаж в отдельностоящем здании, Отдельный вход с первого этажа. ( три входа с улицы, со двора и торца здания.) . Высокий трафик, Идеальный дизайнерский ремонт ресторана ( можно мебель и технику оставить) . Высокие потолки 3.6м...
    • 2/2 эт.
    850 000 Р
    Агент
    +7 (985) Показать номер
    Посмотреть контакты
    Помещение свободного назначения в Москва Летниковская ул., 11к2 (139 ... - Фото 1
    Помещение свободного назначения в Москва Летниковская ул., 11к2 (139 ... - Фото 2
    Арт.ЖК ПРЕМИУМ КЛАССА Статус: Объект сдан, ключи получены Площадь - 138,5 м2Арендная ставка/месяцУдобное расположение объекта в комплексе HIGH LIFE привлекает жителей жилого квартала и становится точкой притяжения для жителей всего района и даже резидентов...
    • 1/1 эт.
    850 000 Р
    Агент
    +7 (968) Показать номер
    Посмотреть контакты
    Помещение свободного назначения в Москва ул. Лужники, 24С4 (195 м) - Фото 1
    Помещение свободного назначения в Москва ул. Лужники, 24С4 (195 м) - Фото 2
    ПСН 195 м2 м. у метро Спортивная в ЦАО в БЦ класса А.1 этаж Отдельный вход. Система контроля доступа: есть ограничения по времени. Система кондиционирования: центральная система. Система вентиляции: приточно-вытяжнаяСистема пожаротушенияХорошая транспортная...
    • 1/3 эт.
    850 005 Р
    Агент
    +7 (916) Показать номер
    Посмотреть контакты
    Помещение свободного назначения в Москва ул. Шеногина, 4К1С4 (400 м) - Фото 1
    Помещение свободного назначения в Москва ул. Шеногина, 4К1С4 (400 м) - Фото 2
    Предлагается в аренду отдельно стоящее здание на круглосуточно охраняемой территории. Высота полотка 4 метра. 2 ворот по разным сторонам здания. Одни из ворот подойдут для въезда автомобиля. Бонусом к зданию идет крытая площадка на 80м2.
    • 1/1 эт.
    850 000 Р
    Агент
    +7 (910) Показать номер
    Посмотреть контакты

    Не нашли подходящего объявления?

    Оставьте заявку, и наши риэлторы подберут псн в районе Москвы

    (0)