649 994 Р 8 220 $ или 7 110

Информация об помещении

1
Этаж

Состояние и оснащение

Количество этажей
9
Развернуть
Агент
+7 (986) 274-27-15
Начать чат с агентом

Помещение свободного назначения в Москва Ленинградский просп., 71КГ ...

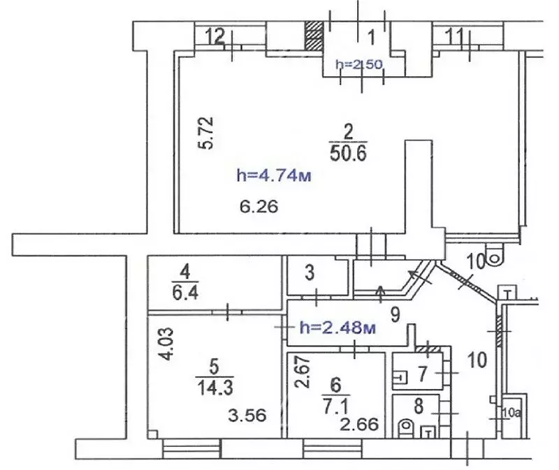
ЛотПредложение от Собственника Сдаётся в аренду помещение свободного назначения общей площадью 105.4 м2. Топовая локация: объект расположен всего в 50 метрах и в прямой видимости от станции метро Сокол , на первой фасадной линии с интенсивным пешеходным трафиком.Помещение находится в крупном сложившемся жилом районе с высокой плотностью застройки и развитой инфраструктурой. В радиусе 10 минут ходьбы проживает более 24 500 жителей. В окружении расположены жилой комплекс Соколиное гнездо , бизнес-центр Алкон , торговый центр Метромаркет и ВУЗ Университет Синергия .В помещении смешанная планировка, отдельный вход с улицы и два входа со двора, витринное остекление, высота потолков от 2.2 до 4.8 м, городские инженерные коммуникации.Пространство идеально подойдёт для размещения магазина, шоурума, бутика, ювелирного салона, кафе, кофейни, аптеки, салона красоты, медицинского центра, офиса продаж, банковского отделения, оказания услуг населению или цветочного магазина. В цену не включено: затраты на электричество, коммунальные расходы. Обеспечительный платеж 1 месяц.Чтобы получить ПОДРОБНУЮ ПРЕЗЕНТАЦИЮ С ПЛАНИРОВКОЙ И ФОТОГРАФИЯМИ, звоните или отправьте свой email и номер телефона в сообщении на портале. Высылаем в течение 15 минут по запросу Уважаемые коллеги, к сожалению именно по этому объекту мы не сотрудничаем с посредниками Конт. лицо: Сергей Федорович, доб. 218, ЛОТ 1053966

Читать полностью
    Позвонить Написать
    649 994 Р8 220 $ или 7 110
    Агент
    +7 (986) 274-27-15
    Начать чат с агентом
    Похожие предложения
    Помещение свободного назначения (105 м) - Фото 1
    Помещение свободного назначения (105 м) - Фото 2
    АРЕНДА ОТ 11 МЕС. Жилой дом, рядом с метро. Сдаётся под офис, магазин (кроме продуктового) или салон блок площадью 105 кв.м с отдельным входом с улицы. Стандартная отделка.УСН. Лот № 247677. С риелторами не сотрудничаем
    • 9 этажей
    650 003 Р
    Агент
    +7 (985) Показать номер
    Посмотреть контакты
    Помещение свободного назначения в Москва Волоколамское ш., 1кБ (333 м) - Фото 1
    Помещение свободного назначения в Москва Волоколамское ш., 1кБ (333 м) - Фото 2
    ЛотПредложение от Собственника Предлагается аренда помещения свобожного назначения с готовой технологической вытяжкой по адресу: г. Москва, ул. Волоколамское ш., 1, корп. БПлощадь 333м2, из которых 238м2 первый этаж и 95м2 антресоль.Презентабельный...
    • 1/9 эт.
    649 989 Р
    Агент
    +7 (986) Показать номер
    Посмотреть контакты
    Помещение свободного назначения в Москва Ленинградский просп., 56 (200 ... - Фото 1
    Помещение свободного назначения в Москва Ленинградский просп., 56 (200 ... - Фото 2
    ПРЯМАЯ аренда ОТ СОБСТВЕННИКА Помещение свободного назначения, расположено цокольном этаже. Первая линия домов, Ленинградского проспекта. 1 мин от метро Аэропорт. Отличная просматриваемость и постоянный поток клиентов.Интенсивный автомобильный и пешеходный...
    • -1/6 эт.
    650 000 Р
    Агент
    +7 (914) Показать номер
    Посмотреть контакты
    Помещение свободного назначения в Москва Коптевский бул., 15А (389 м) - Фото 1
    Помещение свободного назначения в Москва Коптевский бул., 15А (389 м) - Фото 2
    ЛотПредложение от Собственника Сдается офисное помещение кабинетной планировки 388.9 кв.м., Находится в пристройке к жилому дому в пешей доступности от м. Коптево. Помещение с ремонтом, все кабинеты с окнами. Имеется парковка. В цену включено: НДС...
    • 1/4 эт.
    648 167 Р
    Агент
    +7 (986) Показать номер
    Посмотреть контакты
    Помещение свободного назначения (105 м) - Фото 1
    Помещение свободного назначения (105 м) - Фото 2
    АРЕНДА ОТ 11 МЕС. Жилой дом. Сдаётся блок с санузлом на первом этаже площадью 105 кв.м с отдельным входом с улицы. Высота потолка 4.74 м. Стандартная отделка. Электрическая мощность 20 кВт.НДС включен. Лот № 211605. С риелторами не сотрудничаем
    • 1/8 эт.
    647 500 Р
    Агент
    +7 (985) Показать номер
    Посмотреть контакты

    Не нашли подходящего объявления?

    Оставьте заявку, и наши риэлторы подберут псн в районе Москвы

    (0)