490 000 Р 6 200 $ или 5 330

Информация об помещении

1
Этаж

Состояние и оснащение

Количество этажей
14
Развернуть
Агент
+7 (989) 048-35-61
Начать чат с агентом

Помещение свободного назначения в Москва Новочеремушкинская ул., 27 ...

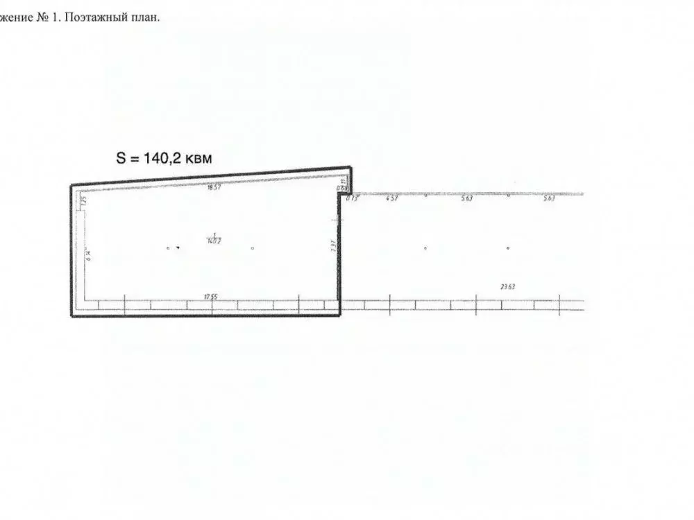
Сдается в аренду помещение свободного назначения на 1 этаже в жилом доме В класса, который находится по адресу: ул. Новочерёмушкинская, д. 27. Без комиссии для Арендатора ЛОКАЦИЯ: Пешая доступность от м. Профсоюзная, Академическая, Новые Черемушки. Удобный выезд на Нахимовский проспект и ТТК.ПОМЕЩЕНИЕ: В помещении выполнена отделка, смешанная планировка. Отдельный вход с улицы. Высота потолков 4.5 м. Естественная вентиляция, сплит-системы. В наличии наземная парковка. Арендные каникулы и ставка подлежат обсуждению.Звоните, отвечаем по будням с 09:00 до 18:00, а в другое время передадим Ваш контакт нашему менеджеру

Читать полностью
    Позвонить Написать
    490 000 Р6 200 $ или 5 330
    Агент
    +7 (989) 048-35-61
    Начать чат с агентом
    Похожие предложения
    Помещение свободного назначения в Москва ул. Нижние Мневники, 12 (80 ... - Фото 1
    Помещение свободного назначения в Москва ул. Нижние Мневники, 12 (80 ... - Фото 2
    ЖК ОСТРОВ, 6 квартал.Помещение свободного назначения расположено на 1 этаже дома в составе ЖК Остров-ядом с центральной входной группой в комплекс. Дом входит в состав ЖК ОСТРОВ в окружении спортивного кластера: спортивный комплекс ЦСКА, легкоатлетический...
    • 1/15 эт.
    500 000 Р
    Агент
    +7 (985) Показать номер
    Посмотреть контакты
    Помещение свободного назначения в Москва Профсоюзная ул., 5/9 (87 м) - Фото 1
    Помещение свободного назначения в Москва Профсоюзная ул., 5/9 (87 м) - Фото 2
    Арт.Москва, Профсоюзная ул., 5/9 170 м от метро Академическая. Интенсивный пешеходный поток, напротив пешеходный переход и остановки.Характеристики:1 этаж жилого домаотдельный вход с фасадавитрины25 кВт (возможно увеличение)центральные коммуникациирежим...
    • 1/6 эт.
    490 000 Р
    Агент
    +7 (916) Показать номер
    Посмотреть контакты
    Помещение свободного назначения в Москва Деловая ул., 11С9 (255 м) - Фото 1
    Помещение свободного назначения в Москва Деловая ул., 11С9 (255 м) - Фото 2
    ==ЛОТ 224487 == ОТ СОБСТВЕННИКА, БЕЗ КОМИССИИ. Сдается помещение свободного назначения, 255 кв. м. До метро Кантемировская, 10-15 минут пешком. Этаж: 1. Отдельный вход + вход со двора. Прямая аренда. Без комиссии. Возможны кредитные каникулы. Мощность...
    • 1/1 эт.
    485 000 Р
    Агент
    +7 (923) Показать номер
    Посмотреть контакты
    Помещение свободного назначения в Москва ул. Перерва, 62К2 (233 м) - Фото 1
    Помещение свободного назначения в Москва ул. Перерва, 62К2 (233 м) - Фото 2
    Вашему вниманию предлагается, просторное помещение свободного назначения на 1 этаже с отдельным входом с улицы доступно для аренды. Общая площадь составляет 233.00 кв.м. и в настоящее время в нем сделан стандартный ремонт, но мы готовы обсудить различные...
    • 1/18 эт.
    500 000 Р
    Агент
    +7 (989) Показать номер
    Посмотреть контакты
    Помещение свободного назначения в Москва 2-я Магистральная ул., 16АС4 ... - Фото 1
    Помещение свободного назначения в Москва 2-я Магистральная ул., 16АС4 ... - Фото 2
    Лот 159702.Сдаётся помещение под автосервис в Хорошёвском районе (САО).Адрес: г. Москва, 2-я Магистральная ул., 16Ас4. Первая линия, высокий пешеходный и автомобильный трафик. 11 минут пешком от м. Хорошёвская и м. Тестовская . Удобный выезд на ТТК,...
    • 1/1 эт.
    485 000 Р
    Агент
    +7 (916) Показать номер
    Посмотреть контакты

    Не нашли подходящего объявления?

    Оставьте заявку, и наши риэлторы подберут псн в районе Москвы

    (0)