6 948 000 Р 86 610 $ или 75 530

Информация об помещении

1
Этаж

Состояние и оснащение

Количество этажей
3
Развернуть
Агент
+7 (938) 656-74-88
Начать чат с агентом

Помещение свободного назначения в Москва № 74 кв-л, 1с2 (4000 м)

1137913. Предлагается просторное складское помещение общей площадью 4 000 м в д. Саларьево. 1, 2, 3 этаж ОСЗ.Преимущества:Современный складской комплекс.Прямой выезд на Киевское шоссе, в непосредственной близости от МКАД.Рядом остановки общественного транспорта: м. Саларьево и м. Румянцево.Помещение идеально подходит для логистики, хранения и дистрибуции.Объект полностью готов к эксплуатации. Рациональная сетка колонн и высота потолков позволяют эффективно организовать хранение и логистические процессы. Наличие доковых ворот и пандуса обеспечивает удобную разгрузку и погрузку транспорта.Подойдет для складского хранения, распределительного центра, оптовой торговли или логистической компании.Готовы предоставить дополнительную информацию и организовать просмотр.Технические характеристики:Площадь: 4 000 м.Высота потолков: 12 м.Сетка колонн: 12 24 м.Полы: бетонная плита с топинговым покрытием (повышенная износостойкость).Электрическая мощность: 45 кВт (возможно увеличение по запросу).Отопление: собственная газовая котельная.Водоснабжение: ХВС — центральное, ГВС — от котельной.Система пожаротушения: спринклерная.Доступ: круглосуточный (24/7).Доковые ворота: 6 шт.Пандус: имеется.

Читать полностью
    Позвонить Написать
    6 948 000 Р86 610 $ или 75 530
    Агент
    +7 (938) 656-74-88
    Начать чат с агентом
    Похожие предложения
    Помещение свободного назначения в Москва Холодильный пер., 3к1с3 (1279 ... - Фото 1
    Помещение свободного назначения в Москва Холодильный пер., 3к1с3 (1279 ... - Фото 2
    1016064. Предлагаем в аренду сервисный офис площадью 1 279 кв. м (абочих мест), расположенный в бизнес-квартале Товарищество Рябовской Мануфактуры, корпус Лен Преимущества объекта:- Бизнес-центр класса В+- Шаговая доступность от станции метро Тульская...
    • 2/5 эт.
    6 800 000 Р
    Агент
    +7 (938) Показать номер
    Посмотреть контакты
    Помещение свободного назначения в Москва Космодамианская наб., 52С1 ... - Фото 1
    Помещение свободного назначения в Москва Космодамианская наб., 52С1 ... - Фото 2
    1066280. Предлагаем в аренду офисное помещение площадью 1 410 кв. м, расположенное в бизнес-центре Риверсайд Тауэрс Преимущества объекта: - Бизнес-центр класса А- Шаговая доступность от станции метро Павелецкая (8 минут пешком)- Этаж: 4- Помещение предлагается...
    • 4/14 эт.
    6 880 800 Р
    Агент
    +7 (938) Показать номер
    Посмотреть контакты
    Помещение свободного назначения (1000 м) - Фото 1
    Помещение свободного назначения (1000 м) - Фото 2
    Офис площадью 1 000 м расположен на 2 этаже в бизнес-центре «Фьюжн парк . В помещении с комбинированной планировкой выполнена отделка в офисном стиле. Предусмотрена собственные кухня и санузел. Установлены системы приточно-вытяжной вентиляции и центрального...
    • 2/11 эт.
    6 831 000 Р
    Агент
    +7 (916) Показать номер
    Посмотреть контакты
    Помещение свободного назначения в Москва Садовническая наб., 79 (1184 ... - Фото 1
    Помещение свободного назначения в Москва Садовническая наб., 79 (1184 ... - Фото 2
    М. Павелецкая, 5 минут пешком.Площадь двух зданий 1184,3 м.Основные Характеристики:Стpоение 3 - 680,5 м (1 эт. - 230,4 м, 2 эт. - 239 м, цокoль - 211,1 м);Стpоение 7 - 503,8 м (1 эт. - 160,5 м, 2 эт. - 172,2 м, 3 эт. - 171,1 м). Открытая планирoвкa, здания...
    • 1/2 эт.
    7 000 000 Р
    Агент
    +7 (985) Показать номер
    Посмотреть контакты
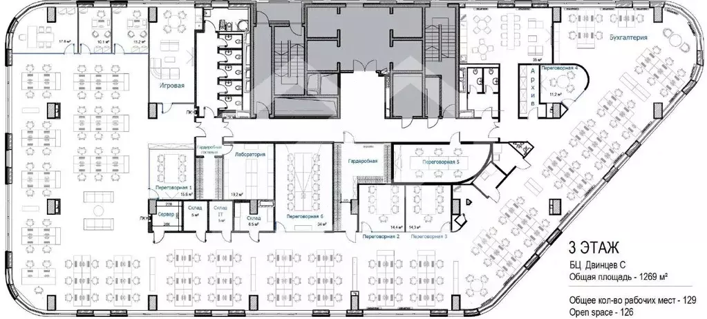
    Помещение свободного назначения в Москва ул. Двинцев, 12к1С (1269 м) - Фото 1
    Помещение свободного назначения в Москва ул. Двинцев, 12к1С (1269 м) - Фото 2
    1098426. Предлагаем в аренду офисное помещение площадью 1 269 кв. м, расположенное в бизнес-центре Двинцев Преимущества объекта:- Бизнес-центр класса А- Шаговая доступность от станции метро Савёловская (9 минут пешком)- Этаж: 3- Помещение предлагается...
    • 3/15 эт.
    6 859 600 Р
    Агент
    +7 (938) Показать номер
    Посмотреть контакты

    Не нашли подходящего объявления?

    Оставьте заявку, и наши риэлторы подберут псн в районе Москвы

    (0)