2 500 000 Р 31 160 $ или 27 180

Информация об помещении

1
Этаж

Состояние и оснащение

Количество этажей
8
Развернуть
Агент
+7 (985) 094-42-98
Начать чат с агентом

Помещение свободного назначения в Москва ул. Хамовнический Вал, 34 ...

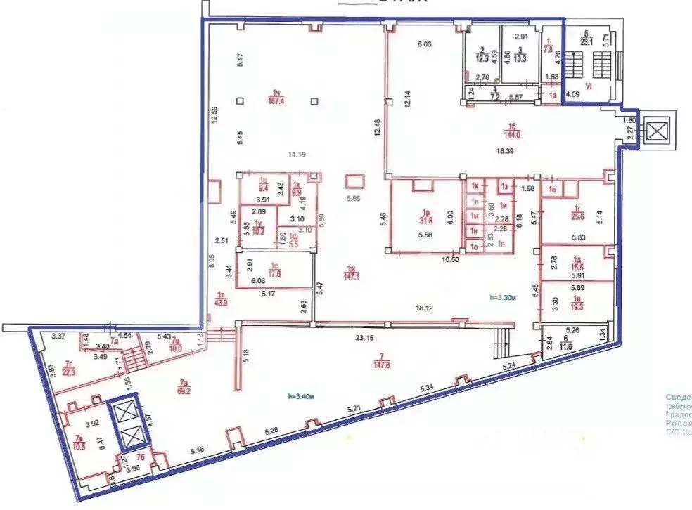
Предлагается в аренду помещение общей площадью 541м2, под ресторан с двумя летними верандами. Располагается в гостинице Юность. В 1 минуте от м,Спортивная. Первый этаж, 3 отдельных входа, с первой линии и с холла гостиницы. Площадь кухни -116,2 м2 + помещение в подвали 75м2Площадь зала ресторана-150,6 м2Площадь 2 веранд около 200 м2Без комиссии. Эксклюзив. Звоните проконсультирую.Номер объекта: 1/537167/23907

Читать полностью
    Позвонить Написать
    2 500 000 Р31 160 $ или 27 180
    Агент
    +7 (985) 094-42-98
    Начать чат с агентом
    Похожие предложения
    Помещение свободного назначения в Москва Скотопрогонная ул., 27/26С1 ... - Фото 1
    Помещение свободного назначения в Москва Скотопрогонная ул., 27/26С1 ... - Фото 2
    940935. Предлагаем в аренду офисное помещение площадью 1 195,1 кв. м, расположенное в бизнес-центре РТС Таганский Преимущества объекта:- Бизнес-центр класса В- Шаговая доступность от станции МЦД Калитники (4 минуты пешком);- Этаж: 6- Помещение предлагается...
    • 6/7 эт.
    2 589 383 Р
    Агент
    +7 (938) Показать номер
    Посмотреть контакты
    Помещение свободного назначения в Москва Шмитовский проезд, 37с2 (297 ... - Фото 1
    Помещение свободного назначения в Москва Шмитовский проезд, 37с2 (297 ... - Фото 2
    1098545. Предлагаем в аренду офисное помещение площадью 297,1 кв. м., расположенное на 23 этаже бизнес-центра ICity . Преимущества объекта: -бизнес-центр класса А состоит из двух офисных башен с панорамным остеклением Time Tower и Space Tower (общей...
    • 23/61 эт.
    2 550 109 Р
    Агент
    +7 (938) Показать номер
    Посмотреть контакты
    Помещение свободного назначения в Москва Лубянский проезд, 21С1 (720 ... - Фото 1
    Помещение свободного назначения в Москва Лубянский проезд, 21С1 (720 ... - Фото 2
    Сдается в аренду 2-этажный особняк (с подвалом и мезонином) С класса, который находится по адресу: Лубянский пр-д, д. 21, стр. 1. Без комиссии для Арендатора ЛОКАЦИЯ: Шаговая доступность от станций метро Китай-город, Лубянка. Удобный выезд на Лубянский...
    • -1/2 эт.
    2 500 000 Р
    Агент
    +7 (989) Показать номер
    Посмотреть контакты
    Помещение свободного назначения в Москва просп. Мира, 64 (768 м) - Фото 1
    Помещение свободного назначения в Москва просп. Мира, 64 (768 м) - Фото 2
    932846. Предлагаем в аренду офисное помещение площадью 768 кв. м, расположенное в бизнес-центре Мира 64 Преимущества объекта: - Бизнес-центр класса В- Шаговая доступность от станции метро Проспект Мира (7 минут пешком)- Этаж: 5- Помещение предлагается...
    • 5/5 эт.
    2 496 000 Р
    Агент
    +7 (938) Показать номер
    Посмотреть контакты
    Помещение свободного назначения в Москва ул. Шаболовка, 31С5 (1013 м) - Фото 1
    Помещение свободного назначения в Москва ул. Шаболовка, 31С5 (1013 м) - Фото 2
    1055440. Предлагаем в аренду офисное помещение площадью 1013,2 кв. м, расположенное в бизнес-центре Шаболовка 31 Преимущества объекта: - Бизнес-центр класса В- Шаговая доступность от станции метро Шаболовская (3 минуты пешком)- Этаж: 5- Помещение предлагается...
    • 5/9 эт.
    2 549 465 Р
    Агент
    +7 (938) Показать номер
    Посмотреть контакты

    Не нашли подходящего объявления?

    Оставьте заявку, и наши риэлторы подберут псн в районе Москвы

    (0)