749 900 Р 9 290 $ или 7 990

Информация об помещении

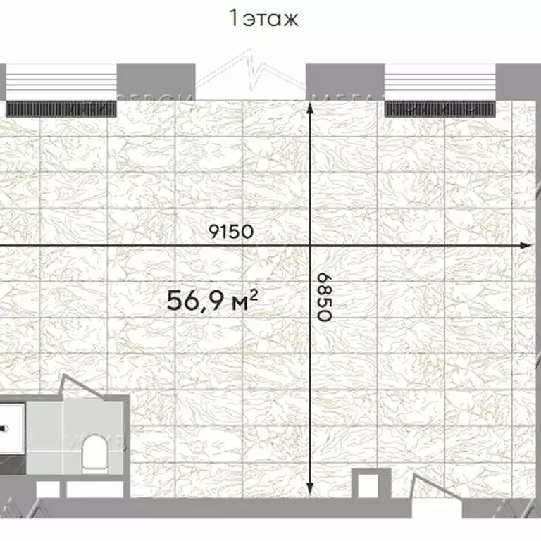
1
Этаж

Состояние и оснащение

Количество этажей
5
Развернуть
Агент
+7 (985) 295-77-43
Начать чат с агентом

Помещение свободного назначения в Москва просп. 60-летия Октября, 20 ...

Прямо у выходов из метро 75 кВт электрической мощности Потолки 4 метра Отдельный вход с улицы Свободная планировка Готовая вытяжка со свечой на крышу ЛОКАЦИЯ: 12 000+ человек/день — пешеходный трафик от 5-6 выходов станции (пассажиропоток ~55 000 в будни) Средняя зарплата 168 920 — платежеспособная аудитория (Росстат по Москве за 2024 год) УСЛОВИЯ: Прямая аренда от собственника Звоните для просмотра и обсуждения условий

Читать полностью
    Позвонить Написать
    749 900 Р9 290 $ или 7 990
    Агент
    +7 (985) 295-77-43
    Начать чат с агентом
    Похожие предложения
    Помещение свободного назначения в Москва Профсоюзная ул., 22/10К1 (211 ... - Фото 1
    Помещение свободного назначения в Москва Профсоюзная ул., 22/10К1 (211 ... - Фото 2
    Арт.Сдается помещение свободного назначения, площадь 211 м, Москва, Профсоюзная ул., 22/10 к1Тип здания: жилой домУдалённость от дороги: первая линияПарковка: на улице, бесплатная, подходит для грузового транспортаВход: с улицыОтдельный вход: естьОбщая...
    • 1/8 эт.
    750 000 Р
    Агент
    +7 (985) Показать номер
    Посмотреть контакты
    Помещение свободного назначения в Москва ул. Вавилова, 53К3 (383 м) - Фото 1
    Помещение свободного назначения в Москва ул. Вавилова, 53К3 (383 м) - Фото 2
    Сбер А предлагает рассмотреть Лот Подробная информация и характеристики указаны в извещении. Нежилые помещения (1 этаж, пом. I: 1-9б, 12, 12а, 15-19а) общей площадью 383,2 кв.м, являющиеся частью помещения с кадастровым номером 77:06:0002006:2695, расположенного...
    • 1/1 эт.
    749 699 Р
    Агент
    +7 (916) Показать номер
    Посмотреть контакты
    Помещение свободного назначения в Москва ул. Вавилова, 53К3 (383 м) - Фото 1
    Помещение свободного назначения в Москва ул. Вавилова, 53К3 (383 м) - Фото 2
    Данные получены с сайта ГИС Торги.Нежилые помещения (1 этаж, пом. I: 1-9б, 12, 12а, 15-19а) общей площадью 383,2 кв.м, являющиеся частью помещения с кадастровым номером 77:06:0002006:2695, расположенного по адресу: Российская Федерация, город Москва,...
    • 5 этажей
    749 699 Р
    Агент
    +7 (989) Показать номер
    Посмотреть контакты
    Сдается в аренду помещение свободного назначения на -1 этаже в Доходном доме Плещеевых, С класса, который находится по адресу: Гусятников пер., д. 3/1, стр. 1. Без комиссии для Арендатора ЛОКАЦИЯ:– Шаговая доступность от станций метро Чистые пруды, Тургеневская,...
    • 5 этажей
    750 400 Р
    Агент
    +7 (901) Показать номер
    Посмотреть контакты
    Помещение свободного назначения (107 м) - Фото 1
    Помещение свободного назначения (107 м) - Фото 2
    АРЕНДА ОТ 11 МЕС. Элитный жилой дом. Сдаётся под офис, магазин или салон блок с санузлом на первом этаже площадью 107 кв.м с отдельным входом с улицы. Высота потолка 4.57 м. Высококачественная отделка. Электрическая мощность 41 кВт.НДС включен. Лот №...
    • 1/23 эт.
    757 917 Р
    Агент
    +7 (985) Показать номер
    Посмотреть контакты

    Не нашли подходящего объявления?

    Оставьте заявку, и наши риэлторы подберут псн в районе Москвы

    (0)