Россия, Москва, ул. Петра Кончаловского, 5
404 000 Р 5 110 $ или 4 420

Информация об помещении

1
Этаж

Состояние и оснащение

Количество этажей
15
Развернуть
Агент
+7 (938) 656-74-88
Начать чат с агентом

Помещение свободного назначения в Москва ул. Петра Кончаловского, 5 ...

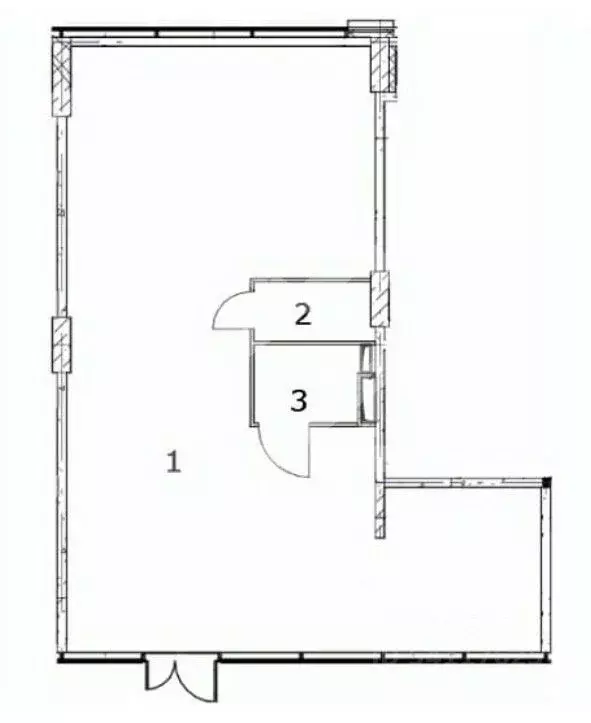
936821. Предлагаем помещение свободного назначения, площадью 101 кв. м., расположенное на первом этаже жилого дома в ЖК Shagal . Корпус 3.Преимущества объекта:-первая линия набережной Марка Шагала;-ЖК состоит из 27 корпусов переменной этажности (от 6 до 28 этажей), рассчитан на 4 530 квартир;-пешая доступность от станции метро Технопарк (25 минут пешком);-3 км до ТТК и 2.5 км до проспекта генерала Дорохова;-интенсивный пешеходный и автомобильный трафик, плотный жилой массив в окружении;-объект отлично просматривается, находится в легком доступе для потенциальных клиентов;-просторное и функциональное - это помещение подходит для различных видов бизнеса: от магазина до офиса;-зальная планировка;-витринное остекление;-место для вывески;-подземная парковка;-рядом остановка общественного транспорта.Технические параметры объекта:-отдельный вход с фасада;-электрическая мощность: 20 кВт.Ввод в эксплуатацию: 4 квартал 2025 г.Свяжитесь с нами для получения дополнительной информации

Читать полностью
    Позвонить Написать
    404 000 Р5 110 $ или 4 420
    Агент
    +7 (938) 656-74-88
    Начать чат с агентом
    Похожие предложения
    Помещение свободного назначения в Москва ул. Петра Кончаловского, 5 ... - Фото 1
    Помещение свободного назначения в Москва ул. Петра Кончаловского, 5 ... - Фото 2
    936821. Предлагаем помещение свободного назначения, площадью 101 кв. м., расположенное на первом этаже жилого дома в ЖК Shagal . Корпус 3.Преимущества объекта:-первая линия набережной Марка Шагала;-ЖК состоит из 27 корпусов переменной этажности (от 6...
    • 1/15 эт.
    404 000 Р
    Агент
    +7 (938) Показать номер
    Посмотреть контакты
    Помещение свободного назначения в Москва ул. Петра Кончаловского, 5 ... - Фото 1
    Помещение свободного назначения в Москва ул. Петра Кончаловского, 5 ... - Фото 2
    936821. Предлагаем помещение свободного назначения, площадью 101 кв. м., расположенное на первом этаже жилого дома в ЖК Shagal . Корпус 3.Преимущества объекта:-первая линия набережной Марка Шагала;-ЖК состоит из 27 корпусов переменной этажности (от 6...
    • 1/15 эт.
    404 000 Р
    Агент
    +7 (938) Показать номер
    Посмотреть контакты
    Помещение свободного назначения в Москва ул. Мустая Карима, 12 (95 м) - Фото 1
    Помещение свободного назначения в Москва ул. Мустая Карима, 12 (95 м) - Фото 2
    Лот 160215.Предлагается к аренде торговая площадь, по адресу: Москва, ул. Мустая Карима, 12, площадью 95 кв.м. Ближайшая станция метро - Технопарк, 12 минут пешком. Объект находится в окружении крупного, активно застраивающегося жилого массива бизнес-класса...
    • 1/15 эт.
    400 000 Р
    Агент
    +7 (916) Показать номер
    Посмотреть контакты
    Помещение свободного назначения в Москва просп. Андропова, 9/1к2 (94 ... - Фото 1
    Помещение свободного назначения в Москва просп. Андропова, 9/1к2 (94 ... - Фото 2
    646226. Предлагаем торговое помещение, площадью 94,38 кв. м., расположенное на первом этаже жилого дома в ЖК премиум-класса Dream Towers. Корпус 2.Преимущества объекта:-ЖК состоит из 3 корпусов переменной этажности (от 6 до 24 этажей);-пешая доступность...
    • 1/22 эт.
    401 200 Р
    Агент
    +7 (938) Показать номер
    Посмотреть контакты
    Помещение свободного назначения в Москва просп. Андропова, 9/1к2 (94 ... - Фото 1
    Помещение свободного назначения в Москва просп. Андропова, 9/1к2 (94 ... - Фото 2
    646226. Предлагаем торговое помещение, площадью 94,38 кв. м., расположенное на первом этаже жилого дома в ЖК премиум-класса Dream Towers. Корпус 2.Преимущества объекта:-ЖК состоит из 3 корпусов переменной этажности (от 6 до 24 этажей);-пешая доступность...
    • 1/22 эт.
    401 200 Р
    Агент
    +7 (938) Показать номер
    Посмотреть контакты

    Не нашли подходящего объявления?

    Оставьте заявку, и наши риэлторы подберут псн в районе Москвы

    (0)