480 000 Р 6 070 $ или 5 220

Информация об помещении

1
Этаж

Состояние и оснащение

Количество этажей
30
Развернуть
Агент
+7 (938) 656-74-88
Начать чат с агентом

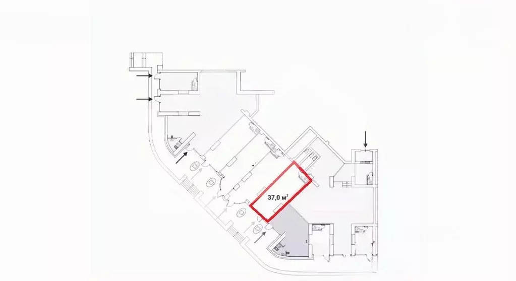
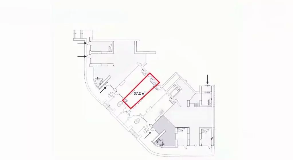
Помещение свободного назначения в Москва Ярцевская ул., 27к1 (37 м)

660523. Предлагаем помещение свободного назначения в ЖК O2xygen , площадью 37.2 кв. м, расположенное на первом этаже 30-этажного жилого дома. Преимущества объекта:-на пересечении ул. Ярцевская и Ельнинская;-первая линия;-шаговая доступность от станции метро Молодёжная (3 минуты пешком);-удобная транспортная доступность: 450 м до Рублёвского шоссе, 2.7 км до СЗХ, 4.8 км до Аминьевского шоссе, 5.3 км до Можайского шоссе;-плотный жилой массив;-развитая инфраструктура района;-высокий автомобильный и пешеходный трафик;-отлично просматривается, находится в легком доступе для потенциальных клиентов;-гибкая планировка, позволяющая адаптировать пространство под различные нужды;-подготовлено под чистовую отделку;-все городские инженерные коммуникации;-витринное остекление;-возможность размещения вывески;-ж/б перекрытия;-наземная парковка;-рядом остановка общественного транспорта.Технические параметры объекта:-отдельный вход с улицы.-высота потолков: от 3.6 м до 4.1 м.Свяжитесь с нами для получения дополнительной информации

Читать полностью
    Позвонить Написать
    480 000 Р6 070 $ или 5 220
    Агент
    +7 (938) 656-74-88
    Начать чат с агентом
    Похожие предложения в Москве
    Помещение свободного назначения в Москва Ярцевская ул., 27к1 (41 м) - Фото 1
    Помещение свободного назначения в Москва Ярцевская ул., 27к1 (41 м) - Фото 2
    660533. Предлагаем помещение свободного назначения в ЖК O2xygen , площадью 40.9 кв. м, расположенное на первом этаже 30-этажного жилого дома. Преимущества объекта:-на пересечении ул. Ярцевская и Ельнинская;-первая линия;-шаговая доступность от станции...
    • 1/30 эт.
    480 000 Р
    Агент
    +7 (938) Показать номер
    Посмотреть контакты
    Помещение свободного назначения в Москва Ярцевская ул., 27к1 (37 м) - Фото 1
    Помещение свободного назначения в Москва Ярцевская ул., 27к1 (37 м) - Фото 2
    660532. Предлагаем помещение свободного назначения в ЖК O2xygen , площадью 37 кв. м, расположенное на первом этаже 30-этажного жилого дома. Преимущества объекта:-на пересечении ул. Ярцевская и Ельнинская;-первая линия;-шаговая доступность от станции...
    • 1/30 эт.
    480 000 Р
    Агент
    +7 (938) Показать номер
    Посмотреть контакты
    Помещение свободного назначения в Москва Ярцевская ул., 27к1 (37 м) - Фото 1
    Помещение свободного назначения в Москва Ярцевская ул., 27к1 (37 м) - Фото 2
    660523. Предлагаем помещение свободного назначения в ЖК O2xygen , площадью 37.2 кв. м, расположенное на первом этаже 30-этажного жилого дома. Преимущества объекта:-на пересечении ул. Ярцевская и Ельнинская;-первая линия;-шаговая доступность от станции...
    • 1/30 эт.
    480 000 Р
    Агент
    +7 (938) Показать номер
    Посмотреть контакты
    Помещение свободного назначения в Москва Ярцевская ул., 27к1 (41 м) - Фото 1
    Помещение свободного назначения в Москва Ярцевская ул., 27к1 (41 м) - Фото 2
    660533. Предлагаем помещение свободного назначения в ЖК O2xygen , площадью 40.9 кв. м, расположенное на первом этаже 30-этажного жилого дома. Преимущества объекта:-на пересечении ул. Ярцевская и Ельнинская;-первая линия;-шаговая доступность от станции...
    • 1/30 эт.
    480 000 Р
    Агент
    +7 (938) Показать номер
    Посмотреть контакты
    Помещение свободного назначения в Москва Ярцевская ул., 27к1 (37 м) - Фото 1
    Помещение свободного назначения в Москва Ярцевская ул., 27к1 (37 м) - Фото 2
    660532. Предлагаем помещение свободного назначения в ЖК O2xygen , площадью 37 кв. м, расположенное на первом этаже 30-этажного жилого дома. Преимущества объекта:-на пересечении ул. Ярцевская и Ельнинская;-первая линия;-шаговая доступность от станции...
    • 1/30 эт.
    480 000 Р
    Агент
    +7 (938) Показать номер
    Посмотреть контакты

    Не нашли подходящего объявления?

    Оставьте заявку, и наши риэлторы подберут псн в районе Москвы

    (0)