500 000 Р 6 230 $ или 5 440

Информация об помещении

1
Этаж

Состояние и оснащение

Количество этажей
9
Развернуть
Агент
+7 (938) 656-74-88
Начать чат с агентом

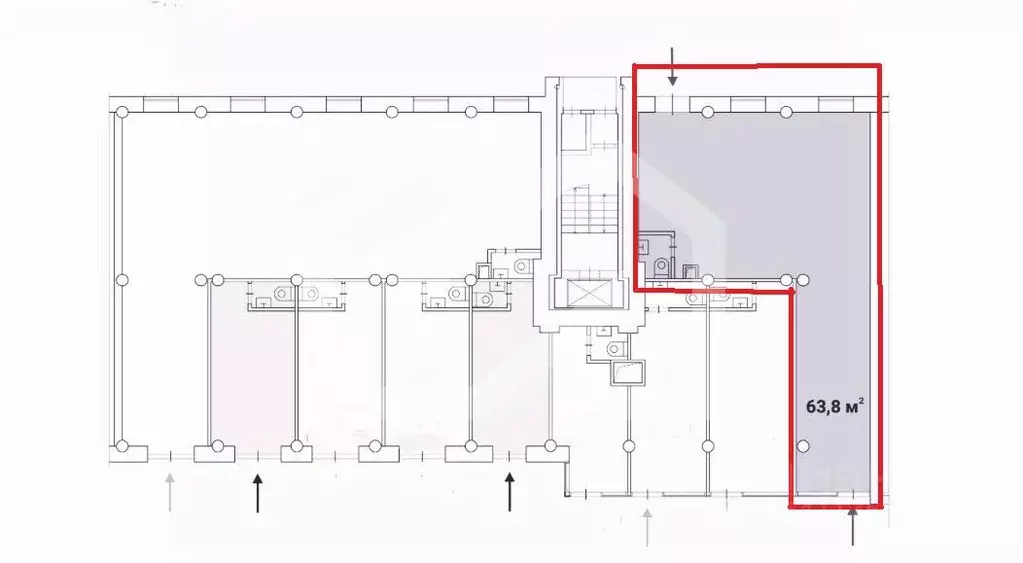
Помещение свободного назначения в Москва Планерная ул., 12К1 (64 м)

902141. Предлагаем помещение свободного назначения, площадью 63.8 кв. м, расположенное на первом этаже 9-этажного жилого дома. Преимущества объекта:-первая линия ул. Бубнова;-в 80 м от станции метро Планерная;-удобная транспортная доступность: 2 км до МКАД, 3 км до Путилковского шоссе, 4.3 км до Новокуркинского шоссе, 4.5 км до Ленинградского шоссе;-плотный жилой массив;-развитая инфраструктура района;-высокий автомобильный и пешеходный трафик;-отлично просматривается, находится в легком доступе для потенциальных клиентов;-гибкая планировка, позволяющая адаптировать пространство под различные нужды;-отделка от арендатора;-все городские инженерные коммуникации;-санузел;-отдельный прибор учета электричества;-витринное остекление;-возможность размещения вывески;-парковка на прилегающих улицах;-рядом остановка общественного транспорта.Технические параметры объекта:-отдельный вход с фасада и со двора.-высота потолков: 3.7 м.Свяжитесь с нами для получения дополнительной информации

Читать полностью
    Позвонить Написать
    500 000 Р6 230 $ или 5 440
    Агент
    +7 (938) 656-74-88
    Начать чат с агентом
    Похожие предложения
    Помещение свободного назначения в Москва Планерная ул., 12К1 (64 м) - Фото 1
    Помещение свободного назначения в Москва Планерная ул., 12К1 (64 м) - Фото 2
    Лот 147763.Предлагается в аренду помещение свободного назначения с готовым арендным бизнесом по адресу: г. Москва, СЗАО, Планерная улица 12к1. Помещение расположено в 70-ти метрах от станции метро Планерная. Прямая видимость от метро. Сверх-интенсивный...
    • 1/8 эт.
    500 000 Р
    Агент
    +7 (916) Показать номер
    Посмотреть контакты
    Помещение свободного назначения в Москва Планерная ул., 12К1 (64 м) - Фото 1
    Помещение свободного назначения в Москва Планерная ул., 12К1 (64 м) - Фото 2
    902141. Предлагаем помещение свободного назначения, площадью 63.8 кв. м, расположенное на первом этаже 9-этажного жилого дома. Преимущества объекта:-первая линия ул. Бубнова;-в 80 м от станции метро Планерная;-удобная транспортная доступность: 2 км до...
    • 1/9 эт.
    500 000 Р
    Агент
    +7 (938) Показать номер
    Посмотреть контакты
    Помещение свободного назначения в Москва Планерная ул., 12К1 (64 м) - Фото 1
    Помещение свободного назначения в Москва Планерная ул., 12К1 (64 м) - Фото 2
    902141. Предлагаем помещение свободного назначения, площадью 63.8 кв. м, расположенное на первом этаже 9-этажного жилого дома. Преимущества объекта:-первая линия ул. Бубнова;-в 80 м от станции метро Планерная;-удобная транспортная доступность: 2 км до...
    • 1/9 эт.
    500 000 Р
    Агент
    +7 (938) Показать номер
    Посмотреть контакты
    Помещение свободного назначения в Москва ул. Архитектора Власова, 71к1 ... - Фото 1
    Помещение свободного назначения в Москва ул. Архитектора Власова, 71к1 ... - Фото 2
    Предлагаю помещение свободного назначения в ЖК Ever площадью 97 кв.м , расположенного на первом этаже первой линии улицы Архитектора Власова .Преимущества объекта:-шаговая доступность от станции метро (Воронцовская, Калужская);-плотный жилой массив ;-развитая...
    • 1/1 эт.
    500 000 Р
    Агент
    +7 (916) Показать номер
    Посмотреть контакты
    Помещение свободного назначения в Москва Егорьевский проезд, 3ЖС6 (614 ... - Фото 1
    Помещение свободного назначения в Москва Егорьевский проезд, 3ЖС6 (614 ... - Фото 2
    ЛотПредложение от Собственника Сдаю помещение 614 кв м. Действующее кафе. Помещение сдается полностью укомплектованное оборудованием. Зал и блок для производства. Два входа. Территория с круглосуточной охраной, договор прямой аренды. Есть парковка....
    • -1/5 эт.
    499 899 Р
    Агент
    +7 (986) Показать номер
    Посмотреть контакты

    Не нашли подходящего объявления?

    Оставьте заявку, и наши риэлторы подберут псн в районе Москвы

    (0)