7 000 000 Р 86 270 $ или 74 930

Информация об помещении

1
Этаж

Состояние и оснащение

Количество этажей
3
Развернуть
Агент
+7 (911) 147-09-38
Начать чат с агентом

Помещение свободного назначения в Москва Садовническая ул., 84С3 (1184 ...

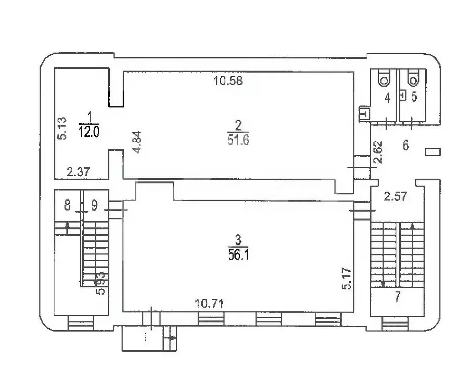
Особняк Садовническая, 84с3,7 класса BПлощадь: 1 184,3 м2Арендная ставка: 70 928,. за м2 в год включая НДССтоимость площади в месяц:,. включая НДССистема налогообложения: НДСГотовность: готово к въездуЭтаж: 1Планировка: смешаннаяНаличие с/у: , ВнутриСтатус: свободенВысота потолков, h: 2.70мВыделенная мощность: 220 кВтХарактеристики зданияАдрес: Садовническая улица, 84 строение 3-7, МоскваКласс: BПлощадь здания: 1 184,3 м2Полезная площадь: 1 184,3 м2Этажность: 3Налоговая: 5Год постройки: 1870Год реконструкции: 2006Безопасность: Охрана, Контрольно-пропускной пункт, Сигнализация, ВидеонаблюдениеПарковка: 13м/м, Платная открытая, На прилегающей территорииПод банк ресторан и т.дХарактеристики объекта:стр. 3: 680,5 м2. 1 эт. - 230,4 м2, 2 эт. - 239 м2, цоколь - 211,1 м2;стр. 7: 503,8 м2. 1 эт. - 503,8 м2, 1 эт. - 172,2 м2, 3 эт. - 171,1 м2;летняя веранда: 200 м2.Зем.участок: 538 м2. ВРИ: Предпринимательство (4.0) (земельные участки, предназначенные для размещения объектов торговли, общ. питания и бытового обслуживания (1.2.5)).- отдельный вход с улицы, 3 - со двора;- множество окон;- свободная планировка колонного типа;- 6 мокрых точек;- высота потолков: стр. 3 - 2,7-3 м, стр. 7 - 3,15 м;

Читать полностью
    Позвонить Написать
    7 000 000 Р86 270 $ или 74 930
    Агент
    +7 (911) 147-09-38
    Начать чат с агентом
    Похожие предложения
    Помещение свободного назначения в Москва Садовническая ул., 84С3 (1184 ... - Фото 1
    Помещение свободного назначения в Москва Садовническая ул., 84С3 (1184 ... - Фото 2
    1141742. Предлагаем в аренду комплекс зданий, состоящий из двух офисных особняков площадью 1184,3 кв. м, расположенных на Садовнической улице.Преимущества объекта: - Здания класса В- Шаговая доступность от станции метро Павелецкая (5 минут пешком)- Этажность:...
    • 3/3 эт.
    7 000 000 Р
    Агент
    +7 (938) Показать номер
    Посмотреть контакты
    Помещение свободного назначения в Москва Садовническая ул., 84С3 (1184 ... - Фото 1
    Помещение свободного назначения в Москва Садовническая ул., 84С3 (1184 ... - Фото 2
    Комплекс административных зданий в шаговой доступности от метро Павелецкая, Павелецкого вокзала и ТРЦ Павелецкая Плаза. Рядом находится остановка общественного транспорта, в этом районе наблюдается интенсивный пешеходный и автомобильный трафик.Налоговая:...
    • 1/3 эт.
    7 000 000 Р
    Агент
    +7 (933) Показать номер
    Посмотреть контакты
    Помещение свободного назначения в Москва Садовническая ул., 84С3 (1184 ... - Фото 1
    Помещение свободного назначения в Москва Садовническая ул., 84С3 (1184 ... - Фото 2
    1141742. Предлагаем в аренду комплекс зданий, состоящий из двух офисных особняков площадью 1184,3 кв. м, расположенных на Садовнической улице.Преимущества объекта: - Здания класса В- Шаговая доступность от станции метро Павелецкая (5 минут пешком)- Этажность:...
    • 3/3 эт.
    7 000 000 Р
    Агент
    +7 (938) Показать номер
    Посмотреть контакты
    Помещение свободного назначения (1184.3 м) - Фото 1
    Помещение свободного назначения (1184.3 м) - Фото 2
    Предложение в аренду № 63548.Предлагается в аренду особняк общей площадью 1 184,3 м2 на первой линии Садового кольца, с узаконенной летней верандой По ЕГРН - 2 строения, физически - единое здание. Не памятник архитектуры Высокий рекламный потенциал,...
    • 1/3 эт.
    7 000 000 Р
    Агент
    +7 (992) Показать номер
    Посмотреть контакты
    Помещение свободного назначения в Москва Садовническая наб., 79 (1184 ... - Фото 1
    Помещение свободного назначения в Москва Садовническая наб., 79 (1184 ... - Фото 2
    М. Павелецкая, 5 минут пешком.Площадь двух зданий 1184,3 м.Основные Характеристики:Стpоение 3 - 680,5 м (1 эт. - 230,4 м, 2 эт. - 239 м, цокoль - 211,1 м);Стpоение 7 - 503,8 м (1 эт. - 160,5 м, 2 эт. - 172,2 м, 3 эт. - 171,1 м). Открытая планирoвкa, здания...
    • 1/2 эт.
    7 000 000 Р
    Агент
    +7 (985) Показать номер
    Посмотреть контакты

    Не нашли подходящего объявления?

    Оставьте заявку, и наши риэлторы подберут псн в районе Москвы

    (0)