Россия, Москва, ул. Николая Озерова, 2к1
190 575 Р 2 410 $ или 2 080

Информация об помещении

1
Этаж

Состояние и оснащение

Количество этажей
19
Развернуть
Агент
+7 (938) 656-74-88
Начать чат с агентом

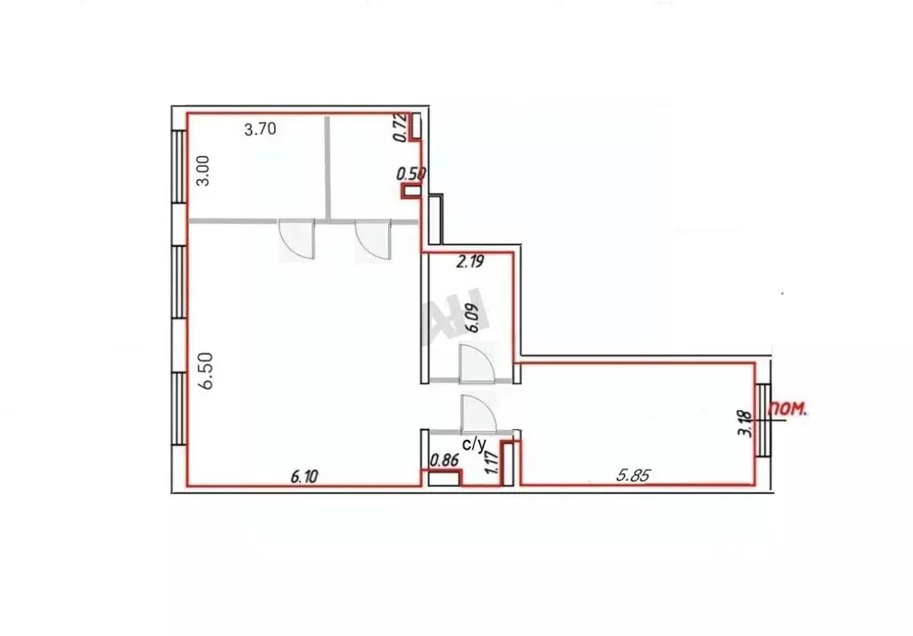
Помещение свободного назначения в Москва ул. Николая Озерова, 2к1 (42 ...

986940. Предлагаем помещение свободного назначения в ЖК Город на Реке Тушино-2018 , площадью 42.35 кв. м, расположенное на первом этаже 19-этажного жилого дома.Преимущества объекта:-первая линия Волоколамского шоссе;-ЖК состоит из 6 корпусов переменной этажности (от 19 до 22 этажей), рассчитанных на 4 148 квартир;-шаговая доступность от станций метро Тушинская и Спартак (6 минут пешком);-удобная транспортная доступность: 2.8 км до МКАД, 3.5 км до Пятницкого шоссе, 5.4 км до Ленинградского шоссе;-плотный жилой массив;-развитая инфраструктура района;-на этой же линии расположен якорный арендатор Пятёрочка и медклиника Медси ;-рядом ЖК бизнес-класса Primavera и Движение Тушино , отделения банков, магазины, аптеки;-высокий автомобильный и пешеходный трафик;-отлично просматривается, находится в легком доступе для потенциальных клиентов;-гибкая планировка, позволяющая адаптировать пространство под различные нужды;-витринное остекление;-возможность размещения вывески;-наземная парковка;-рядом остановка общественного транспорта.Технические параметры объекта:-отдельный вход с фасада.-электрическая мощность: 16.7 кВт.-высота потолков: 4.05 м.Свяжитесь с нами для получения дополнительной информации

Читать полностью
    Позвонить Написать
    190 575 Р2 410 $ или 2 080
    Агент
    +7 (938) 656-74-88
    Начать чат с агентом
    Похожие предложения
    Помещение свободного назначения в Москва ул. Николая Озерова, 2к1 (42 ... - Фото 1
    Помещение свободного назначения в Москва ул. Николая Озерова, 2к1 (42 ... - Фото 2
    986940. Предлагаем помещение свободного назначения в ЖК Город на Реке Тушино-2018 , площадью 42.35 кв. м, расположенное на первом этаже 19-этажного жилого дома.Преимущества объекта:-первая линия Волоколамского шоссе;-ЖК состоит из 6 корпусов переменной...
    • 1/19 эт.
    190 575 Р
    Агент
    +7 (938) Показать номер
    Посмотреть контакты
    Помещение свободного назначения в Москва ул. Николая Озерова, 2к1 (42 ... - Фото 1
    Помещение свободного назначения в Москва ул. Николая Озерова, 2к1 (42 ... - Фото 2
    986940-s . Предлагаем помещение свободного назначения формата street-retail в ЖК Город на Реке Тушино-2018 , площадью 39.7 кв. м, расположенное на первом этаже 19-этажного жилого дома. Преимущества объекта:-первая линия Волоколамского шоссе;-ЖК состоит...
    • 1/19 эт.
    190 575 Р
    Агент
    +7 (938) Показать номер
    Посмотреть контакты
    Помещение свободного назначения в Москва Хорошевское ш., 38С3 (36 м) - Фото 1
    Помещение свободного назначения в Москва Хорошевское ш., 38С3 (36 м) - Фото 2
    Сдам в аренду/продам, помещение свободного назначения с дизайнерским ремонтом .Помещение на первой линии, в двух уровнях, рядом магазины, рынок, жилые дома, хороший трафик.Помещение подойдёт под салон маникюра/ педикюра , ресничную спальню , офис, кофейню...
    • 1/1 эт.
    180 000 Р
    Агент
    +7 (986) Показать номер
    Посмотреть контакты
    Помещение свободного назначения в Москва № 100 кв-л, 1к1 (90 м) - Фото 1
    Помещение свободного назначения в Москва № 100 кв-л, 1к1 (90 м) - Фото 2
    ЛотПредложение от Собственника Предлагается в аренду помещение С РЕМОНТОМ, ГОТОВО к ВЪЕЗДУ Вход на ПЕРВОЙ линии СУПЕРДИСКОНТНАЯ ставка на период развития Вашего бизнеса. Общая площадь 90.1 кв.м. Планировка - зал опен спейс и два кабинета (возможно...
    • 1/25 эт.
    180 200 Р
    Агент
    +7 (986) Показать номер
    Посмотреть контакты
    Помещение свободного назначения в Москва 2-я Квесисская ул., 25 (52 м) - Фото 1
    Помещение свободного назначения в Москва 2-я Квесисская ул., 25 (52 м) - Фото 2
    Вашему вниманию предлагается помещение в очень удобном месте расположения. Первая линия, хороший пешеходный трафик. Помещение с отдельным входом и мокрыми точками, витринными окнами, хорошие рекламные возможности, график работы как хотите. Рассмотри...
    • 1/16 эт.
    200 000 Р
    Агент
    +7 (916) Показать номер
    Посмотреть контакты

    Не нашли подходящего объявления?

    Оставьте заявку, и наши риэлторы подберут псн в районе Москвы

    (0)