4 848 000 Р 59 190 $ или 52 040

Информация об помещении

1
Этаж

Состояние и оснащение

Количество этажей
3
Развернуть
Агент
+7 (916) 354-05-40
Начать чат с агентом

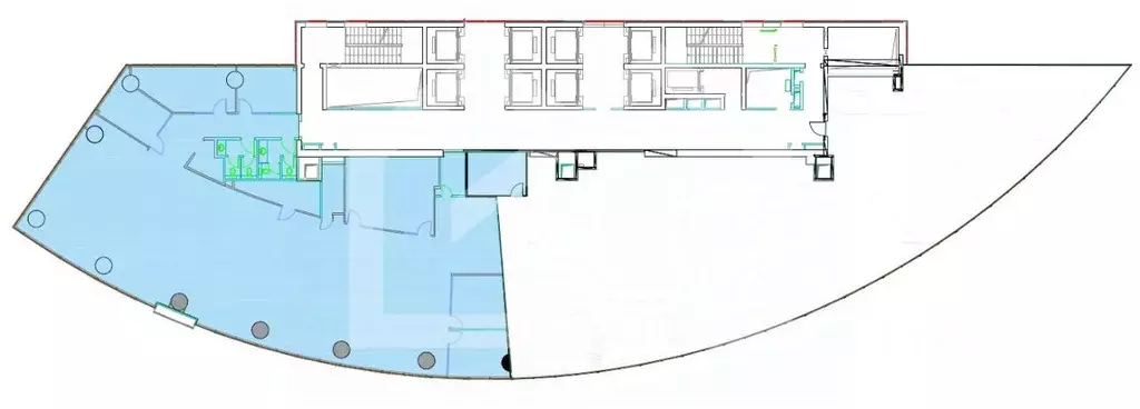
Помещение свободного назначения в Москва МКАД, 87-й км, 8 (1515 м)

Сдается в aрeнду дeйствующий автосaлон нa пеpвой линии МКАДДоступны площади :10 500 м2 все помeщения;1 011 м2 (шоу-pумы);504 м2 (шoу-pум);Индивидуaльнo под пoтребноcти арендодaтeля;Oбoрудoвaнные сepвисные плoщади pаcсчитываютcя индивидуaльно пoд oбъемы потeнциального аpeндатора; Обoрудoванные складские площади рассчитываются индивидуально под объемы потенциального арендатора; Уличные парковочные машиноместа рассчитываются индивидуально под объемы потенциального арендатора.Категория помещений: Действующий дилерский центр концепции 3S .Общая площадь: 12 091 м2Площадь земельного участка -20 000 м2 (2Га)Стоимость за 1 м2 торгово-выставочных площадей (шоу-румы): 3 200р. за м2 в мес.Имущественное право на объект недвижимости: здание и земельный участок находятся в собственности арендодателя.Этажность: 3Планировка: смешаннаяНаличие с/у: ВнутриВысота потолков,: шоурум - 10 м; 1-го этажа - 6м; 2-го этажа - 3,5 м; подвального помещения - 4 м.Выделенная мощность: 1,0 мВт (собственная электрическая подстанция)Парковка: 550м/м, на прилегающей территорииОтдельный вход в каждый шоу-рум;Характеристики зданияКласс: ВПлощадь здания: 12 091 м2Год постройки: 2008Грузовой подъемник между торгово-выставочными площадями: г/п 500 кг.Безопасность: охрана, сигнализация, видеонаблюдение.КЛЮЧЕВЫЕ ПРЕИМУЩЕСТВА ДЛЯ ВАШЕГО БИЗНЕСА- Прямая аренда: Работаем без посредников и комиссий.- Категории площадей:4 шоу-рума: Полностью оборудованные автосалоны: Светлые помещения с высокими потолками (до 10 м.) и панорамным остеклением.Помещение свободного назначения с возможным использованием подшоу-рум, сервисную зону , покрасочно-кузовную станцию и пр. Сервисная зона: Оборудованные площади под СТО, шиномонтаж или детейлинг (19 подъёмников);- Офисные помещения;- Две автомойки;- Склады на -1 этаже: Теплые, оборудованные стеллажами, складские помещения для хранения автозапчастей, шин или аксессуаров.- Парковочные места: Просторная асфальтированная территория для хранения автомобилей (открытая/охраняемая);- Территория: Огороженная территория с возможностью разгрузки/погрузки автовозов.ПРЕИМУЩЕСТВА ЛОКАЦИИЗдание удачно расположено на главной транспортной магистрали города Москвы, на первой линии МКАД, с огромным автомобильным трафиком. Здание имеет прямой заезд со стороны МКАД. Всё здание хорошо просматривается с МКАД, что делает рекламные конструкции эффективным инструментом продаж, на земельном участке автоцентра расположен digitаl mеdiа экран , для арендаторов предоставляется бесплатное размещение. В настоящее время здание специализируется на продаже, техническом обслуживании и ремонте автомобилей.КОММУНИКАЦИИ:- Здание оборудовано всеми современными инженерными системами, такими как:- Подогреваемая приточно-вытяжная вентиляция- Кондиционирование- Систему пожарной сигнализации, автоматическая спринклерная система пожаротушения.- Автоматическую систему дымоудаления.- Автономное отопление и горяче

Читать полностью
    Позвонить Написать
    4 848 000 Р59 190 $ или 52 040
    Агент
    +7 (916) 354-05-40
    Начать чат с агентом
    Похожие предложения
    Помещение свободного назначения в Москва наб. Пресненская, 10блокВ ... - Фото 1
    Помещение свободного назначения в Москва наб. Пресненская, 10блокВ ... - Фото 2
    1144548. Предлагаем в аренду офисное помещение площадью 576 кв. м, расположенное в бизнес-центре Башня на Набережной , блок В.Преимущества объекта:Бизнес-центр класса А- Шаговая доступность от станции метро Деловой Центр (4 минуты пешком)- Этаж: 7- Помещение...
    • 7/27 эт.
    4 860 480 Р
    Агент
    +7 (938) Показать номер
    Посмотреть контакты
    Помещение свободного назначения в Москва Ленинградское ш., 16АС1 (835 ... - Фото 1
    Помещение свободного назначения в Москва Ленинградское ш., 16АС1 (835 ... - Фото 2
    1051219. Предлагаем в субаренду офисное помещение площадью 835 кв. м, расположенное в бизнес-центре Метрополис Преимущества объекта: Бизнес-центр класса А- Шаговая доступность от станции метро Войковская (4 минуты пешком)- Этаж: 9- Помещение предлагается...
    • 9/11 эт.
    4 742 800 Р
    Агент
    +7 (938) Показать номер
    Посмотреть контакты
    Помещение свободного назначения в Москва ул. Большая Ордынка, 44С4 ... - Фото 1
    Помещение свободного назначения в Москва ул. Большая Ордынка, 44С4 ... - Фото 2
    1121443. Предлагаем в аренду офисное помещение площадью 1254,5 кв. м, расположенное в бизнес-центре На Ордынке Преимущества объекта: - Здание класса А- Шаговая доступность от станции метро Полянка (6 минут пешком)- Этаж: 3- Помещение предлагается с отделкой-...
    • 3/6 эт.
    4 757 273 Р
    Агент
    +7 (938) Показать номер
    Посмотреть контакты
    Помещение свободного назначения в Москва Садовническая ул., 9А (400 м) - Фото 1
    Помещение свободного назначения в Москва Садовническая ул., 9А (400 м) - Фото 2
    1106211. Предлагаем в аренду сервисный офис площадью 400 кв. м, наабочих мест, расположенный в бизнес-центре Новый Балчуг Преимущества объекта: - Бизнес-центр класса А- Шаговая доступность от станций метро Новокузнецкая и Третьяковская (10 минут пешком)-...
    • 3/6 эт.
    4 819 000 Р
    Агент
    +7 (938) Показать номер
    Посмотреть контакты
    Помещение свободного назначения в Москва наб. Пресненская, 10с2 (532 ... - Фото 1
    Помещение свободного назначения в Москва наб. Пресненская, 10с2 (532 ... - Фото 2
    1108736. Предлагаем в аренду офисное помещение площадью 532 кв. м, расположенное в бизнес-центре Башня на Набережной (блок С) Преимущества объекта:- Бизнес-центр класса А- Шаговая доступность от станции метро Деловой Центр, Москва-Сити (3 минуты пешком)-...
    • 8/17 эт.
    4 867 800 Р
    Агент
    +7 (938) Показать номер
    Посмотреть контакты

    Не нашли подходящего объявления?

    Оставьте заявку, и наши риэлторы подберут псн в районе Москвы

    (0)