238 900 Р 2 980 $ или 2 600

Информация об помещении

1
Этаж

Состояние и оснащение

Количество этажей
16
Развернуть
Агент
+7 (986) 274-27-15
Начать чат с агентом

Помещение свободного назначения в Москва ул. 26 Бакинских Комиссаров, ...

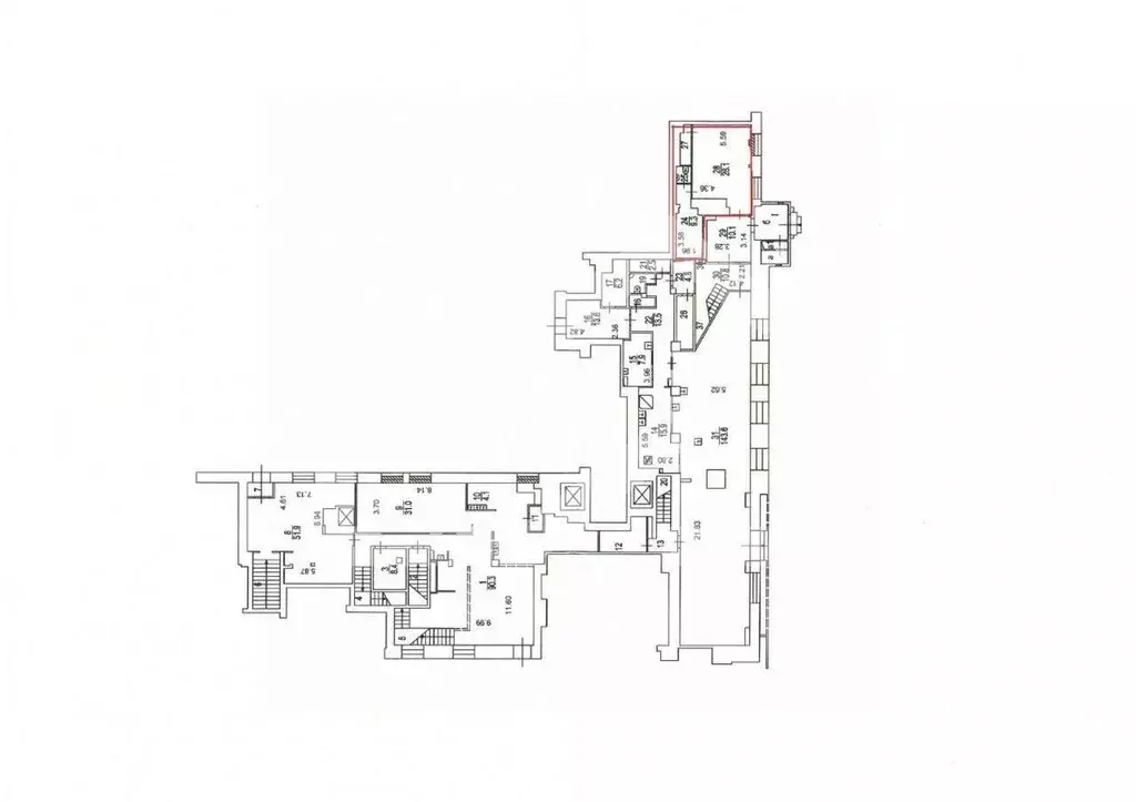
ЛотПредложение от Собственника Предлагается в аренду универсальное помещение свободного назначения общей площадью 103,1 кв.м., расположенное в шаговой доступности от станции метро Юго-Западная . Объект находится на первом этаже и характеризуется отличной транспортной и пешеходной доступностью, включая интенсивный пешеходный трафик.Помещение обладает открытой планировкой, предоставляющей полную свободу для перепланировок и адаптации под различные виды бизнеса, такие как магазин, офис, кафе, салон красоты или медицинский центр. Высота потолков составляет 2,6 метра. Объект оснащен всеми центральными городскими коммуникациями и современной инженерией. Для комфортного доступа предусмотрен отдельный вход.В непосредственной близости расположена развитая инфраструктура, включающая супермаркеты Пятёрочка и Авоська , аптеки Горздрав и Столички , пункт выдачи заказов Wildberries, магазин Мясницкий ряд и отделение почты России.Готовы к оперативным показам. Звоните Обеспечительный платеж 1 месяц.Чтобы получить ПОДРОБНУЮ ПРЕЗЕНТАЦИЮ С ПЛАНИРОВКОЙ И ФОТОГРАФИЯМИ, звоните или отправьте свой email и номер телефона в сообщении на портале. Высылаем в течение 15 минут по запросу Конт. лицо: Лидия Владимировна, доб. 240, ЛОТ 1046352

Читать полностью
    Позвонить Написать
    238 900 Р2 980 $ или 2 600
    Агент
    +7 (986) 274-27-15
    Начать чат с агентом
    Похожие предложения
    Помещение свободного назначения в Москва Средняя Первомайская ул., 4 ... - Фото 1
    Помещение свободного назначения в Москва Средняя Первомайская ул., 4 ... - Фото 2
    50 м от м. Первомайская Шикарное предложение для успешного развития вашего бизнеса Без комиссий Сдается в аренду помещение свободного назначения 121,9 кв.м. в современном многофункциональном комплексе на Первомайской. Очень удачно расположен в районе...
    • -1/3 эт.
    242 000 Р
    Агент
    +7 (923) Показать номер
    Посмотреть контакты
    Помещение свободного назначения в Москва просп. Мира, 112 (39 м) - Фото 1
    Помещение свободного назначения в Москва просп. Мира, 112 (39 м) - Фото 2
    954665. Предлагаем помещение свободного назначения, площадью 38.5 кв. м, расположенное на первом этаже 10-этажного жилого дома. Преимущества объекта:-первая линия проспекта Мира;-80 м от станции метро Алексеевская ;-удобная транспортная доступность:...
    • 1/9 эт.
    250 000 Р
    Агент
    +7 (938) Показать номер
    Посмотреть контакты
    Помещение свободного назначения в Москва Производственная ул., 19Ак3 ... - Фото 1
    Помещение свободного назначения в Москва Производственная ул., 19Ак3 ... - Фото 2
    1087820. Предлагаем угловое помещение свободного назначения в ЖК Лучи , площадью 54.6 кв. м, расположенное на первом этаже 24-этажного жилого дома. Корпус: 3-4.Преимущества объекта:-ЖК состоит из 16 корпусов переменной этажности (от 19 до 24 этажей),...
    • 1/24 эт.
    245 700 Р
    Агент
    +7 (938) Показать номер
    Посмотреть контакты
    Помещение свободного назначения в Москва Производственная ул., 17 (54 ... - Фото 1
    Помещение свободного назначения в Москва Производственная ул., 17 (54 ... - Фото 2
    1095061. Предлагаем помещение свободного назначения, площадью 54,2 кв. м, расположенное на первом этаже жилого дома в ЖК Лучи . Корпус 15. Преимущества объекта:-ЖК состоит из 16 корпусов переменной этажности (от 5 до 24 этажей);-шаговая доступность от...
    • 1/24 эт.
    243 900 Р
    Агент
    +7 (938) Показать номер
    Посмотреть контакты
    Помещение свободного назначения в Москва Производственная ул., 19Ак2 ... - Фото 1
    Помещение свободного назначения в Москва Производственная ул., 19Ак2 ... - Фото 2
    1095064. Предлагаем помещение свободного назначения, площадью 54,8 кв. м, расположенное на первом этаже жилого дома в ЖК Лучи . Корпус 3-4. Угловой блок. Преимущества объекта:-ЖК состоит из 16 корпусов переменной этажности (от 5 до 24 этажей);-шаговая...
    • 1/24 эт.
    246 600 Р
    Агент
    +7 (938) Показать номер
    Посмотреть контакты

    Не нашли подходящего объявления?

    Оставьте заявку, и наши риэлторы подберут псн в районе Москвы

    (0)