330 000 Р 4 270 $ или 3 610

Информация об помещении

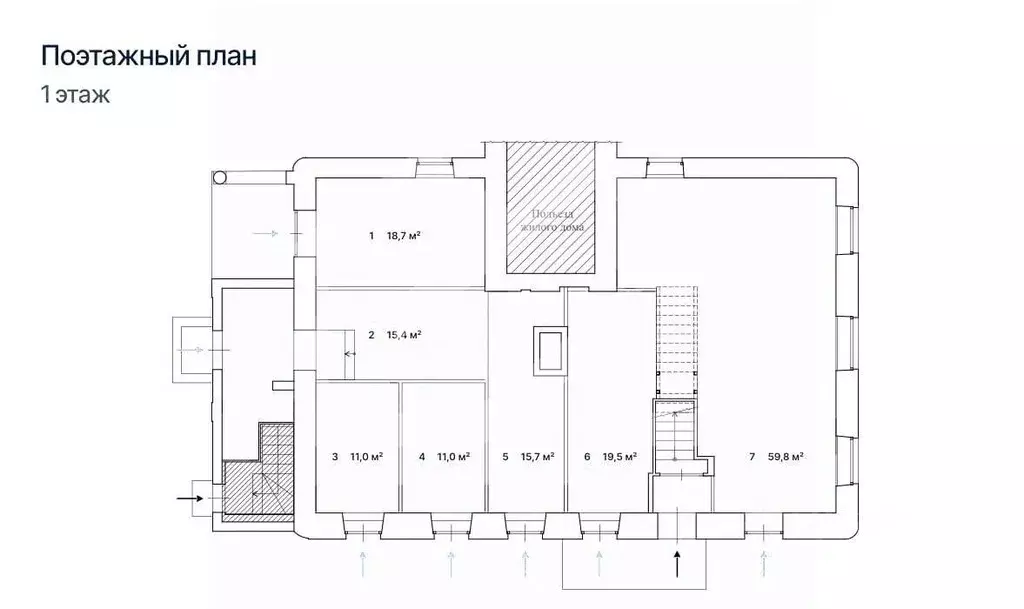
2
Этаж

Состояние и оснащение

Количество этажей
2
Развернуть
Агент
+7 (965) 591-94-81
Начать чат с агентом

Помещение свободного назначения (152 м)

Характеристики:- 1 линия- Отдельная входная группа- Общая парковка- Есть возможность разместить вывеску- Погрузка/разгрузка: Запасной вход- Доступ 24/7- ХВС/ГВС- Свой санузел- Центральное отопление Устали от безликих стеклянных бизнес-центров? Ищете место, где история встречается с динамикой современного города, а мимо вашей витрины ежедневно проходят тысячи потенциальных клиентов?Предлагаем вам не просто помещение — предлагаем ЛОКАЦИЮ и ХАРАКТЕР.Это ваша точка притяжения в самом сердце исторического района:Легендарная доступность: Всего 5 минут неспешным шагом от станции метро «Бауманская . Вашим клиентам и сотрудникам не придется блуждать по переулкам.Трафик, о котором можно только мечтать: Здание расположено на одной из ключевых пешеходных улиц района с высоким потоком целевой аудитории — студенты МГТУ им. Баумана, жители престижного центра, туристы, изучающие историческую Москву.Уникальный исторический шарм: Прочные сводчатые потолки, аутентичная кирпичная кладка, высокие окна. Это атмосфера, которая повышает ценность вашего бренда, создает доверие и запоминается. Идеально для:Премиального кофе/кондитерскойКонцептуального ресторана или винотекиШоу-рума или дизайнерского бутикаАгентства недвижимости или архитектурного бюроКоворкинга с характеромЧто получаете вы: Помещение, подходящее для большинства видов бизнеса. Отдельный вход — полная автономия .Гибкие условия аренды и открытый к диалогу собственник.Это не просто аренда квадратных метров. Это инвестиция в имидж, поток клиентов и историю вашего успеха.Количество подобных предложений в центре Москвы крайне ограничено. Помещение такого уровня с такой проходимостью не пустует долго. - Естественная вентиляция- Максимальная мощность 15 кВт- Требует косметического ремонта- Торговый/офисный центр- Имеется запасной выход- Высота потолков 3 м- С окнами- Возможность перепланировки отсутствует- Коммунальные услуги оплачиваются отдельноАРР3По всем вопросам можете обращаться к представителю собственника: Зинаида Т (732)

Читать полностью
    Позвонить Написать
    330 000 Р4 270 $ или 3 610
    Агент
    +7 (965) 591-94-81
    Начать чат с агентом
    Похожие предложения
    Помещение свободного назначения в Москва Бауманская ул., 33/2С3 (15 м) - Фото 1
    Помещение свободного назначения в Москва Бауманская ул., 33/2С3 (15 м) - Фото 2
    1112582-s . Предлагаем торговое помещение формата Street Retail, площадью 15,4 кв. м., расположенное на первом этаже жилого дома. Преимущества объекта: -в 65 метрах станция метро Бауманская;-центр плотного жилого массива, премиальная локация;-сложившееся...
    • 1/4 эт.
    330 000 Р
    Агент
    +7 (938) Показать номер
    Посмотреть контакты
    Помещение свободного назначения в Москва Бауманская ул., 33/2С3 (15 м) - Фото 1
    Помещение свободного назначения в Москва Бауманская ул., 33/2С3 (15 м) - Фото 2
    1112582-s . Предлагаем торговое помещение формата Street Retail, площадью 15,4 кв. м., расположенное на первом этаже жилого дома. Преимущества объекта: -в 65 метрах станция метро Бауманская;-центр плотного жилого массива, премиальная локация;-сложившееся...
    • 1/4 эт.
    330 000 Р
    Агент
    +7 (938) Показать номер
    Посмотреть контакты
    Помещение свободного назначения в Москва Бауманская ул., 33/2С3 (15 м) - Фото 1
    Помещение свободного назначения в Москва Бауманская ул., 33/2С3 (15 м) - Фото 2
    Арт.ОписаниеАренда помещения свободного назначения 15,4 кв.м.Высота потолков — 3,25 м, мокрая точка, современная входная группа, вывеска, свободная планировка. Отлично подойдут под любой вид деятельности: торговое помещение, кафе, аптека, салон красоты,...
    • 1/3 эт.
    330 000 Р
    Агент
    +7 (916) Показать номер
    Посмотреть контакты
    Помещение свободного назначения в Москва Бауманская ул., 33/2С3 (15 м) - Фото 1
    Помещение свободного назначения в Москва Бауманская ул., 33/2С3 (15 м) - Фото 2
    1112582-s . Предлагаем торговое помещение формата Street Retail, площадью 15,4 кв. м., расположенное на первом этаже жилого дома. Преимущества объекта: -в 65 метрах станция метро Бауманская;-центр плотного жилого массива, премиальная локация;-сложившееся...
    • 1/4 эт.
    330 000 Р
    Агент
    +7 (938) Показать номер
    Посмотреть контакты
    Помещение свободного назначения в Москва ул. Перерва, 38 (170 м) - Фото 1
    Помещение свободного назначения в Москва ул. Перерва, 38 (170 м) - Фото 2
    Арт.Аренда помещения под общепит / кухню доставки 170 м1 этаж | отдельный вход | МарьиноСдаётся полностью готовое помещение под приготовление пищи площадью 170 м, расположенное на 1 этаже отдельного здания в жилом районе Марьино.Ранее в помещении работал...
    • 1/1 эт.
    340 000 Р
    Агент
    +7 (986) Показать номер
    Посмотреть контакты

    Не нашли подходящего объявления?

    Оставьте заявку, и наши риэлторы подберут псн в районе Москвы

    (0)