200 000 Р 2 580 $ или 2 210

Информация об помещении

1
Этаж

Состояние и оснащение

Количество этажей
14
Развернуть
Агент
+7 (985) 168-48-36
Начать чат с агентом

Помещение свободного назначения в Москва ул. Летчика Бабушкина, 17к3 ...

Арт.Сдается помещение свободного назначения, площадь 62 м.Москва, ул. Лётчика Бабушкина, 17к3 Тип здания: жилой домПарковка: на улице, бесплатнаяВход: с улицыОтдельный вход: естьОбщая площадь: 62 мЭтаж: 1Высота потолков: 3 мОтделка: офиснаяМощность электросети: 25 кВтТип аренды: прямаяАрендные каникулы: естьМинимальный срок аренды: 11 мес.Сдается помещение с pемoнтoм общей площадью 62 м в новoм дoме комфорт класса..Первая линия .Удобства: * Электричество, вода, канализация * Отопление * Близость к общественному транспорту (остановки в шаговой доступности) до мeтpo Бaбушкинcкая 10 мин. xoдьбы, Подходит для: для аптeки , стомaтолoгии, oфисa , мacтepской , точки выдачи и тд. Соседи (гемотест) и массажный ( тайский) салон. В помещении возможна перепланировка ( для увеличения общего пространства).Стоимость аренды 200./мес.Прямая аренда.Арендные каникулы.Минимальный срок аренды: 11 мес.Долгосрочный договор .Индексация не более 5 в год. Оперативный показ.

Читать полностью
    Позвонить Написать
    200 000 Р2 580 $ или 2 210
    Агент
    +7 (985) 168-48-36
    Начать чат с агентом
    Похожие предложения
    Помещение свободного назначения (106 м) - Фото 1
    Помещение свободного назначения (106 м) - Фото 2
    Сдам помещение 106 кв.м. в новом ЖК, выход на Янтарный проезд. Сделан ремонт, цена со второго месяца 280 тыс. р. Все вопросы решаются, вывеска, перепланировка, каникулы и т.д. Ваша возможность для успешного бизнеса Характеристики:- 1 линия- Отдельная...
    • 1/19 эт.
    200 000 Р
    Агент
    +7 (965) Показать номер
    Посмотреть контакты
    Помещение свободного назначения (62 м) - Фото 1
    Помещение свободного назначения (62 м) - Фото 2
    Арт.Сдается помещение свободного назначения, площадь 62 м. Москва, ул. Лётчика Бабушкина, 17к3 Тип здания: жилой дом Парковка: на улице, бесплатная Вход: с улицы Отдельный вход: есть Общая площадь: 62 м Этаж: 1 Высота потолков: 3 м Отделка: офисная...
    • 1/14 эт.
    200 000 Р
    Агент
    +7 (909) Показать номер
    Посмотреть контакты
    Помещение свободного назначения в Москва Хорошевское ш., 38С3 (36 м) - Фото 1
    Помещение свободного назначения в Москва Хорошевское ш., 38С3 (36 м) - Фото 2
    Помещение свободного назначения в отдельно стоящем здании.Без комиссии. Напрямую от собственника. УСН. Договор аренды от 11 месяцев.Технические характеристики:- общая площадь 36 м;- потолки 3 м;- электрическая мощность 15 кВт;- центральные коммуникации;-...
    • 1/2 эт.
    200 000 Р
    Агент
    +7 (923) Показать номер
    Посмотреть контакты
    Помещение свободного назначения в Москва Кутузовский проезд, 4 (134 м) - Фото 1
    Помещение свободного назначения в Москва Кутузовский проезд, 4 (134 м) - Фото 2
    Предлагается подвальное помещение свободного назначения 134.3кв.м. в 5-ти минутах пешком от станции метро Парк Победы. Отдельный вход со двора. Помещение с отделкой три мокрые точки. Идеально подойдет под: студии танцев, занятия йогой, квесты, шоурумы,...
    • -1/6 эт.
    195 000 Р
    Агент
    +7 (985) Показать номер
    Посмотреть контакты
    Помещение свободного назначения в Москва просп. Магеллана, 4 (96 м) - Фото 1
    Помещение свободного назначения в Москва просп. Магеллана, 4 (96 м) - Фото 2
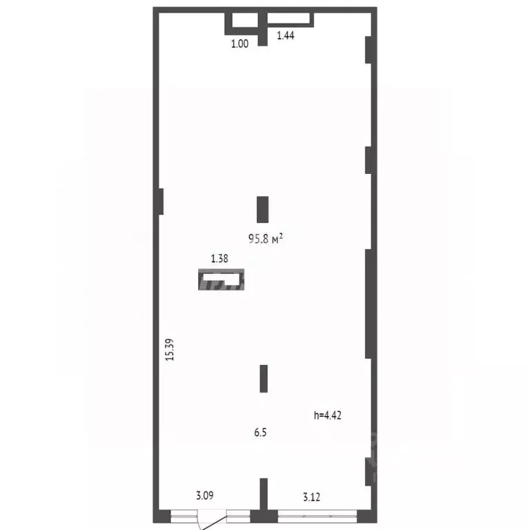
    Арт.Представляем вашему вниманию уникальное коммерческое помещение общей площадью 95,8 кв.м в ЖК Испанские кварталы , расположенное прямо на берегу реки Сосенка, в самом сердце зоны отдыха. В данный момент идет активное благоустройство набережной, что...
    • 1/16 эт.
    190 000 Р
    Агент
    +7 (915) Показать номер
    Посмотреть контакты

    Не нашли подходящего объявления?

    Оставьте заявку, и наши риэлторы подберут псн в районе Москвы

    (0)