4 498 271 Р 58 210 $ или 49 270

Информация об помещении

13
Этаж

Состояние и оснащение

Количество этажей
23
Развернуть
Агент
+7 (938) 656-74-88
Начать чат с агентом

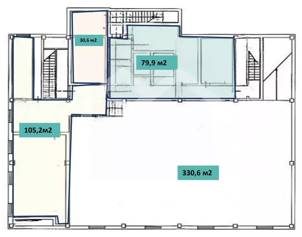
Помещение свободного назначения в Москва Бумажный проезд, 19С4 (977 м)

1066692-o . Предлагаем в аренду офисное помещение площадью 977 кв. м, расположенное на 13 этаже нового бизнес-центра Stone Tower B Преимущества объекта:- Бизнес-центр класса А- Шаговая доступность от станции метро Савеловская (4 минуты пешком)- Помещение предлагается с отделкой (будет выполнена арендодателем по ТЗ арендатора)- Планировка открытая- Панорамное остекление- Высота потолка 3.65 м- Количество парковочных мест - 5Эксплуатационные и коммунальные платежи оплачиваются дополнительно.Оперативно организуем для Вас показ и ответим на все вопросы.Свяжитесь с нами для получения дополнительной информации

Читать полностью
    Позвонить Написать
    4 498 271 Р58 210 $ или 49 270
    Агент
    +7 (938) 656-74-88
    Начать чат с агентом
    Похожие предложения
    Помещение свободного назначения в Москва ул. Вавилова, 13А (932 м) - Фото 1
    Помещение свободного назначения в Москва ул. Вавилова, 13А (932 м) - Фото 2
    Бизнес-центр Ленинский (Башня S) класса AПлощадь: 931,7 м2Арендная ставка: 58 458,. за м2 в год включая НДССтоимость площади в месяц:,. включая НДССистема налогообложения: НДСЭтаж: 2Планировка: открытаяНаличие с/у: , ВнутриСтатус: свободенХарактеристики...
    • 2/12 эт.
    4 538 803 Р
    Агент
    +7 (911) Показать номер
    Посмотреть контакты
    Помещение свободного назначения в Москва Шмитовский проезд, 37с2 (742 ... - Фото 1
    Помещение свободного назначения в Москва Шмитовский проезд, 37с2 (742 ... - Фото 2
    922745-o . Предлагаем в аренду офисное помещение площадью 742 кв. м, расположенное на 28 этаже Бизнес-центра ICity Преимущества объекта:- Бизнес-центр класса А- Шаговая доступность от станции метро Шелепиха (5 минут пешком)- Этаж: 28- Помещение предлагается...
    • 28/61 эт.
    4 500 000 Р
    Агент
    +7 (938) Показать номер
    Посмотреть контакты
    Помещение свободного назначения в Москва Верейская ул., 29С134 (1286 ... - Фото 1
    Помещение свободного назначения в Москва Верейская ул., 29С134 (1286 ... - Фото 2
    961247-o . Предлагаем в аренду сервисный офис площадью 1 286 кв. м рассчитанный наабочих мест, расположенный в бизнес-центре Верейская плаза III Преимущества объекта: - Бизнес-центр класса В+- Шаговая доступность от станции метро Давыдково (18 минут...
    • 4/8 эт.
    4 500 000 Р
    Агент
    +7 (938) Показать номер
    Посмотреть контакты
    Помещение свободного назначения в Москва Преображенская пл., 8 (1943 ... - Фото 1
    Помещение свободного назначения в Москва Преображенская пл., 8 (1943 ... - Фото 2
    997208-o . Предлагаем в аренду офисное помещение площадью 1 943 кв. м, расположенное в бизнес-центре Прео8 .Преимущества объекта:- Бизнес-центр класса А- Шаговая доступность от станции метро Преображенская площадь (1 минута пешком)- Этаж: 24- Помещение...
    • 24/27 эт.
    4 444 613 Р
    Агент
    +7 (938) Показать номер
    Посмотреть контакты
    Помещение свободного назначения в Москва Мытищинский проезд, 6 (2709 ... - Фото 1
    Помещение свободного назначения в Москва Мытищинский проезд, 6 (2709 ... - Фото 2
    1101667. Предлагается производственно-складское здание общей площадью 2 708,5 кв. м. в Москве. 4 этажа + цоколь.Преимущества:1,2 км до ул. Проспект мира; 2,2 км до м. Рижская, Калужско-Рижской линии; 2,2 км до м. Рижская, Большой Кольцевой линии; 2,7...
    • 1/4 эт.
    4 600 000 Р
    Агент
    +7 (938) Показать номер
    Посмотреть контакты

    Не нашли подходящего объявления?

    Оставьте заявку, и наши риэлторы подберут псн в районе Москвы

    (0)