6 940 125 Р 89 810 $ или 76 020

Информация об помещении

5
Этаж

Состояние и оснащение

Количество этажей
5
Развернуть
Агент
+7 (938) 656-74-88
Начать чат с агентом

Помещение свободного назначения в Москва Таганская ул., 34С3 (1851 м)

986220-b . Предлагаем в аренду офисное помещение площадью 1 850,7 кв. м, расположенное в здании по адресу: улица Таганская, дом 34 строение 3Преимущества объекта:- Здание класса В- Шаговая доступность от станции метро Марксистская, Таганская и Крестьянская застава (8-10 минуты пешком)- Этаж: 1-5- Помещение предлагается с отделкой- Планировка смешанная- Помещение готово к въезду- Подземный и наземный паркинг- Высота потолков- 3 мЭксплуатационные платежи включены в ставку, коммунальные платежи оплачиваются дополнительно. Оперативно организуем для Вас показ и ответим на все вопросы.Свяжитесь с нами для получения дополнительной информации

Читать полностью
    Позвонить Написать
    6 940 125 Р89 810 $ или 76 020
    Агент
    +7 (938) 656-74-88
    Начать чат с агентом
    Похожие предложения
    Помещение свободного назначения в Москва Таганская ул., 34С3 (1851 м) - Фото 1
    Помещение свободного назначения в Москва Таганская ул., 34С3 (1851 м) - Фото 2
    986220-b . Предлагаем в аренду офисное помещение площадью 1 850,7 кв. м, расположенное в здании по адресу: улица Таганская, дом 34 строение 3Преимущества объекта:- Здание класса В- Шаговая доступность от станции метро Марксистская, Таганская и Крестьянская...
    • 5/5 эт.
    6 940 125 Р
    Агент
    +7 (938) Показать номер
    Посмотреть контакты
    Помещение свободного назначения в Москва наб. Пресненская, 10блокС ... - Фото 1
    Помещение свободного назначения в Москва наб. Пресненская, 10блокС ... - Фото 2
    1008344-o . Предлагаем в аренду офисное помещение площадью 860 кв. м, расположенное в бизнес-центре Башня на Набережной Преимущества объекта: Бизнес-центр класса А- Шаговая доступность от станции метро Деловой Центр (4 минуты пешком)- Этаж: 7- Помещение...
    • 7/59 эт.
    6 994 667 Р
    Агент
    +7 (938) Показать номер
    Посмотреть контакты
    Помещение свободного назначения в Москва Холодильный пер., 3к1с3 (1279 ... - Фото 1
    Помещение свободного назначения в Москва Холодильный пер., 3к1с3 (1279 ... - Фото 2
    1016064-o . Предлагаем в аренду сервисный офис площадью 1 279 кв. м (абочих мест), расположенный в бизнес-квартале Товарищество Рябовской Мануфактуры, корпус Лен Преимущества объекта:- Бизнес-центр класса В+- Шаговая доступность от станции метро Тульская...
    • 2/5 эт.
    6 800 000 Р
    Агент
    +7 (938) Показать номер
    Посмотреть контакты
    Помещение свободного назначения в Москва Космодамианская наб., 52С1 ... - Фото 1
    Помещение свободного назначения в Москва Космодамианская наб., 52С1 ... - Фото 2
    1066280-o . Предлагаем в аренду офисное помещение площадью 1 410 кв. м, расположенное в бизнес-центре Риверсайд Тауэрс Преимущества объекта: - Бизнес-центр класса А- Шаговая доступность от станции метро Павелецкая (8 минут пешком)- Этаж: 4- Помещение...
    • 4/14 эт.
    6 880 800 Р
    Агент
    +7 (938) Показать номер
    Посмотреть контакты
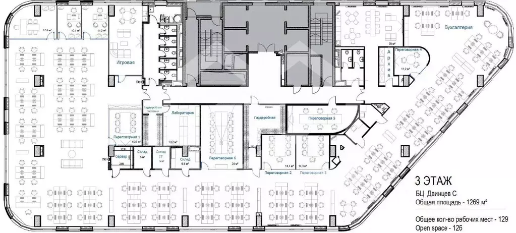
    Помещение свободного назначения в Москва ул. Двинцев, 12к1С (1269 м) - Фото 1
    Помещение свободного назначения в Москва ул. Двинцев, 12к1С (1269 м) - Фото 2
    1098426-o . Предлагаем в аренду офисное помещение площадью 1 269 кв. м, расположенное в бизнес-центре Двинцев Преимущества объекта: - Бизнес-центр класса А- Шаговая доступность от станции метро Савёловская (9 минут пешком)- Этаж: 3- Помещение предлагается...
    • 3/15 эт.
    6 859 600 Р
    Агент
    +7 (938) Показать номер
    Посмотреть контакты

    Не нашли подходящего объявления?

    Оставьте заявку, и наши риэлторы подберут псн в районе Москвы

    (0)