339 850 Р 4 370 $ или 3 750

Информация об помещении

1
Этаж

Состояние и оснащение

Количество этажей
21
Развернуть
Агент
+7 (985) 045-69-10
Начать чат с агентом

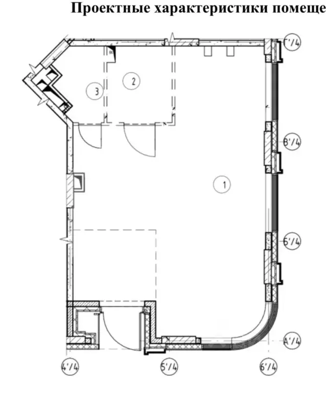
Помещение свободного назначения в Москва Очаковское ш., 9А (97 м)

ПОМЕЩЕНИЕ С ПРЕДЧИСТОВОЙ ОТДЕЛКОЙСдается коммерческое помещение общей площадью 97,1 мОсобенности расположения данного помещения:— Через помещение проходит трафик людей, проживающих в ЖК— Рядом детский сад, что повышает проходящий трафик— Высотная застройка, густое население - высокий потенциальный поток клиентов.Особенности помещения:-- Входная группа на уровне земли, без лестниц и пандусов-- Возможность установить видимую вывеску с двух сторон здания;-- Проходное помещение, с проходящим трафиком в сторону метро;-- Удачное планировочное зонирование помещения, можно разделить на несколько зонВ помещении проведено:- ХГВС- Канализационный слив- Мощность электроэнергии, возможность увеличенияГотов ответить на возникшие вопросы, предоставить фотоальбом и провести оперативный показ помещения.

Читать полностью
    Позвонить Написать
    339 850 Р4 370 $ или 3 750
    Агент
    +7 (985) 045-69-10
    Начать чат с агентом
    Похожие предложения
    Помещение свободного назначения в Москва Кирпичная ул., 6С2 (216 м) - Фото 1
    Помещение свободного назначения в Москва Кирпичная ул., 6С2 (216 м) - Фото 2
    Сдам офис кабинетной планировки, общей площадью 215 кв.м. Находится в шаговой доступности от м. Семеновская и м. Электрозаводская Тихий уютный двор Благоустроенная территория, которая охраняется и огорожена, оборудованная искусственным освещением. Доступ...
    • 2/2 эт.
    345 600 Р
    Агент
    +7 (985) Показать номер
    Посмотреть контакты
    Помещение свободного назначения в Москва проезд Невельского, 3к2 (55 ... - Фото 1
    Помещение свободного назначения в Москва проезд Невельского, 3к2 (55 ... - Фото 2
    Арт.. Сдам в аренду помещение в сердце большого спального района ЖК Символ с большим трафиком- Элитный район с высоким пешеходным трафиком- Отдельный вход, доступ 24/7- Просторное помещение с возможностью расширения-Высокие потолки (5 м ), дают возможномть...
    • 1/1 эт.
    330 000 Р
    Агент
    +7 (916) Показать номер
    Посмотреть контакты
    Помещение свободного назначения в Москва Самарская ул., 1 (86 м) - Фото 1
    Помещение свободного назначения в Москва Самарская ул., 1 (86 м) - Фото 2
    Уникальное предложение Сдаётся в аренду премиальное помещение под салон красоты в одном из самых статусных SPA-пространств Москвы.Общая площадь — 55 м, дополнительно — просторная и представительная зона ресепшен — 31 м.Помещение расположено в большом...
    • 13/33 эт.
    350 000 Р
    Агент
    +7 (915) Показать номер
    Посмотреть контакты
    Помещение свободного назначения в Москва ул. Дмитрия Ульянова, 10/1К1 ... - Фото 1
    Помещение свободного назначения в Москва ул. Дмитрия Ульянова, 10/1К1 ... - Фото 2
    636151. Предлагаем помещение свободного назначения, площадью 44.1 кв. м, расположенное на первом этаже 4-этажного жилого дома. Преимущества объекта:-на пересечении ул. Ивана Бабушкина и Дмитрия Ульянова;-первая линия;-шаговая доступность от станции метро...
    • 1/4 эт.
    330 000 Р
    Агент
    +7 (938) Показать номер
    Посмотреть контакты
    Помещение свободного назначения в Москва наб. Марка Шагала, 15к2 (66 ... - Фото 1
    Помещение свободного назначения в Москва наб. Марка Шагала, 15к2 (66 ... - Фото 2
    925820. Предлагаем помещение свободного назначения, площадью 66 кв. м., расположенное на первом этаже жилого дома в ЖК Shagal . Корпус 4. Без комиссии для арендатора.Преимущества объекта:-первая линия набережной Марка Шагала;-ЖК состоит из 27 корпусов...
    • 1/15 эт.
    330 000 Р
    Агент
    +7 (938) Показать номер
    Посмотреть контакты

    Не нашли подходящего объявления?

    Оставьте заявку, и наши риэлторы подберут псн в районе Москвы

    (0)