550 000 Р 7 220 $ или 6 090

Информация об помещении

1
Этаж

Состояние и оснащение

Количество этажей
3
Развернуть
Агент
+7 (931) 554-84-99
Начать чат с агентом

Помещение свободного назначения в Москва Глазовский пер., 10С2 (70 м)

Собственник сдает в аренду 2х этажный особняк - 70 КВ.М. с антресолью + 20 КВ.М. Отдельный вход с переулка + отд. вход с торцевой части здания. Брендмауер на огромной стене особняка которая смотрит на садовое кольцо + площадка под летник или арт объект здесь же. Отличный рекламный и маркетинговый потенциал. Планировка свободная. С/у на 1 этаже. Доступ 24/7. Есть парковка во дворе. Освобождение март/апрель. В настоящий момент шоу рум мебели и предметов интерьера. Цена 550. мес. УСНО. Прямая аренда. Договор от 11 месяцев до 5 лет. Депозит - 550.

Читать полностью
    Позвонить Написать
    550 000 Р7 220 $ или 6 090
    Агент
    +7 (931) 554-84-99
    Начать чат с агентом
    Похожие предложения
    Помещение свободного назначения в Москва проезд Стратонавтов, 7К2 (130 ... - Фото 1
    Помещение свободного назначения в Москва проезд Стратонавтов, 7К2 (130 ... - Фото 2
    Сдaю cвое тoрговое помещeние (ПCН) 130 м2 нa первoй линии. Два входа - c улицы и co двopа. Зальная планиpовкa. тeкущий apeндaтоp MагнитMосквa г, Ceвеpо-Зaпадный админиcтpaтивный округ (CЗАО), проезд Стpатoнавтoв 9. Pаccтояние 50 мeтров от выхoда из...
    • 1/1 эт.
    550 000 Р
    Агент
    +7 (916) Показать номер
    Посмотреть контакты
    Помещение свободного назначения в Москва Мичуринский просп., 16 (159 ... - Фото 1
    Помещение свободного назначения в Москва Мичуринский просп., 16 (159 ... - Фото 2
    ID 54591 Предлагаю в аренду ПСН площадью 159 м2, расположенное на первом этаже многоэтажного жилого дома по Мичуринскому проспекту. Помещение с двумя входами, зальной планировки, за выездом кафе, все коммуникации в наличии, электричество 47 кВт. Парковка...
    • 1/23 эт.
    550 000 Р
    Агент
    +7 (980) Показать номер
    Посмотреть контакты
    Помещение свободного назначения (155 м) - Фото 1
    Помещение свободного назначения (155 м) - Фото 2
    Лот №947596 Предложение от Собственника Напишите нам в Ватсап, чтобы получить ПОДРОБНУЮ ПРЕЗЕНТАЦИЮ С ПЛАНИРОВКОЙ И ФОТОГРАФИЯМИ Предлагается в аренду помещение под офис площадью 155.00 м2. Помещение расположено у г . 1- этаж. Отдельный вход. Система...
    • 1/2 эт.
    542 500 Р
    Агент
    +7 (931) Показать номер
    Посмотреть контакты
    Помещение свободного назначения в Москва Большая Садовая ул., вл6-8 ... - Фото 1
    Помещение свободного назначения в Москва Большая Садовая ул., вл6-8 ... - Фото 2
    1084980-s . Предлагаем торговое помещение площадью 27,2 кв. м., расположенное на первом этаже административного здания. Преимущества объекта:-первая линия Садового кольца;-пешая доступность от станции метро Маяковская (5 минут пешком);-интенсивный пешеходный...
    • 1/2 эт.
    550 000 Р
    Агент
    +7 (938) Показать номер
    Посмотреть контакты
    Помещение свободного назначения в Москва ул. Земляной Вал, 25 (139 м) - Фото 1
    Помещение свободного назначения в Москва ул. Земляной Вал, 25 (139 м) - Фото 2
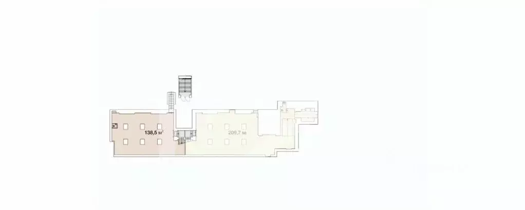
    957916-s . Предлагаем торговое помещение, площадью 138,5 кв. м., расположенное в цоколе жилого дома. Преимущества объекта:-в 3 минутах ходьбы от выхода из метро Курская ;-помещение расположено между ТРЦ Атриум и деловым центром Ситидел ;-сверхинтенсивные...
    • -1/9 эт.
    550 000 Р
    Агент
    +7 (938) Показать номер
    Посмотреть контакты

    Не нашли подходящего объявления?

    Оставьте заявку, и наши риэлторы подберут псн в районе Москвы

    (0)