1 822 100 Р 23 740 $ или 20 180

Информация об помещении

1
Этаж

Состояние и оснащение

Количество этажей
25
Развернуть
Агент
+7 (968) 240-14-47
Начать чат с агентом

Помещение свободного назначения в Москва просп. Вернадского, 80 (260 ...

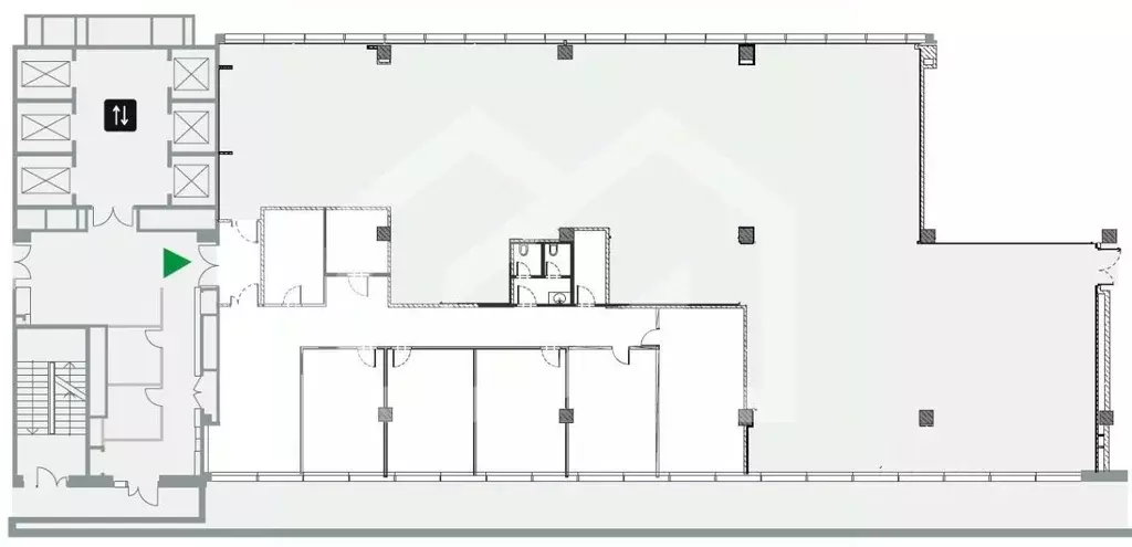
Арт.Возможна аренда блоками от 50 м2 КЛУБНЫЙ ДОМ БИЗНЕС-КЛАССА Full Houseасположен прямо выходе из метро Юго-Западная, на пересечении проспекта Вернадского и ул. Коштоянца. Сверхинтенсивный трафик Весь первый этаж здания предназначен для нежилых помещений. По проекту предусмотрена торговая галерея с ресторанами. Все помещения межу собой прекрасно сообщаются. Для доступа в галерею предусмотрено два вестибюля с разных сторон здания. Места общего пользования с отделкой из дорогих и качественных материалов.Площадь помещения 260.3 м2, благодаря большому количеству входных групп, есть возможность деления на блоки от 50 м2, и при этом каждое помещение будет с отдельным входом Свободная планировка, высокие потолки, витринное остекление, реклама на фасаде. Все коммуникации центральные.Идеальное место для размещения флагманского бутика, салона красоты, и других предприятий торговли и услуг. Долгосрочный договор аренды. На плане выделен контур помещений выделен красным цветом.

Читать полностью
    Позвонить Написать
    1 822 100 Р23 740 $ или 20 180
    Агент
    +7 (968) 240-14-47
    Начать чат с агентом
    Похожие предложения
    Помещение свободного назначения в Москва ул. Земляной Вал, 9 (280 м) - Фото 1
    Помещение свободного назначения в Москва ул. Земляной Вал, 9 (280 м) - Фото 2
    1110605-o . Предлагаем в аренду офисное помещение площадью 280 кв. м, расположенное в бизнес-центре Ситидел Преимущества объекта: - Бизнес-центр класса А- Шаговая доступность от станции метро Курская (4 минуты пешком)- Этаж: 8- Помещение предлагается...
    • 8/12 эт.
    1 793 400 Р
    Агент
    +7 (938) Показать номер
    Посмотреть контакты
    Помещение свободного назначения в Москва ул. Гиляровского, 65С1 (988 ... - Фото 1
    Помещение свободного назначения в Москва ул. Гиляровского, 65С1 (988 ... - Фото 2
    1109416-o . Предлагаем в аренду офисное помещение площадью 988 кв. м, расположенное в здании по адресу Гиляровского, д 65 стр 1.Преимущества объекта: - Здание класса В+ в стиле модерн, с уникальными фасадами со старинными витражами- Шаговая доступность...
    • 3/5 эт.
    1 702 500 Р
    Агент
    +7 (938) Показать номер
    Посмотреть контакты
    Помещение свободного назначения в Москва просп. Андропова, 36 (1459 м) - Фото 1
    Помещение свободного назначения в Москва просп. Андропова, 36 (1459 м) - Фото 2
    Аренда подземного паркинга -1 этаж - 1458,9 кв.м. в Торговом комплексе Гвоздь -2. Многофункциональный центр класса А общей площадью 16441 кв.м., по адресу: г. Москва, пр-т Андропова д. 36.На -1 этаже расположен подземный паркинг на 60 автомашин. Лифт...
    • -2/7 эт.
    1 823 625 Р
    Агент
    +7 (910) Показать номер
    Посмотреть контакты
    Помещение свободного назначения в Москва Шлюзовая наб., 8С1 (538 м) - Фото 1
    Помещение свободного назначения в Москва Шлюзовая наб., 8С1 (538 м) - Фото 2
    1112944-o . Предлагаем в аренду офисное помещение площадью 538,3 кв. м, расположенное в бизнес-центре Кошелев Преимущества объекта: - Здание класса В- Шаговая доступность от станции метро Павелецкая (8 минут пешком)- Этаж: 3- Помещение предлагается с...
    • 3/7 эт.
    1 704 600 Р
    Агент
    +7 (938) Показать номер
    Посмотреть контакты
    Помещение свободного назначения в Москва бул. Энтузиастов, 2 (393 м) - Фото 1
    Помещение свободного назначения в Москва бул. Энтузиастов, 2 (393 м) - Фото 2
    1105645-o . Предлагаем в аренду офисное помещение площадью 393 кв. м, расположенное в бизнес-центре Golden Gate Преимущества объекта: - Бизнес-центр класса А- Шаговая доступность от станции метро Площадь Ильича, Римская (3 минуты пешком)- Этаж: 7- Помещение...
    • 7/26 эт.
    1 801 250 Р
    Агент
    +7 (938) Показать номер
    Посмотреть контакты

    Не нашли подходящего объявления?

    Оставьте заявку, и наши риэлторы подберут псн в районе Москвы

    (0)