Россия, Москва, Большая Садовая ул., вл6-8
550 000 Р 7 120 $ или 6 010

Информация об помещении

1
Этаж

Состояние и оснащение

Количество этажей
2
Развернуть
Агент
+7 (938) 656-74-88
Начать чат с агентом

Помещение свободного назначения в Москва Большая Садовая ул., вл6-8 ...

636185-s . Предлагаем помещение свободного назначения формата street-retail, площадью 27.7 кв. м, расположенное на первом этаже 2-этажного административного здания. Преимущества объекта:-первая линия Садового кольца;-шаговая доступность от станции метро Маяковская (4 минуты пешком);-удобная транспортная доступность: 2.4 км до Ленинградского проспекта, 4 км до Звенигородского шоссе, 5 км до ТТК, 5.5 км до Хорошёвского шоссе;-плотный жилой массив;-развитая инфраструктура района;-высокий автомобильный и пешеходный трафик;-отлично просматривается, находится в легком доступе для потенциальных клиентов;-гибкая планировка, позволяющая адаптировать пространство под различные нужды;-мокрая точка;-возможность установки вывески и вытяжки для общепита;-витринное остекление;-место для размещения вывески;-наземная парковка;-рядом остановка общественного транспорта.Технические параметры объекта:-отдельный вход с фасада.-высота потолков: 3 м.Свяжитесь с нами для получения дополнительной информации

Читать полностью
    Позвонить Написать
    550 000 Р7 120 $ или 6 010
    Агент
    +7 (938) 656-74-88
    Начать чат с агентом
    Похожие предложения
    Помещение свободного назначения в Москва Большая Садовая ул., вл6-8 ... - Фото 1
    Помещение свободного назначения в Москва Большая Садовая ул., вл6-8 ... - Фото 2
    1084980-s . Предлагаем торговое помещение площадью 27,2 кв. м., расположенное на первом этаже административного здания. Преимущества объекта:-первая линия Садового кольца;-пешая доступность от станции метро Маяковская (5 минут пешком);-интенсивный пешеходный...
    • 1/2 эт.
    550 000 Р
    Агент
    +7 (938) Показать номер
    Посмотреть контакты
    Помещение свободного назначения в Москва Большая Садовая ул., вл6-8 ... - Фото 1
    Помещение свободного назначения в Москва Большая Садовая ул., вл6-8 ... - Фото 2
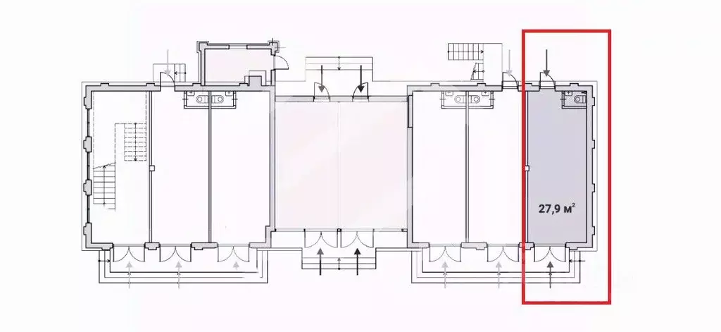
    724437-s . Предлагаем помещение свободного назначения формата street-retail, площадью 27.9 кв. м, расположенное на первом этаже 2-этажного административного здания. Преимущества объекта:-первая линия Садового кольца;-шаговая доступность от станции метро...
    • 1/2 эт.
    560 000 Р
    Агент
    +7 (938) Показать номер
    Посмотреть контакты
    Помещение свободного назначения в Москва Большая Садовая ул., вл6-8 ... - Фото 1
    Помещение свободного назначения в Москва Большая Садовая ул., вл6-8 ... - Фото 2
    636185-s . Предлагаем помещение свободного назначения формата street-retail, площадью 27.7 кв. м, расположенное на первом этаже 2-этажного административного здания. Преимущества объекта:-первая линия Садового кольца;-шаговая доступность от станции метро...
    • 1/2 эт.
    550 000 Р
    Агент
    +7 (938) Показать номер
    Посмотреть контакты
    Помещение свободного назначения в Москва Большая Спасская ул., 8С1А ... - Фото 1
    Помещение свободного назначения в Москва Большая Спасская ул., 8С1А ... - Фото 2
    От собственника и без комиссии.Сдаётся в аренду помещение свободного назначения (м. Проспект Мира).Двухуровневое помещение: 1 этаж - 113 м, подвал - 117 м.3 отдельных входа и витринные окна.Пешеходный и автомобильный трафик.Планировка - зальная. Приточно-вытяжная...
    • 1/1 эт.
    550 000 Р
    Агент
    +7 (989) Показать номер
    Посмотреть контакты
    Помещение свободного назначения в Москва Бауманская ул., 33/2С3 (60 м) - Фото 1
    Помещение свободного назначения в Москва Бауманская ул., 33/2С3 (60 м) - Фото 2
    1112597-s . Предлагаем торговое помещение формата Street Retail, площадью 59,8 кв. м., расположенное на первом этаже жилого дома. Преимущества объекта: -в 65 метрах станция метро Бауманская;-центр плотного жилого массива, премиальная локация;-сложившееся...
    • 1/4 эт.
    550 000 Р
    Агент
    +7 (938) Показать номер
    Посмотреть контакты

    Не нашли подходящего объявления?

    Оставьте заявку, и наши риэлторы подберут псн в районе Москвы

    (0)