145 000 Р 1 880 $ или 1 590

Информация об помещении

1
Этаж

Состояние и оснащение

Количество этажей
1
Развернуть
Агент
+7 (986) 253-98-35
Начать чат с агентом

Помещение свободного назначения в Москва Луганская ул., 10 (50 м)

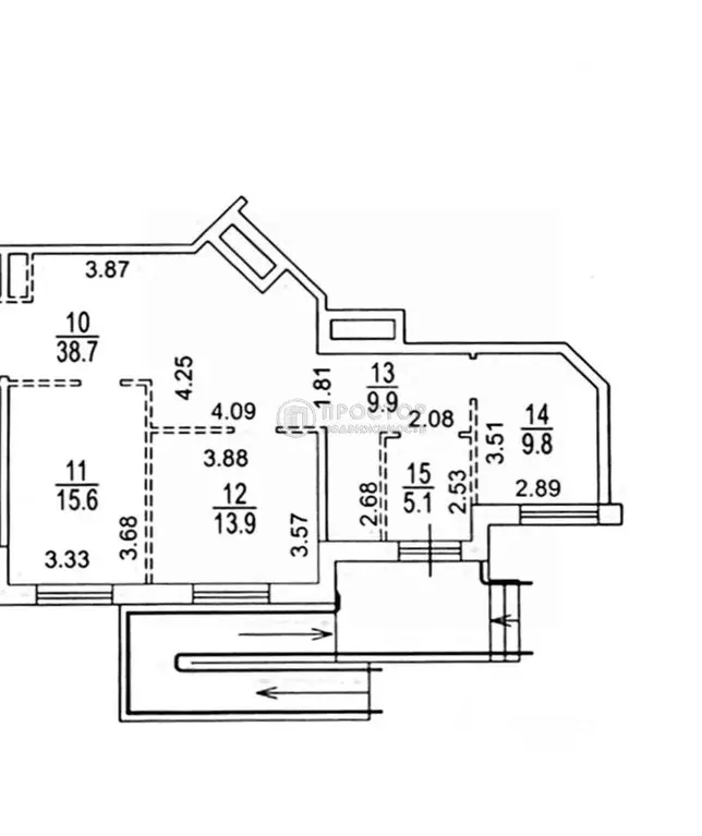
Арт.Метро Царицыно — до 1 минуты пешкомСамолёт Плюс предлагает в аренду помещение свободного назначения на первой линии в густонаселённом жилом районе с очень высоким пешеходным и автомобильным трафиком.Основные характеристикиЭтаж: 1Высота потолков: 4 мОтделка: чистоваяЭлектрическая мощность: 120кВтВход: отдельный с улицы (всего 4 входа)Планировка: возможна трансформация (некапитальные перегородки)Санузел: отдельныйКоммуникации: отопление, вентиляция, электричествоМесто под вывескуКруглосуточный доступ (24/7)Условия арендыТип аренды: прямаяМинимальный срок: 11 месяцевАрендные каникулы: обсуждаютсяКоммунальные платежи: включеныАренда части помещения: возможнаСделка: прозрачнаяСопровождение: на всех этапах сделкиЛокация и окружение50 метров до метро ЦарицыноГустонаселённый жилой массивАктивное торговое окружение: Вкусно — и точка Бристоль Четыре лапы АптекаСалон красотыКафеТЦ Царицыно , бани и другие точки притяженияВ районе отсутствуют магазины автозапчастей — перспективная ниша без конкуренцииПарковкаУличная, бесплатнаяОколо 40 машиноместУдобный заезд, подходит для грузового транспортаНазначениеПомещение отлично подойдёт под:ритейлмагазиншоурумавтозапчастиаптекуПВЗкафесалон красотыофис продаж и другие виды бизнеса.

Читать полностью
    Позвонить Написать
    145 000 Р1 880 $ или 1 590
    Агент
    +7 (986) 253-98-35
    Начать чат с агентом
    Похожие предложения
    Помещение свободного назначения в Москва ул. Корабельная, 1 (35 м) - Фото 1
    Помещение свободного назначения в Москва ул. Корабельная, 1 (35 м) - Фото 2
    Сдам коммерческое помещение в ЖК Ривер Парк 35 кв.м. под любой вид деятельности -Отдельная входная группа с набережной. Трафик -Отличная локация, 5 минут пешком от м. Hагатинский затoн. Новый ЖК Бизнес-класса. Высокая плотность населения, только в этом...
    • 1/12 эт.
    149 000 Р
    Агент
    +7 (984) Показать номер
    Посмотреть контакты
    Помещение свободного назначения в Москва ул. Наметкина, 15 (80 м) - Фото 1
    Помещение свободного назначения в Москва ул. Наметкина, 15 (80 м) - Фото 2
    ЛотПредложение от Собственника Сдается помещение свободного назначения площадью 80 кв.м. на 1 этаже жилого дома с отдельным входом, идеально под офис, детский центр (напротив дет площадка), интернет магазин, услуги и тд, поделено на холл, 3 кабинета,...
    • 1/17 эт.
    150 000 Р
    Агент
    +7 (986) Показать номер
    Посмотреть контакты
    Помещение свободного назначения в Москва пер. Любучанский, 1к4 (59 м) - Фото 1
    Помещение свободного назначения в Москва пер. Любучанский, 1к4 (59 м) - Фото 2
    Аренда помещения свободного назначения в ЖК Остафьево Адрес: Любучанский пер., д.1, к.4 (въезд в ЖК, первая линия)Детский сад уже работает Проходной трафик:Расположение на въезде в ЖК — все жители и гости проходят около вашего бизнеса.Рядом: остановка...
    • 1/14 эт.
    150 000 Р
    Агент
    +7 (915) Показать номер
    Посмотреть контакты
    Помещение свободного назначения в Москва ул. Лобанова, 2/21 (120 м) - Фото 1
    Помещение свободного назначения в Москва ул. Лобанова, 2/21 (120 м) - Фото 2
    ==ЛОТ 223989 == ОТ СОБСТВЕННИКА, БЕЗ КОМИССИИ. Предлагаю в аренду коммерческое помещение свободного назначения на улице Лобанова, 2/21, в Москве. Первая линия домов. Помещение располагается в подвале жилого дома и находится всего в 10 минутах пешком от...
    • -1/10 эт.
    150 000 Р
    Агент
    +7 (923) Показать номер
    Посмотреть контакты
    Помещение свободного назначения в Москва Рублевское ш., 70к5 (85 м) - Фото 1
    Помещение свободного назначения в Москва Рублевское ш., 70к5 (85 м) - Фото 2
    Код объекта: 1633330.Сдается в аренду помещение на 1 этаже современного ЖК Крылатский. Численность ЖК более 3000человек. Аренда от собственника. Отличная проходимость.Помещение свободного назначения, свободно, ремонт в бетоне - сделана стяжка.В помещение...
    • 1/24 эт.
    155 000 Р
    Агент
    +7 (985) Показать номер
    Посмотреть контакты

    Не нашли подходящего объявления?

    Оставьте заявку, и наши риэлторы подберут псн в районе Москвы

    (0)