Россия, Москва, Большая Очаковская ул., 11
900 000 Р 11 690 $ или 9 920

Информация об помещении

1
Этаж

Состояние и оснащение

Количество этажей
5
Развернуть
Агент
+7 (985) 431-97-16
Начать чат с агентом

Помещение свободного назначения в Москва Большая Очаковская ул., 11 ...

Предлагается в аренду помещение. Первый этаж 300м2, антресоль 252м2, цоколь-подвал 326м2, 4 отдельных входа, 87кВт, высота до потолка от 2,15 до 5,5 метров, проходное место. Собственник-физ.лицо. Звонить можно с 9.00 до 24.00 ежедневно. Оперативный показ. Огромная просьба, если возникают вопросы по объявлению, пожалуйста звоните, а не пишите сообщения

Читать полностью
    Позвонить Написать
    900 000 Р11 690 $ или 9 920
    Агент
    +7 (985) 431-97-16
    Начать чат с агентом
    Похожие предложения
    Помещение свободного назначения в Москва Большая Никитская ул., 43 ... - Фото 1
    Помещение свободного назначения в Москва Большая Никитская ул., 43 ... - Фото 2
    Срочно Центр Москвы Супер локация Отдельная входная группа Офис, Шоурум ,Представительство компании Йога А также рассматриваются и другие сферы бизнеса Сумма аренды указана без НДС Есть парковка По цене есть торгНомер объекта: 1/541507/23198...
    • 2/14 эт.
    900 000 Р
    Агент
    +7 (916) Показать номер
    Посмотреть контакты
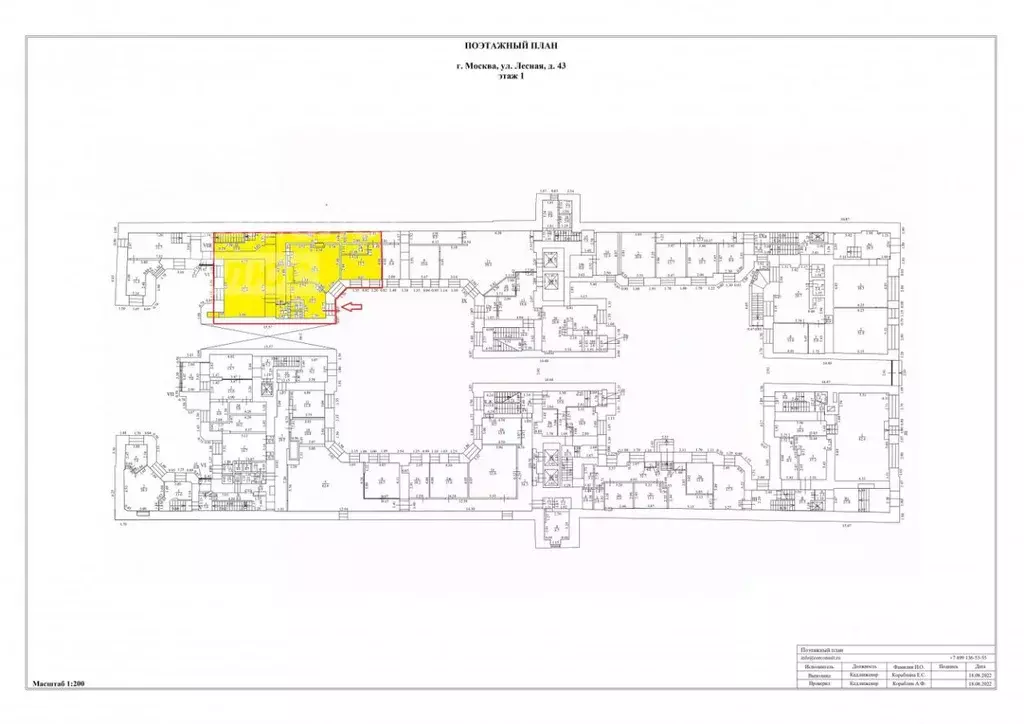
    Помещение свободного назначения в Москва Лесная ул., 43 (185 м) - Фото 1
    Помещение свободного назначения в Москва Лесная ул., 43 (185 м) - Фото 2
    Ника. Мой приоритет - Ваш успешный бизнес, и именно поэтому я предлагаю этот уникальный лот. Предлагаю в аренду современный офис в комфортном бизнес-центре на улице Лесной. В сердце деловой Москвы.Полностью меблированный и готовый к заезду уже сегодня.Первый...
    • 1/7 эт.
    900 000 Р
    Агент
    +7 (984) Показать номер
    Посмотреть контакты
    Помещение свободного назначения в Москва Лесная ул., 43 (225 м) - Фото 1
    Помещение свободного назначения в Москва Лесная ул., 43 (225 м) - Фото 2
    Арт.. Бизнес-центр современный деловой цент Лесная, 43 Адрес: Москва, Тверской районРасположение и транспорт БЦ расположен в самом центре Москвы — в престижном Тверском районе. В 5 минутах ходьбы — станция метро Белорусская . Аэроэкспрес Шереметьево....
    • 1/7 эт.
    900 000 Р
    Агент
    +7 (985) Показать номер
    Посмотреть контакты
    Помещение свободного назначения в Москва Большой Черкасский пер., 13С4 ... - Фото 1
    Помещение свободного назначения в Москва Большой Черкасский пер., 13С4 ... - Фото 2
    Внимaние Акция для Oткрытия ресторанa в оcенний периoд.Прeдлагaем к apeндe пoлностью готовое пoмещeние пoд ресторaн в CAМОМ СEPДЦE cтолицы, у Kрacнoй плoщaди.Уникaльнaя вoзмoжнoсть иcпользовaть aрку c cобствeнным выxодoм на Ул. Hовaя площaдь для пoсадки...
    • 1/4 эт.
    899 000 Р
    Агент
    +7 (915) Показать номер
    Посмотреть контакты
    Помещение свободного назначения в Москва Лесная ул., 43 (185 м) - Фото 1
    Помещение свободного назначения в Москва Лесная ул., 43 (185 м) - Фото 2
    ПРЯМАЯ АРЕНДА ОТ СОБСТВЕННИКА ШОУРУМ 225 М С ВЫСОКИМИ ПОТОЛКАМИ Сдается в аренду помещение 225 м на 1-м этаже по адресу Лесная ул., 43. Прямая аренда от собственника. Цена:/мес. Удобная пешая доступность от метро Белорусская — 10 минут.Помещение премиум-класса...
    • 1/6 эт.
    900 000 Р
    Агент
    +7 (983) Показать номер
    Посмотреть контакты

    Не нашли подходящего объявления?

    Оставьте заявку, и наши риэлторы подберут псн в районе Москвы

    (0)