6 000 000 Р 75 880 $ или 65 650

Информация об помещении

1
Этаж

Состояние и оснащение

Количество этажей
3
Развернуть
Агент
+7 (985) 183-08-07
Начать чат с агентом

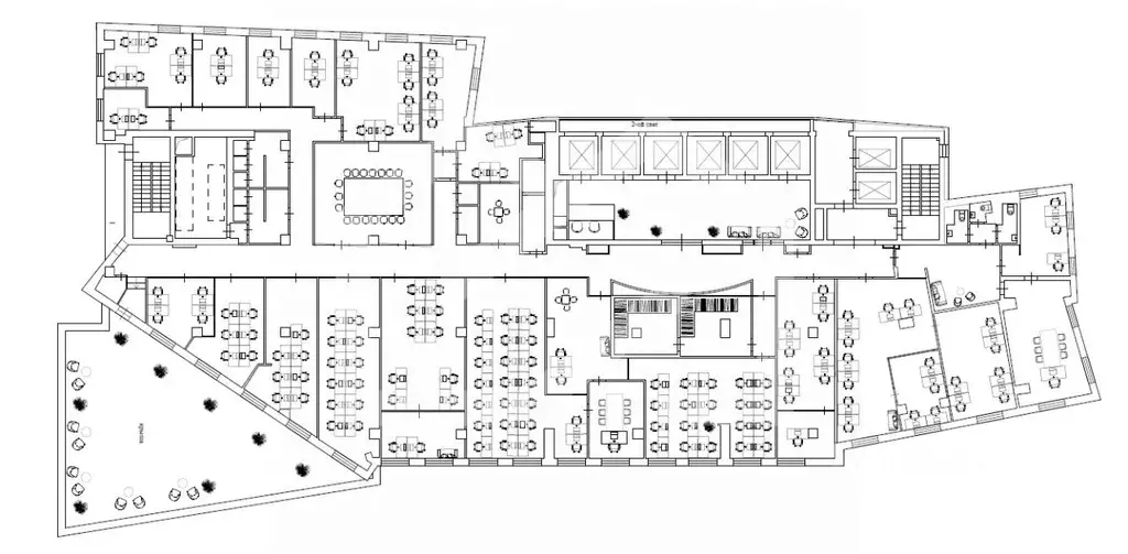
Помещение свободного назначения в Москва просп. Вернадского, 14Б (921 ...

Арт.. Тц . здание целиком. Возможно под субаренду. под много чего, банк. ресторан, общепит, торговый дом. и тд. возможно сдать отдельно 1й эт и 2-3 и эксплутир кровля. Высоченный трафик . или отделько 1й этаж. в трехэтажном здании. (ТЦ) Располагается в 1-й минуте от метро Пр-т Вернадского и 200 метрах от станции БКЛ. - Общая площадь 920 м2 - Этажность 3 + 1 (эксплуатируемая кровля.) - Лифт с 1 этажа до эксплуатируемой кровли - Здание оснащено электрической мощностью 450 килловат - Высота потолков от 4,5 метров - Доступно размещение вывески на фасаде - Отдельные входные группы Рассматривается сдача как по блокам, так и здание целиком. 2, 3 этажи, а также эксплуатируемая кровля подойдут для размещения: ресторана, спортзала, МФЦ, коворкинга, банка, медицинского центра, салона красоты.

Читать полностью
    Позвонить Написать
    6 000 000 Р75 880 $ или 65 650
    Агент
    +7 (985) 183-08-07
    Начать чат с агентом
    Похожие предложения
    Помещение свободного назначения в Москва Нахимовский просп., 51 (1478 ... - Фото 1
    Помещение свободного назначения в Москва Нахимовский просп., 51 (1478 ... - Фото 2
    745908. Предлагаем в аренду офисное помещение площадью 1 477 кв. м, расположенное в бизнес-центре Trend Line Преимущества объекта:- Бизнес-центр класса A- Шаговая доступность от станции метро Профсоюзная (3 минуты пешком)- Этаж: 3- Помещение предлагается...
    • 3/9 эт.
    6 010 500 Р
    Агент
    +7 (938) Показать номер
    Посмотреть контакты
    Помещение свободного назначения в Москва просп. Лихачева, 8 (1111 м) - Фото 1
    Помещение свободного назначения в Москва просп. Лихачева, 8 (1111 м) - Фото 2
    Уважаемый Арендатор, предлагаем Вам арендовать помещение свободного назначения 1111.0 м на 1 этаже на выгодных условиях.Приточно-вытяжная вентиляция. Центральное кондиционирование. Пожарная сигнализация. Электрическая мощность: 300кВт. Интернет, телефония....
    • 1/15 эт.
    6 099 390 Р
    Агент
    +7 (985) Показать номер
    Посмотреть контакты
    Помещение свободного назначения в Москва ул. Сущевский Вал, 18 (1300 ... - Фото 1
    Помещение свободного назначения в Москва ул. Сущевский Вал, 18 (1300 ... - Фото 2
    1070368. Предлагаем в аренду офисное помещение площадью 1 300 кв. м, расположенное в бизнес-центре Novo Преимущества объекта:- Бизнес-центр класса А- Шаговая доступность от станции метро Марьина Роща (11 минут пешком)- Этаж: 13, целиком- Помещение предлагается...
    • 13/22 эт.
    6 066 667 Р
    Агент
    +7 (938) Показать номер
    Посмотреть контакты
    Помещение свободного назначения в Москва ул. Академика Королева, 12 ... - Фото 1
    Помещение свободного назначения в Москва ул. Академика Королева, 12 ... - Фото 2
    1097081. Предлагаем в аренду офисное помещение площадью 2008.3 кв. м, расположенное в телецентре Останкино Преимущества объекта:- Шаговая доступность от станции метро Бутырская, Фонвизинская (17 минут пешком)- Этаж: 8- Помещение предлагается с отделкой-...
    • 8/13 эт.
    5 921 138 Р
    Агент
    +7 (938) Показать номер
    Посмотреть контакты
    Помещение свободного назначения в Москва ул. Академика Королева, 12 ... - Фото 1
    Помещение свободного назначения в Москва ул. Академика Королева, 12 ... - Фото 2
    1097081. Предлагаем в аренду офисное помещение площадью 2008.3 кв. м, расположенное в телецентре Останкино Преимущества объекта:- Шаговая доступность от станции метро Бутырская, Фонвизинская (17 минут пешком)- Этаж: 8- Помещение предлагается с отделкой-...
    • 8/13 эт.
    5 921 138 Р
    Агент
    +7 (938) Показать номер
    Посмотреть контакты

    Не нашли подходящего объявления?

    Оставьте заявку, и наши риэлторы подберут псн в районе Москвы

    (0)