2 570 832 Р 34 170 $ или 28 970

Информация об помещении

1
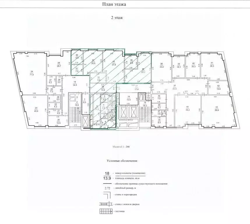
Этаж

Состояние и оснащение

Количество этажей
2
Развернуть
Агент
+7 (933) 786-94-18
Начать чат с агентом

Помещение свободного назначения в Москва ул. Золоторожский Вал, 11С1 ...

РАБОТАЕМ С АГЕНТАМИ И ПЛАТИМ РЕНТАВИК— участник ассоциации агентств КОКОН. Исторический особняк 1883 года постройки в зоне активной жилой и офисной застройки, в 1 минуте пешком от ТПУ Серп и Молот. В 2025 году объект прошёл реставрацию с сохранением архитектурного облика и заменой всех инженерных систем.Налоговая: 22. Лифты: Нет. Вентиляция: Приточно-вытяжная. Кондиционирование: Сплит-системы. Безопасность: Круглосуточный доступ, Система пожаротушений, Видеонаблюдение. Парковка: Наземная. Описание помещения: Помещение расположено на двух этажах. 1 этаж - 166,1 м2.2 этаж - 306,3 м2. Высота потолков - 1 этаж - 3,77 м и 2 этаж - 3,7м.Возможна установка летней террасыПланировка: открытая. Под чистовую отделку. Подходит под: медцентр, банк, учебные цели, спорт. Высокие потолки. Высота потолка: 3.7м. Тип налогообложения: С НДС. Лот

Читать полностью
    Позвонить Написать
    2 570 832 Р34 170 $ или 28 970
    Агент
    +7 (933) 786-94-18
    Начать чат с агентом
    Похожие предложения
    Помещение свободного назначения в Москва ул. Золоторожский Вал, 11С1 ... - Фото 1
    Помещение свободного назначения в Москва ул. Золоторожский Вал, 11С1 ... - Фото 2
    1098711. Предлагаем отдельно стоящее историческое здание, площадью 500 кв. м. Преимущества объекта:-первая линия ул. Золоторожский Вал;-шаговая доступность от станций метро Площадь Ильича , Римская и остановок МЦД-2 и МЦД-4, входящих в ТПУ Серп и...
    • 2/2 эт.
    2 500 000 Р
    Агент
    +7 (938) Показать номер
    Посмотреть контакты
    Помещение свободного назначения в Москва ул. Золоторожский Вал, 11С1 ... - Фото 1
    Помещение свободного назначения в Москва ул. Золоторожский Вал, 11С1 ... - Фото 2
    1098711. Предлагаем отдельно стоящее историческое здание, площадью 500 кв. м. Преимущества объекта:-первая линия ул. Золоторожский Вал;-шаговая доступность от станций метро Площадь Ильича , Римская и остановок МЦД-2 и МЦД-4, входящих в ТПУ Серп и...
    • 2/2 эт.
    2 500 000 Р
    Агент
    +7 (938) Показать номер
    Посмотреть контакты
    Помещение свободного назначения в Москва Ленинский просп., 15А (437 м) - Фото 1
    Помещение свободного назначения в Москва Ленинский просп., 15А (437 м) - Фото 2
    1138900. Предлагаем в аренду офисное помещение площадью 437,2 кв. м, расположенное в бизнес-центре Central Park Tower Преимущества объекта: - Бизнес-центр класса А- Шаговая доступность от станции метро Шаболовская (6 минут пешком)- Этаж: 4- Помещение...
    • 4/22 эт.
    2 666 920 Р
    Агент
    +7 (938) Показать номер
    Посмотреть контакты
    Помещение свободного назначения в Москва Варшавское ш., 9С1Б (719 м) - Фото 1
    Помещение свободного назначения в Москва Варшавское ш., 9С1Б (719 м) - Фото 2
    1126427. Предлагаем в аренду офисное помещение площадью 718,93 кв. м, расположенное в бизнес-центре Даниловская Мануфактура, корпус Кноп Преимущества объекта:- Бизнес-центр класса В+- Шаговая доступность от станции метро Тульская (10 минут пешком)- Этаж:...
    • 3/5 эт.
    2 631 284 Р
    Агент
    +7 (938) Показать номер
    Посмотреть контакты
    Помещение свободного назначения в Москва Ленинградское ш., 39с2 (473 ... - Фото 1
    Помещение свободного назначения в Москва Ленинградское ш., 39с2 (473 ... - Фото 2
    1117319. Предлагаем в аренду офисное помещение площадью 472,5 кв. м, расположенное в бизнес-центре Marina Business Park Преимущества объекта: - Бизнес-центр класса В+- Шаговая доступность от станции метро Водный стадион (9 минут пешком)- Этаж: 2- Помещение...
    • 2/5 эт.
    2 600 000 Р
    Агент
    +7 (938) Показать номер
    Посмотреть контакты

    Не нашли подходящего объявления?

    Оставьте заявку, и наши риэлторы подберут псн в районе Москвы

    (0)