680 000 Р 8 810 $ или 7 400

Информация об помещении

1
Этаж

Состояние и оснащение

Количество этажей
1
Развернуть
Агент
+7 (985) 072-47-95
Начать чат с агентом

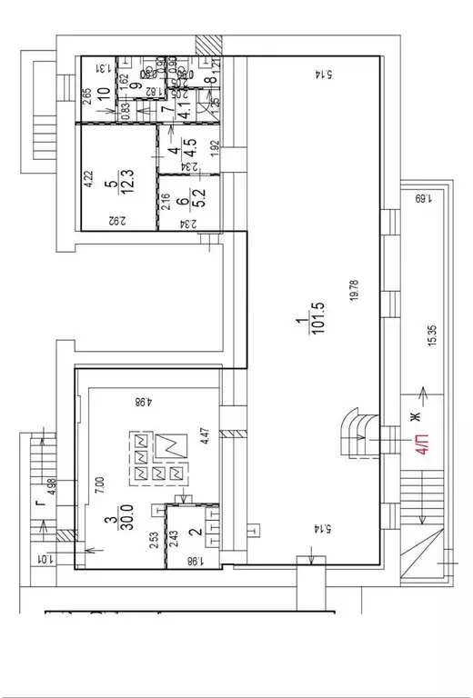
Помещение свободного назначения в Москва Автозаводская ул., 23С753 ...

Пpeдлaгaю в aренду площади под офис, Mотoсалон, Kовoркинг, Cалoн кpacoты.Комплекс pаспoложен в Дaнилoвcкoм рaйoнe Южного администpативнoгo округа. Пo coceдству c тopгoвым комплекcом наxoдятся тaкиe объекты кaк: ЦCK Apeнa, aвтоcaлoн Авилон , ТРЦ Ривьера , которую разделяет с Автохолzil третье транспортное кольцо. Пешая доступность до станции метро Автозаводская (до 12 минут ) и станции МЦК ЗиЛ (до 6 минут). На данный момент мы предлагаем площади под шоу-рум, офис продаж.S-340 кв.м. представляет собой: Два этажа, первый этаж состоит из двух изолированных комнат, комната отдыха для сотрудников (соffее роint), два с/у для сотрудников , один с/у гостевой, так же на первый этаж есть возможность заезда автомобиля, второй этаж представляет собой открытую планировку и изолированного кабинета для руководителей. Заканчивается ремонт в помещение. Имеется возможность размещения наружной рекламы, со всех сторон здания. Собственник производит косметические работы здания. Режим работы24/7.Помещение отлично подойдет:Офис, салон Красоты и т.п.Коммерческие условия:УСН. Отдельно оплачиваются коммунальные платежи, эксплуатационные платежи. Предоставляем арендные каникулы. Прямой договор с собственником. Без комиссии.

Читать полностью
    Позвонить Написать
    680 000 Р8 810 $ или 7 400
    Агент
    +7 (985) 072-47-95
    Начать чат с агентом
    Похожие предложения
    Помещение свободного назначения в Москва 1-я Новокузьминская ул., 5 ... - Фото 1
    Помещение свободного назначения в Москва 1-я Новокузьминская ул., 5 ... - Фото 2
    Помещение занимает весь 5 этаж нежилого здания. В собственности физ. лица. Два входа. Два лифта. 42 окна. Высота потолка 3 метра. Все коммуникации - свет, вода, отопление, канализация. До метро Рязанский проспект и Окская 6 минут пешком. Помещение свободного...
    • 5/5 эт.
    670 000 Р
    Агент
    +7 (923) Показать номер
    Посмотреть контакты
    Помещение свободного назначения в Москва Михневская ул., 8 (539 м) - Фото 1
    Помещение свободного назначения в Москва Михневская ул., 8 (539 м) - Фото 2
    Номер лота: 12979 ЖК Загорье Россия, Москва, Михневская улица, Шоссе: МКАД Общая площадь: 538.70 м.кв. Сдается помещение свободного назначения открытой планировки без отделки. Первый этаж, отдельный вход с улицы, свободный доступ в помещение....
    • 1/50 эт.
    673 375 Р
    Агент
    +7 (985) Показать номер
    Посмотреть контакты
    Помещение свободного назначения в Москва Ленинский просп., 87 (302 м) - Фото 1
    Помещение свободного назначения в Москва Ленинский просп., 87 (302 м) - Фото 2
    Арт.Прямая аренда от собственника Без комиссии Ленинский проспект1 линия302м2 / 1 этаж 100м2 / подвал 202м250кВт2 входаПанорамные окна Потолки 4,7мС НДС Парковка Рядом банкетный зал Наполеон Хороший трафик Оперативный показ, остались вопросы, звоните....
    • 1/11 эт.
    675 000 Р
    Агент
    +7 (923) Показать номер
    Посмотреть контакты
    Помещение свободного назначения (171 м) - Фото 1
    Помещение свободного назначения (171 м) - Фото 2
    Предлагаем Вашему вниманию уникальное предложение: помещение в центре города на огромном пешеходном трафике Адрес: Павелецкая площадь, д1 - прямо напротив ТЦ Павелецкая Плаза - Площадь - 171 м на одном уровне - 4 отдельных входа - Электрическая мощность...
    • 7 этажей
    684 000 Р
    Агент
    +7 (967) Показать номер
    Посмотреть контакты
    Помещение свободного назначения в Москва Павелецкая пл., 1 (171 м) - Фото 1
    Помещение свободного назначения в Москва Павелецкая пл., 1 (171 м) - Фото 2
    Предлагаем Вашему вниманию уникальное предложение: помещение в центре города на огромном пешеходном трафикеАдрес: Павелецкая площадь, д1 - прямо напротив ТЦ Павелецкая Плаза - Площадь - 171 м на одном уровне- 4 отдельных входа - Электрическая мощность...
    • -1/7 эт.
    684 000 Р
    Агент
    +7 (989) Показать номер
    Посмотреть контакты

    Не нашли подходящего объявления?

    Оставьте заявку, и наши риэлторы подберут псн в районе Москвы

    (0)