320 000 Р 4 120 $ или 3 540

Информация об помещении

1
Этаж

Состояние и оснащение

Количество этажей
7
Развернуть
Агент
+7 (916) 442-56-83
Начать чат с агентом

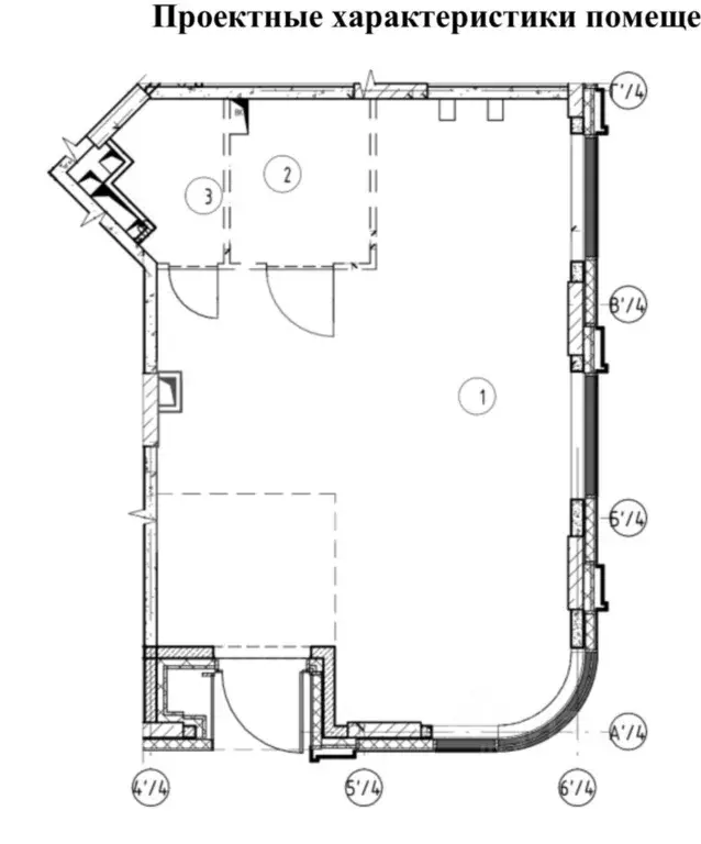
Помещение свободного назначения в Москва Костянский пер., 12 (130 м)

Сдается в аренду от собственника в историческом центре района Красносельский ЦАО г. Москвы Костянский переулок дом 12, помещение свободного назначения площадью 130 кв.м., на 1 этаже 7 этажного кирпичного жилого дома, первая линия домов, идеально подходит под представительский офис, учебный центр, офис-продаж, салон красоты, медицинский центр, салон тату, интернет магазин, туристическое агентство, нотариальную или адвокатскую контору, стоматологию. Помещение имеет 100 готовность к эксплуатации, хороший ремонт, окна ПВХ - 8 шт. с наружными роль ставнями, потолки 3,2 м., пол плитка, подвесные потолки, большой санузел, помещение имеет вход через подъезд и два отдельных входа красиво оформленных со двора, что позволяет разделить помещение на две части. Все коммуникации центральные, телефонная линия МГТС, интернет, Wi-Fi, наружное видеонаблюдение, хороший автомобильный и пешеходный трафик, в шаговой доступности метро Сретенский бульвар, Тургеневская, Сухаревская, Чистые Пруды, Трубная, Цветной бульвар, развитая инфраструктура района делают по-настоящему комфортным местом для ведения успешного бизнеса.

Читать полностью
    Позвонить Написать
    320 000 Р4 120 $ или 3 540
    Агент
    +7 (916) 442-56-83
    Начать чат с агентом
    Похожие предложения
    Помещение свободного назначения в Москва ул. Михайлова, 31А (126 м) - Фото 1
    Помещение свободного назначения в Москва ул. Михайлова, 31А (126 м) - Фото 2
    Готовое помещение для бизнеса в современном ЖК рядом с метро Старт без вложений в ремонт, потолки 3,5 метра, отдельный вход, 24/7 доступ, возможность изменения планировки под ваши задачи. Собственник. Продам готовое помещение от 6 до 350 м на 1 и 2-м...
    • 2/19 эт.
    315 300 Р
    Агент
    +7 (986) Показать номер
    Посмотреть контакты
    Помещение свободного назначения в Москва Бауманская ул., 33/2С3 (15 м) - Фото 1
    Помещение свободного назначения в Москва Бауманская ул., 33/2С3 (15 м) - Фото 2
    1112582. Предлагаем торговое помещение, площадью 15,4 кв. м., расположенное на первом этаже жилого дома. Преимущества объекта: -в 65 метрах станция метро Бауманская;-центр плотного жилого массива, премиальная локация;-сложившееся торговое окружение ЦАО;-сверхинтенсивный...
    • 1/4 эт.
    330 000 Р
    Агент
    +7 (938) Показать номер
    Посмотреть контакты
    Помещение свободного назначения в Москва наб. Марка Шагала, 15к2 (66 ... - Фото 1
    Помещение свободного назначения в Москва наб. Марка Шагала, 15к2 (66 ... - Фото 2
    925820. Предлагаем помещение свободного назначения, площадью 66 кв. м., расположенное на первом этаже жилого дома в ЖК Shagal . Корпус 4. Без комиссии для арендатора.Преимущества объекта:-первая линия набережной Марка Шагала;-ЖК состоит из 27 корпусов...
    • 1/15 эт.
    330 000 Р
    Агент
    +7 (938) Показать номер
    Посмотреть контакты
    Помещение свободного назначения в Москва Производственная ул., 17 (73 ... - Фото 1
    Помещение свободного назначения в Москва Производственная ул., 17 (73 ... - Фото 2
    1095139. Предлагаем помещение свободного назначения, площадью 72,8 кв. м, расположенное на первом этаже жилого дома в ЖК Лучи . Корпус 15. Преимущества объекта:-ЖК состоит из 16 корпусов переменной этажности (от 5 до 24 этажей);-шаговая доступность от...
    • 1/24 эт.
    327 600 Р
    Агент
    +7 (938) Показать номер
    Посмотреть контакты
    Помещение свободного назначения в Москва Производственная ул., 17 (72 ... - Фото 1
    Помещение свободного назначения в Москва Производственная ул., 17 (72 ... - Фото 2
    1095138. Предлагаем помещение свободного назначения, площадью 72,4 кв. м, расположенное на первом этаже жилого дома в ЖК Лучи . Корпус 15. Преимущества объекта:-ЖК состоит из 16 корпусов переменной этажности (от 5 до 24 этажей);-шаговая доступность от...
    • 1/24 эт.
    325 800 Р
    Агент
    +7 (938) Показать номер
    Посмотреть контакты

    Не нашли подходящего объявления?

    Оставьте заявку, и наши риэлторы подберут псн в районе Москвы

    (0)