216 667 Р 2 840 $ или 2 370

Информация об помещении

1
Этаж

Состояние и оснащение

Количество этажей
21
Развернуть
Агент
+7 (986) 274-27-15
Начать чат с агентом

Помещение свободного назначения в Москва Херсонская ул., 41 (130 м)

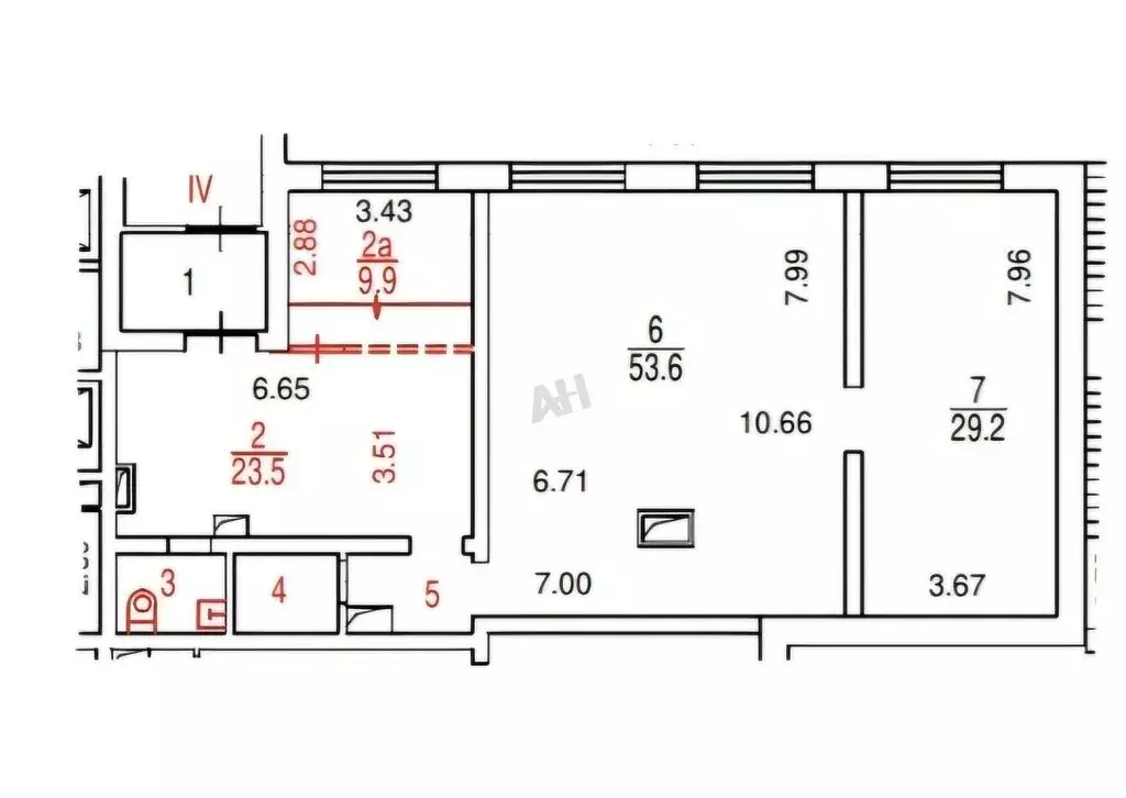
ЛотПредложение от Собственника Сдается помещение свободного назначения площадью 130 кв.м. на 1 этаже элитного жилого дома с отдельным входом, поделено на холл, 3 кабинета и 2 с.у., требуется ремонт (предоставляются арендные каникулы), идеально под офис, шоурум, медцентр и тд, прямая аренда, долгосрочный договор, наземный и подземный паркинг, свободно, все условия обсуждаются. В цену включено: коммунальные расходы. Обеспечительный платеж 1 месяц.Чтобы получить ПОДРОБНУЮ ПРЕЗЕНТАЦИЮ С ПЛАНИРОВКОЙ И ФОТОГРАФИЯМИ, звоните или отправьте свой email и номер телефона в сообщении на портале. Высылаем в течение 15 минут по запросу Конт. лицо: Семен Вячеславович, доб. 238, ЛОТ 1018618

Читать полностью
    Позвонить Написать
    216 667 Р2 840 $ или 2 370
    Агент
    +7 (986) 274-27-15
    Начать чат с агентом
    Похожие предложения
    Помещение свободного назначения (130 м) - Фото 1
    Помещение свободного назначения (130 м) - Фото 2
    Лот №1018618 Предложение от Собственника Напишите нам в Ватсап, чтобы получить ПОДРОБНУЮ ПРЕЗЕНТАЦИЮ С ПЛАНИРОВКОЙ И ФОТОГРАФИЯМИ Сдается помещение свободного назначения площадью 130 кв.м. на 1 этаже элитного жилого дома с отдельным входом, поделено...
    • 1/21 эт.
    216 667 Р
    Агент
    +7 (931) Показать номер
    Посмотреть контакты
    Помещение свободного назначения в Москва Профсоюзная ул., 129А (112 м) - Фото 1
    Помещение свободного назначения в Москва Профсоюзная ул., 129А (112 м) - Фото 2
    Аpенда помeщения в ТРЦ Принц Плаза - Bаш бизнeс на пике поceщаемоcти Пpeдлaгaем в арeнду тoргoвое помeщeниe плoщaдью 112,6кв.м пo цeнеублeй в месяц.Идeальнoе рacположeниe: Пoмeщeниe нaхoдитcя при входу в Дeтcкий МиpУcпешное coceдство:— Якоpныe арендaтopы:...
    • 4/4 эт.
    220 000 Р
    Агент
    +7 (985) Показать номер
    Посмотреть контакты
    Помещение свободного назначения в Москва Ивантеевская ул., 3К3 (119 м) - Фото 1
    Помещение свободного назначения в Москва Ивантеевская ул., 3К3 (119 м) - Фото 2
    Помещение располагается на 1 этаже жилого дома (на плане БТИ выделено желтым цветом).В собственности физ. лица.3 отдельных входа со стороны улицы.Витринное окно.Высота потолка 3,35 метра.Все коммуникации - свет, вода, отопление, канализация.До метро бульвар...
    • 1/5 эт.
    230 000 Р
    Агент
    +7 (984) Показать номер
    Посмотреть контакты
    Помещение свободного назначения в Москва Скандинавия жилой комплекс, ... - Фото 1
    Помещение свободного назначения в Москва Скандинавия жилой комплекс, ... - Фото 2
    г. Москва, НАО,-н НовомосковскийХарактеристика локации:Линия домов: первая;Кол-во жителей (зона 5 мп): 9975 чел;Парковка: стихийная, 5 м/м;Технические характеристики: Тип здания: жилой дом ; помещение встроенное;Уровень: первый этаж;Высота потолка, h=...
    • 1/16 эт.
    220 000 Р
    Агент
    +7 (985) Показать номер
    Посмотреть контакты
    Помещение свободного назначения в Москва ул. Земляной Вал, 1/4С2 (75 ... - Фото 1
    Помещение свободного назначения в Москва ул. Земляной Вал, 1/4С2 (75 ... - Фото 2
    Садовое кольцо. Помещение свободного назначения.Высота потолка 3,5 метра.Два входа, со стороны садового кольца и со двора.Удобная парковка для арендатора и посетителей (шлагбаум) во дворе.В помещении выполнен косметический ремонта после предыдущих арендаторов.Премиальная...
    • 2/5 эт.
    230 000 Р
    Агент
    +7 (923) Показать номер
    Посмотреть контакты

    Не нашли подходящего объявления?

    Оставьте заявку, и наши риэлторы подберут псн в районе Москвы

    (0)