1 400 000 Р 17 990 $ или 15 460

Информация об помещении

3
Этаж

Состояние и оснащение

Количество этажей
3
Развернуть
Агент
+7 (916) 828-45-76
Начать чат с агентом

Помещение свободного назначения в Москва Уральская ул., 1А (647 м)

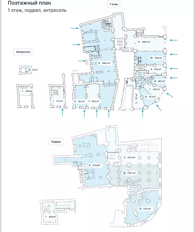
Аренда псн 647,4 м2 (3 этаж), ул. Уральская, 1АПомещение свободного назначения 3 этаж целиком — 647,4 м в ТЦ — первая линия Щёлковского шоссе, 10 метров от метро.Адрес: Москва, ВАО, Гольяново, ул. Уральская, 1АЛокация:— Первая линия Щёлковского шоссе — мощный пешеходный и автомобильный трафик— Метро Щёлковская в 10 метрах — тысячи людей проходят мимо каждый день— 4 км до МКАД — отличная транспортная доступность— Остановка общественного транспорта прямо у ТЦ — пассажиропоток с области и Москвы— 1,7 км до парка Лосиный остров — востребованный район с высокой плотностью населенияХарактеристики помещения:— Отдельный блок на 3 этаже ТЦ— Удобное расположение внутри ТЦ— Возможность размещения рекламы на фасаде— Мокрые точкиФормат аренды: долгосрочный договор, арендные каникулы обсуждаютсяПрямая аренда от собственника. Комиссия брокерам — 100 .Подходит для:— Сетевых и локальных ресторанов, кафе, столовых— Фуд-холла, кулинарии, пекарни— Йога- или пилатес-студии, танцевальной школы— Образовательного центра, языковой школы, детского клуба— Шоурума, магазина, офиса продаж— Салона красоты, косметологии, wellness-центра— Медицинского центра, стоматологии, лаборатории— Любых других форматов торговли и сферы услуг

Читать полностью
    Позвонить Написать
    1 400 000 Р17 990 $ или 15 460
    Агент
    +7 (916) 828-45-76
    Начать чат с агентом
    Похожие предложения
    Помещение свободного назначения в Москва Садовая-Самотечная ул., 15/1 ... - Фото 1
    Помещение свободного назначения в Москва Садовая-Самотечная ул., 15/1 ... - Фото 2
    Отличное помещение в нежилом здании, эл. Мощности по запросу, отдельный вход, 1 эт, антресоль и подвал. Парковка 10 тыс в мес, коммунальные платежи оплачиваются дополнительно. Депозит Каникулы на ремонт обсуждаются. Ранее был ресторан. Депозит. Коммунальные...
    • 1/3 эт.
    1 500 000 Р
    Агент
    +7 (916) Показать номер
    Посмотреть контакты
    Помещение свободного назначения в Москва Мясницкая ул., 8/2 (75 м) - Фото 1
    Помещение свободного назначения в Москва Мясницкая ул., 8/2 (75 м) - Фото 2
    Предлагается в аренду помещение на улице Мясницкая, ЦАО г. Москвы. Продажа и аренда помещения у метро. Шаговая доступность от ст. метро Лубянка, Китай-город — 2 минуты пешком. Также рядом ст. метро Кузнецкий Мост, Тургеневская и Площадь Революции....
    • 1/6 эт.
    1 350 000 Р
    Агент
    +7 (981) Показать номер
    Посмотреть контакты
    Помещение свободного назначения в Москва Старая Басманная ул., 13С1 ... - Фото 1
    Помещение свободного назначения в Москва Старая Басманная ул., 13С1 ... - Фото 2
    Жилой дом расположен с Басманном районе ЦАО г. Москвы. Удобная транспортная доступность. Высокий пешеходный и автомобильный трафик.Налоговая: 01. Лифты: Нет. Вентиляция: Приточно-вытяжная. Кондиционирование: Центральное. Безопасность: Система пожаротушений,...
    • 1/5 эт.
    1 321 667 Р
    Агент
    +7 (933) Показать номер
    Посмотреть контакты
    Помещение свободного назначения в Москва Лесная ул., 20с1 (108 м) - Фото 1
    Помещение свободного назначения в Москва Лесная ул., 20с1 (108 м) - Фото 2
    Культовый деловой квартал ДЕПО в шаговой доступности от метро. Интенсивный пешеходный трафик. Расположен в непосредственной близости от нескольких станций метро. Налоговая: 07. Лифты: Есть. Вентиляция: Приточно-вытяжная. Кондиционирование: Центральное....
    • 1/3 эт.
    1 372 500 Р
    Агент
    +7 (933) Показать номер
    Посмотреть контакты
    Помещение свободного назначения в Москва Садовая-Самотечная ул., 15/1 ... - Фото 1
    Помещение свободного назначения в Москва Садовая-Самотечная ул., 15/1 ... - Фото 2
    Показ в удобное время. С АГЕНТАМИ РАБОТАЕМ. ПЛАТИМ ВОЗНАГРАЖДЕНИЕ.Здание расположено в шаговой доступности от метро. Удобное транспортное расположение. Через дорогу расположился Екатериненский сквер, где можно прогуляться в обеденное время.Налоговая:...
    • 1/3 эт.
    1 500 000 Р
    Агент
    +7 (933) Показать номер
    Посмотреть контакты

    Не нашли подходящего объявления?

    Оставьте заявку, и наши риэлторы подберут псн в районе Москвы

    (0)