1 876 000 Р 24 670 $ или 21 130

Информация об помещении

1
Этаж

Состояние и оснащение

Количество этажей
26
Развернуть
Агент
+7 (938) 656-74-88
Начать чат с агентом

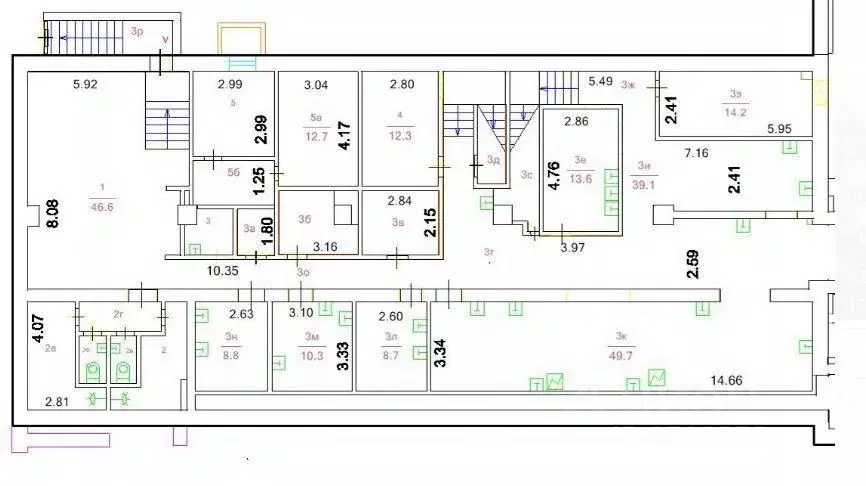
Помещение свободного назначения в Москва ул. Шеногина, 2 (235 м)

945912-s . Предлагаем помещение свободного назначения формата street-retail в ЖК Sydney City , площадью 234.5 кв. м, расположенное на первом этаже 26-этажного жилого дома. Корпус: 5.1 - 5.2. 4 очередь.Преимущества объекта:-ЖК состоит из 10 корпусов переменной этажности (от 20 до 44 этажей), рассчитанных на 3 277 квартир;-первая линия домов;-20 минут пешком от станции МЦК Хорошево ;-удобная транспортная доступность: 1 км до Звенигородского шоссе, 2 км до Хорошёвского шоссе, 2.5 км до ТТК;-плотный жилой массив;-развитая инфраструктура района;-высокий автомобильный и пешеходный трафик;-отлично просматривается, находится в легком доступе для потенциальных клиентов;-гибкая планировка, позволяющая адаптировать пространство под различные нужды;-витринное остекление;-возможность размещения вывески;-наземная парковка.Технические параметры объекта:-4 отдельные входные группы.-электрическая мощность: 46.9 кВт.-высота потолков: 6 м.Свяжитесь с нами для получения дополнительной информации

Читать полностью
    Позвонить Написать
    1 876 000 Р24 670 $ или 21 130
    Агент
    +7 (938) 656-74-88
    Начать чат с агентом
    Похожие предложения
    Помещение свободного назначения в Москва ул. Вильгельма Пика, 16 (540 ... - Фото 1
    Помещение свободного назначения в Москва ул. Вильгельма Пика, 16 (540 ... - Фото 2
    Предложение от собственника. С агентами не работаем Лот: 37568. МФК ПАРК ХУАМИН общей площадью 105 000 кв. м. расположен на земельном участке 6,7 га и включает в себя:Бизнес-центр класса А 21 этаж 24 800 кв. м.:• Офисные помещения с 3-го...
    • 1/5 эт.
    1 996 650 Р
    Агент
    +7 (986) Показать номер
    Посмотреть контакты
    Помещение свободного назначения в Москва Волгоградский просп., 15 (753 ... - Фото 1
    Помещение свободного назначения в Москва Волгоградский просп., 15 (753 ... - Фото 2
    Предложение от собственника. С агентами не работаем Лот: 37495. Помещение свободного назначения формата Street Retail в ЦАО Москвы, отдельно стоящее здание. Расположено на первой линии Волгоградского проспекта. Центральные коммуникации. Возможно...
    • 1/5 эт.
    1 882 438 Р
    Агент
    +7 (986) Показать номер
    Посмотреть контакты
    Помещение свободного назначения в Москва ул. Ивана Франко, 8 (534 м) - Фото 1
    Помещение свободного назначения в Москва ул. Ивана Франко, 8 (534 м) - Фото 2
    958139-o . Предлагаем в аренду офисное помещение площадью 534 кв. м, расположенное в бизнес-центре Kutuzoff Tower Преимущества объекта:- Бизнес-центр класса В+- Шаговая доступность от станции метро Кунцевская (5 минут пешком)- Этаж: 2- Помещение предлагается...
    • 2/20 эт.
    1 922 131 Р
    Агент
    +7 (938) Показать номер
    Посмотреть контакты
    Помещение свободного назначения (1335.6 м) - Фото 1
    Помещение свободного назначения (1335.6 м) - Фото 2
    Аренда здания целиком 1335.6 кв.м по адресу Москва, улица Расковой, 11А.Кол-во этажей в здании - 2.Отделка - с отделкойТип планировки - смешанная.Вход - общий со двораМокрые точки - даСан. узлы - в блокеПарковка на 30 м/м включена в арендую ставкуПолная...
    • 2/2 эт.
    1 836 450 Р
    Агент
    +7 (958) Показать номер
    Посмотреть контакты
    Помещение свободного назначения в Москва ул. Расковой, 11А (1335 м) - Фото 1
    Помещение свободного назначения в Москва ул. Расковой, 11А (1335 м) - Фото 2
    Административное здание в шаговой доступности от метро. Выгодное транспортное положение обеспечивает близость здания к таким крупным транспортным магистралям, как ТТК, Ленинградский проспект и улица Новослободская.Налоговая: 14. Лифты: Нет. Вентиляция:...
    • 1/2 эт.
    1 835 625 Р
    Агент
    +7 (933) Показать номер
    Посмотреть контакты

    Не нашли подходящего объявления?

    Оставьте заявку, и наши риэлторы подберут псн в районе Москвы

    (0)