Россия, Москва, ул. Гренадерская, 9к3
540 000 Р 6 940 $ или 5 960

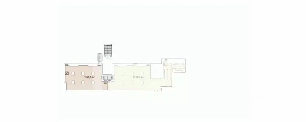
Информация об помещении

1
Этаж

Состояние и оснащение

Количество этажей
15
Развернуть
Агент
+7 (938) 656-74-88
Начать чат с агентом

Помещение свободного назначения в Москва ул. Гренадерская, 9к3 (180 м)

657983-s . Помещение свободного назначения формата Street Retail в ЖК Новые Ватутинки . Первая линия. 15 минут на транспорте от ст. метро Ольховая . Удобный выезд на Калужское шоссе в 1 км. Район плотной жилой застройки. Высокий автомобильный и пешеходный трафик. 1 этаж пристроенной части жилого дома. 4 отдельные входные группы. Зальная планировка. Витринное остекление. Возможность размещения вывески. Зона погрузки/разгрузки. Парковка на территории комплекса. Рядом остановка общественного транспорта.Технические характеристики:Площадь блока: 180 кв.м Электрическая мощность: 30 кВт Высота потолков: 5,7 м

Читать полностью
    Позвонить Написать
    540 000 Р6 940 $ или 5 960
    Агент
    +7 (938) 656-74-88
    Начать чат с агентом
    Похожие предложения
    Помещение свободного назначения в Москва ул. Гиляровского, 65С1 (244 ... - Фото 1
    Помещение свободного назначения в Москва ул. Гиляровского, 65С1 (244 ... - Фото 2
    БЦ ЗАСЕЛЯЕТСЯ ВНОВЬ ПОСЛЕ АРЕНДАТОРА, ТРЕБУЕТСЯ РЕМОНТ Сдаем помещение 243.98 кв.м на пятом этаже в БЦ класса В 5 минут пешком до метро м. Рижская.Арендная ставка на 243.98 м2. за м2 в год с НДС и OPEX. Коммунальные платежи оплачиваются по факту потребления....
    • 5/5 эт.
    548 955 Р
    Агент
    +7 (910) Показать номер
    Посмотреть контакты
    Помещение свободного назначения в Москва ул. Земляной Вал, 25 (139 м) - Фото 1
    Помещение свободного назначения в Москва ул. Земляной Вал, 25 (139 м) - Фото 2
    957916-s . Предлагаем торговое помещение, площадью 138,5 кв. м., расположенное в цоколе жилого дома. Преимущества объекта:-в 3 минутах ходьбы от выхода из метро Курская ;-помещение расположено между ТРЦ Атриум и деловым центром Ситидел ;-сверхинтенсивные...
    • -1/9 эт.
    550 000 Р
    Агент
    +7 (938) Показать номер
    Посмотреть контакты
    Помещение свободного назначения в Москва Ярцевская ул., 27к1 (51 м) - Фото 1
    Помещение свободного назначения в Москва Ярцевская ул., 27к1 (51 м) - Фото 2
    660528-s . Предлагаем помещение свободного назначения формата street-retail в ЖК O2xygen , площадью 51.1 кв. м, расположенное на первом этаже 30-этажного жилого дома. Преимущества объекта:-на пересечении ул. Ярцевская и Ельнинская;-первая линия;-шаговая...
    • 1/30 эт.
    550 000 Р
    Агент
    +7 (938) Показать номер
    Посмотреть контакты
    Помещение свободного назначения в Москва Большая Садовая ул., вл6-8 ... - Фото 1
    Помещение свободного назначения в Москва Большая Садовая ул., вл6-8 ... - Фото 2
    636185-s . Предлагаем помещение свободного назначения формата street-retail, площадью 27.7 кв. м, расположенное на первом этаже 2-этажного административного здания. Преимущества объекта:-первая линия Садового кольца;-шаговая доступность от станции метро...
    • 1/2 эт.
    550 000 Р
    Агент
    +7 (938) Показать номер
    Посмотреть контакты
    Помещение свободного назначения в Москва Большая Садовая ул., вл6-8 ... - Фото 1
    Помещение свободного назначения в Москва Большая Садовая ул., вл6-8 ... - Фото 2
    1084980-s . Предлагаем торговое помещение площадью 27,2 кв. м., расположенное на первом этаже административного здания. Преимущества объекта:-первая линия Садового кольца;-пешая доступность от станции метро Маяковская (5 минут пешком);-интенсивный пешеходный...
    • 1/2 эт.
    550 000 Р
    Агент
    +7 (938) Показать номер
    Посмотреть контакты

    Не нашли подходящего объявления?

    Оставьте заявку, и наши риэлторы подберут псн в районе Москвы

    (0)