Россия, Москва, Большая Сухаревская пл., 14/7
150 000 Р 1 930 $ или 1 660

Информация об помещении

1
Этаж

Состояние и оснащение

Количество этажей
10
Развернуть
Агент
+7 (938) 656-74-88
Начать чат с агентом

Помещение свободного назначения в Москва Большая Сухаревская пл., 14/7 ...

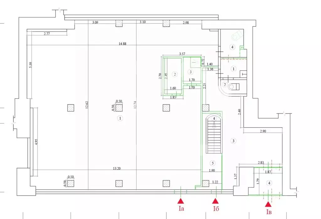
1104462 . Предлагаем помещение свободного назначения формата street-retail, площадью 17 кв. м, расположенное на первом этаже 10-этажного жилого дома. Преимущества объекта:-на пересечении пер. Ананьевский и Садового кольца;-первая линия;-шаговая доступность от станции метро Сухаревская (3 минуты пешком);-удобная транспортная доступность: 340 м до проспекта Мира, 3.4 км до ТТК, 5.4 км до шоссе Энтузиастов;-плотный жилой массив;-развитая инфраструктура района;-торговое соседство составляет популярный ресторан;-высокий автомобильный и пешеходный трафик;-отлично просматривается, находится в легком доступе для потенциальных клиентов;-гибкая планировка, позволяющая адаптировать пространство под различные нужды;-в помещении выполнена отделка;-возможность размещения вывески-наземная парковка;-рядом остановка общественного транспорта.Технические параметры объекта:-отдельный вход с улицы.-электрическая мощность: 20 кВт.-высота потолков: 4 м.Свяжитесь с нами для получения дополнительной информации

Читать полностью
    Позвонить Написать
    150 000 Р1 930 $ или 1 660
    Агент
    +7 (938) 656-74-88
    Начать чат с агентом
    Похожие предложения
    Помещение свободного назначения в Москва ул. Арбат, 4С1 (70 м) - Фото 1
    Помещение свободного назначения в Москва ул. Арбат, 4С1 (70 м) - Фото 2
    Прямая аренда от собственникаПомещение расположено в историческом центре Москвы: ул. Арбат (Старый) д.4. стр.1 (Вторая линия). Общая площадь 70 кв.м., подвальный этаж, отдельный вход. Идеально подходит для склада, ПВЗ.1 большая комната, есть приточно...
    • -1/3 эт.
    140 000 Р
    Агент
    +7 (985) Показать номер
    Посмотреть контакты
    Помещение свободного назначения в Москва Новослободская ул., 71 (32 м) - Фото 1
    Помещение свободного назначения в Москва Новослободская ул., 71 (32 м) - Фото 2
    Первая линия, 1 этаж, хороший трафик, отличные рекламные возможности, ремонт под лофт, последние 2 года сидели цветы. высокие потолки, светлое, уютное помещение. рядом бар и стоматология. хо
    • 1/8 эт.
    150 000 Р
    Агент
    +7 (932) Показать номер
    Посмотреть контакты
    Аренда ПСН, м. Университет, Ленинский пр-кт. - Фото 1
    Аренда ПСН, м. Университет, Ленинский пр-кт. - Фото 2
    Аренда ПСН, м. Университет, Ленинский пр-кт. - Фото 3
    общая площадь 18.6м², полезная площадь 18.6м²

    1-я линия магистрали со сверхинтенсивным трафиком. Аренда помещения свободного назначения общей площадью 18,6 кв.м (блок №2 на плане), расположенного на 1 этаже 8-ми этажного жилого дома по адресу: Ленинский проспект, д.81/2. Станция метро «Вавиловская»...
    • 18.6 м²
    • 1-й эт.
    235 000 Р /в месяц
    Агент
    +7 (903) Показать номер
    Посмотреть контакты
    Помещение свободного назначения в Москва ул. Академика Миллионщикова, ... - Фото 1
    Помещение свободного назначения в Москва ул. Академика Миллионщикова, ... - Фото 2
    898142-s . Предлагаем помещение свободного назначения формата street-retail, площадью 45 кв. м, расположенное на первом этаже 9-этажного жилого дома. Преимущества объекта:-первая линия ул. Академика Миллионщикова;-шаговая доступность от станции метро...
    • 1/9 эт.
    160 000 Р
    Агент
    +7 (938) Показать номер
    Посмотреть контакты
    Помещение свободного назначения в Москва Ленинградское ш., 43АС3 (151 ... - Фото 1
    Помещение свободного назначения в Москва Ленинградское ш., 43АС3 (151 ... - Фото 2
    Сдается кафе, предоставляются арендные каникулы один месяц. Кафе расположено на территории Бизнес-центра Акваспорт, основные посетители - сотрудника бизнес центра. Так же могут приходить и все желающие. Доступ на территорию, круглосуточный, бесплатный....
    • 1/2 эт.
    150 000 Р
    Агент
    +7 (916) Показать номер
    Посмотреть контакты

    Не нашли подходящего объявления?

    Оставьте заявку, и наши риэлторы подберут псн в районе Москвы

    (0)