650 000 Р 8 350 $ или 7 180

Информация об помещении

2
Этаж

Состояние и оснащение

Количество этажей
2
Развернуть
Агент
+7 (910) 004-73-97
Начать чат с агентом

Помещение свободного назначения в Москва ул. Софьи Ковалевской, 2 (409 ...

Вашему внимание ПСН 409 м Характеристики объекта: Этажность Второй этаж Общая площадь - 409 м. Высота потолка - 4 м. Два входа: отдельный вход с улицы и общий из тамбура.Коммуникации: Электрическая мощность 100 Кв/ч. Возможно увеличение. Канализация, система вентиляции, 6 мокрых точек. Состояние объекта Дизайнерский ремонт Коммунальные платежи не включены в стоимость Налогообложение НДСОкружение: В десяти минутах ходьбы от метро Селигерская Соседи: Перекресток, Аптека Фарма . Есть возможность выкупить кухонный блок и мебель для зала.Оперативный показ Все готово к заключению договора аренды Звоните Арт.

Читать полностью
    Позвонить Написать
    650 000 Р8 350 $ или 7 180
    Агент
    +7 (910) 004-73-97
    Начать чат с агентом
    Похожие предложения
    Помещение свободного назначения в Москва бул. Братьев Весниных, 1 (172 ... - Фото 1
    Помещение свободного назначения в Москва бул. Братьев Весниных, 1 (172 ... - Фото 2
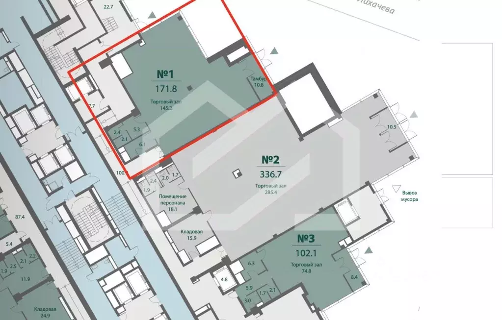
    964295-s . Предлагаем торговое помещение формата Street Retail, площадью 171,8 кв. м., расположенное на первом этаже жилого дома в ЖК Зиларт . Корпус 9. Преимущества объекта:-ЖК состоит из корпусов переменной этажности (от 3 до 43 этажей);-20 минут пешком...
    • 1/40 эт.
    644 250 Р
    Агент
    +7 (938) Показать номер
    Посмотреть контакты
    Помещение свободного назначения в Москва Кавказский бул., 51к1 (218 м) - Фото 1
    Помещение свободного назначения в Москва Кавказский бул., 51к1 (218 м) - Фото 2
    849596-s . Предлагаем помещение свободного назначения формата street-retail в ЖК Кавказский 51 , площадью 218.3 кв. м, расположенное на первом этаже 33-этажного жилого дома. Преимущества объекта:-ЖК состоит из 13 корпусов переменной этажности (от 9 до...
    • 1/33 эт.
    655 000 Р
    Агент
    +7 (938) Показать номер
    Посмотреть контакты
    Помещение свободного назначения в Москва ул. Земляной Вал, 25 (58 м) - Фото 1
    884463-s . Предлагаем торговое помещение, площадью 58,2 кв. м., расположенное на первом этаже и антресоли жилого дома. Преимущества объекта:-в 3 минутах ходьбы от выхода из метро Курская ;-помещение расположено между ТРЦ Атриум и деловым центром Ситидел...
    • 1/9 эт.
    640 000 Р
    Агент
    +7 (938) Показать номер
    Посмотреть контакты
    Помещение свободного назначения в Москва ул. Земляной Вал, 25 (56 м) - Фото 1
    Помещение свободного назначения в Москва ул. Земляной Вал, 25 (56 м) - Фото 2
    657556-s . Предлагаем помещение свободного назначения формата Street Retail, площадью 55,5 кв. м., расположенное на первом этаже жилого дома. Преимущества объекта:-первая линия ул. Земляной Вал;-6 минут пешком от ст. метро Курская, 5 минут на автомобиле...
    • 1/8 эт.
    650 000 Р
    Агент
    +7 (938) Показать номер
    Посмотреть контакты
    Помещение свободного назначения в Москва ул. Вильгельма Пика, 1 (110 ... - Фото 1
    Помещение свободного назначения в Москва ул. Вильгельма Пика, 1 (110 ... - Фото 2
    ID 62735 Предлагаю в аренду ПСН площадью 110 масположенное на первом этаже стилобатной части жилого дома входящего в состав ЖК Режиссер. Помещение с отдельным входом, зальной планировки, с витринным остеклением. Высота потолков 6 м. В настоящее время...
    • 1/28 эт.
    658 800 Р
    Агент
    +7 (980) Показать номер
    Посмотреть контакты

    Не нашли подходящего объявления?

    Оставьте заявку, и наши риэлторы подберут псн в районе Москвы

    (0)