140 000 Р 1 840 $ или 1 580

Информация об помещении

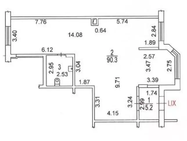
1
Этаж

Состояние и оснащение

Количество этажей
29
Развернуть
Агент
+7 (985) 064-47-60
Начать чат с агентом

Помещение свободного назначения в Москва Г мкр, РиверСкай жилой ...

Предложение для тех, кто хочет начать свой бизнес или расширить уже существующий Сдается в аренду помещение с отделкой в ЖК бизнес-класса RiverSky.Помещение площадью 35,9 м2 с потолками в 5 метров и отдельным входном:1. вы сможете расшириться и действовать как кофейня. Условия индивидуально рассмотрятся, или2. вы сможете создать пространство, которое будет отвечать всем вашим потребностям и пожеланиям.Отдельный вход и возможность размещения внешней рекламы делают это помещение идеальным для любого вида бизнеса. РиверСкай - это жилой комплекс бизнес-класса с безопасной закрытой территорией и постоянной охраной. Рядом с домом находится стадион им. Эдуарда Стрельцова и спортивный комплекс Торпедо с фитнес-центром. В шаговой доступности находятся торгово-развлекательные центры Roomer, Глобал Молл и Ривьера, кофейни и заведения на любой вкус, а также прекрасная набережная для прогулок. Вблизи расположен культурный центр ЗИЛ. Развитая инфраструктура включает в себя продуктовые магазины, детские сады, школы, фитнес-центр, торговые центры, хозяйственные магазины, аптеки.Это место обеспечит ваш бизнес стабильным потоком платежеспособных покупателей и принесет большую прибыль. Звоните, чтобы узнать больше о данном предложении и записаться на показ Выделенная мощность 20 кВт.

Читать полностью
    Позвонить Написать
    140 000 Р1 840 $ или 1 580
    Агент
    +7 (985) 064-47-60
    Начать чат с агентом
    Похожие предложения
    Помещение свободного назначения в Москва ул. Земляной Вал, 14/16 (8 м) - Фото 1
    Помещение свободного назначения в Москва ул. Земляной Вал, 14/16 (8 м) - Фото 2
    1108374-s . Предлагаем в аренду помещение свободного назначения формата Street Retail, площадью 8,3 кв. м., расположенное на первом этаже жилого дома.Преимущества объекта:-первая линия Садового кольца;-5 минут пешком от станции метро Курская;-крупный...
    • 1/8 эт.
    130 000 Р
    Агент
    +7 (938) Показать номер
    Посмотреть контакты
    Помещение свободного назначения в Москва ул. Стромынка, 15 (73 м) - Фото 1
    Помещение свободного назначения в Москва ул. Стромынка, 15 (73 м) - Фото 2
    Код объекта: 1954580.Сдается помещение на цокольном этаже, с выходом на первую линию. Выход на два помещения. Помещение с зальной планировкой. В помещении есть кондиционер и принудительная вентиляция.Сдается в долгосрочную аренду. Подходит для торговли,...
    • -1/5 эт.
    135 000 Р
    Агент
    +7 (915) Показать номер
    Посмотреть контакты
    Помещение свободного назначения в Москва ул. Лобановский Лес, 9 (52 м) - Фото 1
    Помещение свободного назначения в Москва ул. Лобановский Лес, 9 (52 м) - Фото 2
    Сдаётся коммерческое помещение 52м2 в ЖК Прокшино — метро пешкомПомещение свободного назначения в крупном, активно заселённом жилом комплексе. Локация с реальным трафиком и удобной логистикой.Преимущества и факты:• ЖК на ~37 000 жителей — мощная клиентская...
    • 1/17 эт.
    145 600 Р
    Агент
    +7 (985) Показать номер
    Посмотреть контакты
    Помещение свободного назначения в Москва Тюменский проезд, 5с3 (60 м) - Фото 1
    Помещение свободного назначения в Москва Тюменский проезд, 5с3 (60 м) - Фото 2
    Автосервис 60 мХарактеристики:Площадь: 60 м — компактный сервисИнфраструктура: все коммуникации подключеныВысокие потолки - 4 мТоп-локация: 5 мин до метро, 2 мин до СВХРасположение:5 минут пешком до метро Бульвар Рокоссовского.2 минуты до СВХ.Рядом активно...
    • 1/5 эт.
    150 000 Р
    Агент
    +7 (985) Показать номер
    Посмотреть контакты
    Помещение свободного назначения в Москва 6-я Радиальная ул., 3к2 (103 ... - Фото 1
    Помещение свободного назначения в Москва 6-я Радиальная ул., 3к2 (103 ... - Фото 2
    Сдается помещение свободного назначения. Подойдет под любой вид деятельности: от магазина широкого спектра товаров или аптеки до детской студии, зала для йоги, салона красоты, медицинского кабинета и т.д.Давно заселенный жилой дом в активно развитом районе,...
    • 1/11 эт.
    130 000 Р
    Агент
    +7 (915) Показать номер
    Посмотреть контакты

    Не нашли подходящего объявления?

    Оставьте заявку, и наши риэлторы подберут псн в районе Москвы

    (0)