5 707 313 Р 73 330 $ или 63 040

Информация об помещении

5
Этаж

Состояние и оснащение

Количество этажей
22
Развернуть
Агент
+7 (938) 656-74-88
Начать чат с агентом

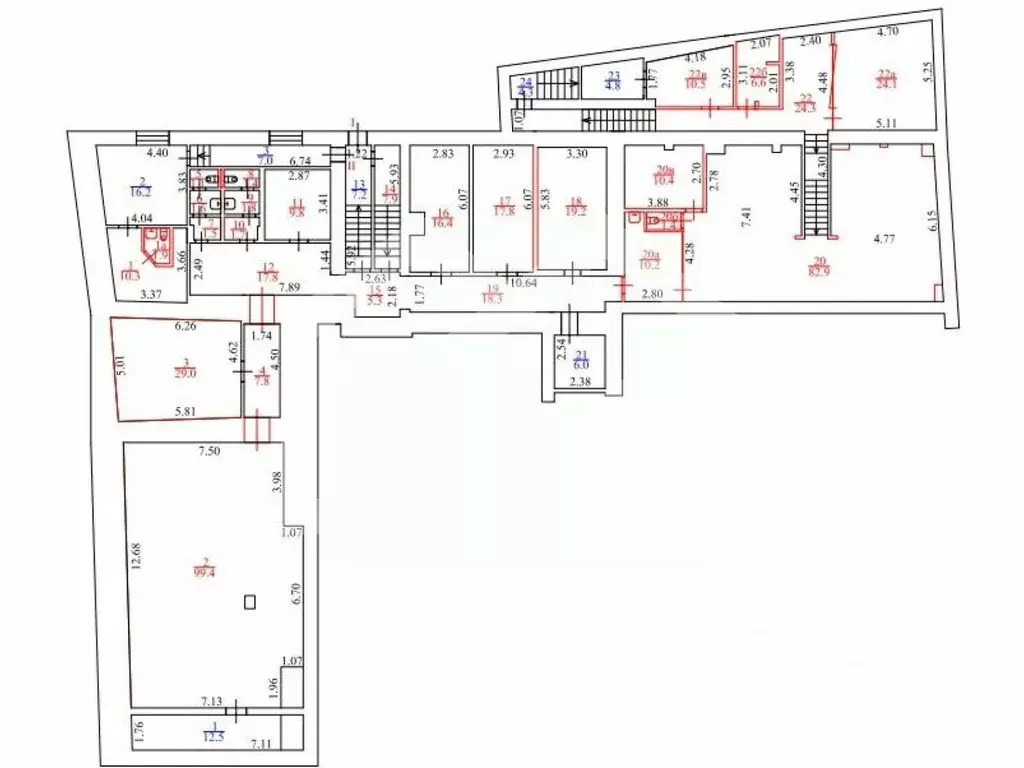
Помещение свободного назначения в Москва ул. Сущевский Вал, 18 (1497 ...

1077734-o . Предлагаем в аренду офисное помещение площадью 1497 кв. м, расположенное в бизнес-центре NOVO Преимущества объекта: - Бизнес-центр класса А- Шаговая доступность от станции метро Марьина Роща (11 минут пешком)- Этаж: 5- Помещение предлагается с отделкой- Планировка смешанная- Помещение свободно с февраля 2026 года- Подземный и наземный паркинг- Панорамное остеклениеЭксплуатационные платежи включены в ставку, коммунальные платежи оплачиваются дополнительно. Оперативно организуем для Вас показ и ответим на все вопросы.Свяжитесь с нами для получения дополнительной информации

Читать полностью
    Позвонить Написать
    5 707 313 Р73 330 $ или 63 040
    Агент
    +7 (938) 656-74-88
    Начать чат с агентом
    Похожие предложения
    Помещение свободного назначения в Москва Холодильный пер., 3 (800 м) - Фото 1
    Помещение свободного назначения в Москва Холодильный пер., 3 (800 м) - Фото 2
    1001556 . Предлагаем в аренду сервисный офис площадью 800 кв. м, рассчитанный наабочих мест и расположенный в новой очереди делового loft-квартала в историческом кластере Товарищество Рябовской Мануфактуры Преимущества объекта: - Бизнес-центр класса...
    • 3/3 эт.
    5 700 000 Р
    Агент
    +7 (938) Показать номер
    Посмотреть контакты
    Помещение свободного назначения в Москва Большой Каретный пер., 20С3 ... - Фото 1
    Помещение свободного назначения в Москва Большой Каретный пер., 20С3 ... - Фото 2
    1098907 . Предлагаем в аренду офисное помещение площадью 1 388 кв. м, расположенное в особняке по адресу Большой Каретный пер, д 20 стр 3Преимущества объекта: - Здание класса В- Шаговая доступность от станции метро Цветной бульвар (3 минуты пешком)- Этаж:...
    • 1/4 эт.
    5 783 333 Р
    Агент
    +7 (938) Показать номер
    Посмотреть контакты
    Помещение свободного назначения в Москва Калужское шоссе, 21-й км, с1 ... - Фото 1
    Помещение свободного назначения в Москва Калужское шоссе, 21-й км, с1 ... - Фото 2
    Лот 995528 Предложение от Собственника Аренда 3500 м2 складские, торговые и офисные помещения в торговом центре Мега Теплый Стан . Помещения находятся на первой линии с общей входной группой. Предоставляется возможность размещения вывески.Высота потолков...
    • 1/2 эт.
    5 775 000 Р
    Агент
    +7 (986) Показать номер
    Посмотреть контакты
    Помещение свободного назначения в Пермский край, Березники ул. Карла ... - Фото 1
    Помещение свободного назначения в Пермский край, Березники ул. Карла ... - Фото 2
    Данные получены с сайта ГИС Торги.Встроенное нежилое помещение, назначение: нежилое, количество этажей: 1, в том числе подземных 0, общей площадью 96,4 кв.м, кадастровый номер: 59:03:0400094:4656, адрес объекта: Пермский край, г. Березники, ул. Карла...
    5 600 000 Р
    Агент
    +7 (912) Показать номер
    Посмотреть контакты
    Помещение свободного назначения в Санкт-Петербург Конногвардейский ... - Фото 1
    Помещение свободного назначения в Санкт-Петербург Конногвардейский ... - Фото 2
    Данные получены с сайта ГИС Торги.Помещение 131-Н (комнаты 1-13), расположенное на 2-ом этаже, площадью 368,3 (Триста шестьдесят восемь целых три десятых) кв.м.
    • 3 этажа
    5 664 900 Р
    Агент
    +7 (981) Показать номер
    Посмотреть контакты

    Не нашли подходящего объявления?

    Оставьте заявку, и наши риэлторы подберут псн в районе Москвы

    (0)