Россия, Москва, Никитский бул., 6/20
1 650 000 Р 21 450 $ или 18 110

Информация об помещении

1
Этаж

Состояние и оснащение

Количество этажей
8
Развернуть
Агент
+7 (986) 274-27-15
Начать чат с агентом

Помещение свободного назначения в Москва Никитский бул., 6/20 (63 м)

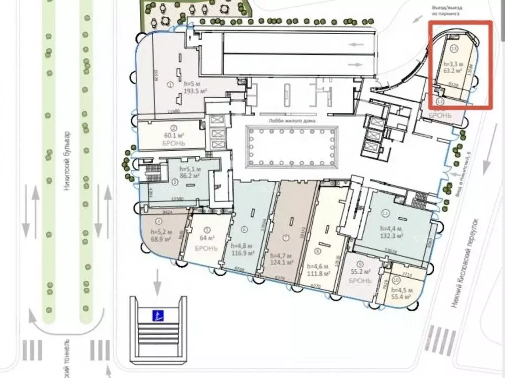
ЛотПредложение от Собственника Предлагается в аренду помещение 63,2 м2 в самом центре Москвы в Клубном доме de luxe класса Никитский 6 , расположен на пересечении улицы Воздвиженка и Никитского бульвара. Воплощение приватности и духа исторического центра Москвы. Каждое решение дома продумано, каждая деталь значима. Никитский 6 гармонично вписывается в архитектурную ткань города, вдохновлённый наследием своего окружения. Вдохновляющие виды: от открытых перспектив центра до тихих переулков исторической Москвы.Напротив находится станция метро Арбатская , в пяти минутах ходьбы - Большая Никитская улица и район Патриарших прудов. Дом будет сдан в эксплуатацию во 2 квартале 2026 года. Сейчас уже можно бронировать помещение. На плане помещение 13.Звоните Предложения горячее Место говорит само за себя В цену включено: НДС 22 . Обеспечительный платеж 1 месяц.Чтобы получить ПОДРОБНУЮ ПРЕЗЕНТАЦИЮ С ПЛАНИРОВКОЙ И ФОТОГРАФИЯМИ, звоните или отправьте свой email и номер телефона в сообщении на портале. Высылаем в течение 15 минут по запросу Конт. лицо: Лидия Владимировна, доб. 240, ЛОТ 1006434

Читать полностью
    Позвонить Написать
    1 650 000 Р21 450 $ или 18 110
    Агент
    +7 (986) 274-27-15
    Начать чат с агентом
    Похожие предложения
    Помещение свободного назначения в Москва Никитский бул., 6/20 (63 м) - Фото 1
    Помещение свободного назначения в Москва Никитский бул., 6/20 (63 м) - Фото 2
    Клубный дом de luxe класса Никитский 6, расположен на пересечении улицы Воздвиженка и Никитского бульвара. Напротив находится станция метро Арбатская, в пяти минутах ходьбы - Большая Никитская улица и район Патриарших прудов.В доме 57 квартир и четыре...
    • 1/8 эт.
    1 650 000 Р
    Агент
    +7 (981) Показать номер
    Посмотреть контакты
    Помещение свободного назначения в Москва Никитский бул., 6/20 (63 м) - Фото 1
    Помещение свободного назначения в Москва Никитский бул., 6/20 (63 м) - Фото 2
    Арт.В аренду предлагается торговое помещение в доме de luxe класса Никитский 6 , расположенном на пересечении улицы Воздвиженка и Никитского бульвара. Напротив находится станция метро Арбатская , в пяти минутах ходьбы - Большая Никитская улица и район...
    • 1/8 эт.
    1 650 000 Р
    Агент
    +7 (916) Показать номер
    Посмотреть контакты
    Помещение свободного назначения в Москва Никитский бул., 6/20 (63 м) - Фото 1
    Помещение свободного назначения в Москва Никитский бул., 6/20 (63 м) - Фото 2
    Лот 159102.Аренда помещения свободного назначения премиум-класса в знаковом месте Москвы.Адрес: г. Москва, ЦАО, Никитский бульвар, 6/20 (жилой дом De Luxe класса Никитский 6 ). Метро Арбатская 5 мин. пешком. Престижное сердце культурного и делового...
    • 1/8 эт.
    1 650 000 Р
    Агент
    +7 (985) Показать номер
    Посмотреть контакты
    Помещение свободного назначения в Москва Гоголевский бул., 3 (92 м) - Фото 1
    Помещение свободного назначения в Москва Гоголевский бул., 3 (92 м) - Фото 2
    1013536-s . Предлагаем помещение свободного назначения формата street-retail, площадью 92.4 кв. м, расположенное на первом этаже 4-этажного жилого дома. Преимущества объекта:-первая линия ул. Гоголевский;-80 м от станции метро Кропоткинская ;-удобная...
    • 1/4 эт.
    1 650 000 Р
    Агент
    +7 (938) Показать номер
    Посмотреть контакты
    Помещение свободного назначения в Москва ул. Рождественка, 5/7С2 (370 ... - Фото 1
    Помещение свободного назначения в Москва ул. Рождественка, 5/7С2 (370 ... - Фото 2
    ID: L12683Предлагаем в долгосрочную аренду помещение свободного назначения в цокольном этаже в зоне retail на первой линии улицы Рождественка под общепит, магазин, кафе, ресторан, фаст фуд.Престижная локация: первая линия улицы Рождественка, в историческом...
    • -2/3 эт.
    1 700 004 Р
    Агент
    +7 (938) Показать номер
    Посмотреть контакты

    Не нашли подходящего объявления?

    Оставьте заявку, и наши риэлторы подберут псн в районе Москвы

    (0)