235 000 Р 3 000 $ или 2 550

Информация об помещении

1
Этаж

Состояние и оснащение

Количество этажей
23
Развернуть
Агент
+7 (938) 659-26-74
Начать чат с агентом

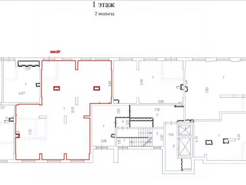
Помещение свободного назначения в Москва Новоостаповская ул., 20 (50 ...

Сдаётся в аренду коммерческое помещение площадью 50 кв. м на 1-м этаже 23-этажного жилого дома в ЖК HighWay. Основные преимущества: - Отдельный вход; - Место под вывеску; - Витринное остекление; - Помещение без ремонта, что позволяет обустроить его по своему вкусу и требованиям бизнеса; - Наличие коммуникаций: водоснабжения, канализации, электроснабжения, отопления; - Арендные каникулы; - Метро в пешей доступности; - Помещение находится в современном жилом апарт-комплексе; - Развитый район с насыщенной инфраструктурой и активным пешеходным трафиком. Технические характеристики: наличие всех необходимых коммуникаций: водоснабжение, канализация, электроснабжение. Условия: помещение предоставляется без посредников, напрямую от собственника - компании Аструм Недвижимость , которая управляет коммерческой инфраструктурой жилых комплексов ГК Гранель . ЖК HighWay - это современный жилой апарт-комплекс, расположенный в Юго-Восточном административном округе Москвы, всего в минуте ходьбы от станции метро Волгоградский проспект и недалеко от станций Дубровка и МЦК Угрешская . Удобный выезд на Волгоградский проспект обеспечивает быстрый доступ к Садовому кольцу, делая комплекс отличным выбором для активных жителей столицы. Комплекс сочетает стильный дизайн, панорамное остекление и благоустроенный двор без автомобилей с зелеными зонами и спортивными площадками. Для бизнеса предлагаются коммерческие помещения с отдельными входами, витринным остеклением и коммуникациями, идеально подходящие для различных видов деятельности. Наши менеджеры помогут вам подобрать наиболее подходящее помещение для вашего бизнеса. Звоните и узнайте подробности

Читать полностью
    Позвонить Написать
    235 000 Р3 000 $ или 2 550
    Агент
    +7 (938) 659-26-74
    Начать чат с агентом
    Похожие предложения
    Помещение свободного назначения в Москва Новоостаповская ул., 5С2 (121 ... - Фото 1
    Помещение свободного назначения в Москва Новоостаповская ул., 5С2 (121 ... - Фото 2
    Номер в базе: 9885074.КОМИССИИ ДЛЯ АРЕНДАТОРА НЕТ Сдаем в аренду помещение под общепит площадью 121,3 м, расположенное всего в 10 минутах от станции метро Волгоградский проспект, в Ледовом комплексе МОРОЗОВО .Помещение в отличном состоянии, с качественным...
    • 1/3 эт.
    242 600 Р
    Агент
    +7 (985) Показать номер
    Посмотреть контакты
    Помещение свободного назначения в Москва Новоостаповская ул., 5С2 (122 ... - Фото 1
    Помещение свободного назначения в Москва Новоостаповская ул., 5С2 (122 ... - Фото 2
    Номер в базе: 9884665.КОМИССИИ ДЛЯ АРЕНДАТОРА НЕТ Предлагаем в аренду уникальное помещение под общепит общей площадью 122,4 м, расположенное всего в 10 минутах от метро Волгоградский проспект, в Ледовом комплексе МОРОЗОВО .Описание объекта:- Помещение...
    • 1/3 эт.
    244 800 Р
    Агент
    +7 (985) Показать номер
    Посмотреть контакты
    Помещение свободного назначения в Москва № 61 кв-л, 14 (122 м) - Фото 1
    Помещение свободного назначения в Москва № 61 кв-л, 14 (122 м) - Фото 2
    Лот 158336.Сдаётся в аренду торговое помещение 122,3 м в новом ЖК Новые Ватутинки. Заречный . Адрес: г. Москва, р-н Десёновское, Троицкий административный округ, квартал 61,14, корпус 1, подъезд 2. Помещение находится в новом, активно заселяемом жилом...
    • 1/15 эт.
    244 600 Р
    Агент
    +7 (985) Показать номер
    Посмотреть контакты
    Помещение свободного назначения в Москва ул. Аэростатная, 15к9 (88 м) - Фото 1
    Помещение свободного назначения в Москва ул. Аэростатная, 15к9 (88 м) - Фото 2
    Лот 153609.В аренду предлагается помещение свободного назначения(ПСН) 88,3 м2 в центре ЖК Новое Внуково по адресу: г. Москва, пос. Кокошкино, ш. Заицевское, ЖК Новое Внуково , корпус 17 (ГК Самолёт). До станции МЦД-4 Кокошкино - 5 минут на автомобиле....
    • 1/13 эт.
    238 410 Р
    Агент
    +7 (985) Показать номер
    Посмотреть контакты
    Помещение свободного назначения в Москва ул. Бажова, 17С6 (250 м) - Фото 1
    Помещение свободного назначения в Москва ул. Бажова, 17С6 (250 м) - Фото 2
    Сдается помещение свободного назначения, хорошо подойдет под швейное производство и т.п. Есть сан узел. Помещение тёплое. Оперативный показ. Можно арендовать частично.Лот 3837
    • 1/2 эт.
    250 000 Р
    Агент
    +7 (923) Показать номер
    Посмотреть контакты

    Не нашли подходящего объявления?

    Оставьте заявку, и наши риэлторы подберут псн в районе Москвы

    (0)