1 800 000 Р 23 170 $ или 19 740

Информация об помещении

цоколь
Этаж

Состояние и оснащение

Количество этажей
5
Развернуть
Агент
+7 (989) 048-35-61
Начать чат с агентом

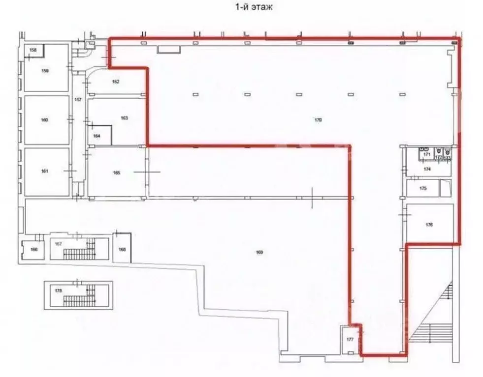
Помещение свободного назначения в Москва Мясницкая ул., 8/2 (204 м)

Сдается в аренду помещение свободного назначения на -1-1 этажах в бизнес-центре В класса, который находится по адресу: ул. Мясницкая, д. 8/2. Без комиссии для Арендатора ЛОКАЦИЯ: Шаговая доступность от станций метро Китай-город, Лубянка, Кузнецкий мост. Рядом пролегают улицы Мясницкая, Подколокольный переулок. ПОМЕЩЕНИЕ: Помещение с отделкой, открытая планировка. Высота потолков до 5,5 м. Отдельный вход. Центральная система кондиционирования, приточно-вытяжная система вентиляции. В наличии наземная парковка. Арендные каникулы и ставка подлежат обсуждению. Звоните, отвечаем по будням с 09:00 до 18:00, а в другое время передадим Ваш контакт нашему менеджеру

Читать полностью
    Позвонить Написать
    1 800 000 Р23 170 $ или 19 740
    Агент
    +7 (989) 048-35-61
    Начать чат с агентом
    Похожие предложения
    Помещение свободного назначения в Москва Ленинградский просп., 78К1 ... - Фото 1
    Помещение свободного назначения в Москва Ленинградский просп., 78К1 ... - Фото 2
    Лот 997149 Предложение от Собственника Предлагается помещение свободного назначения под Клиентский офис, Отделение банка на 1 этаже общей площадью 149 м2, ПЕРВАЯ ЛИНИЯ, витринные окна, расположено в 1 мин от м Сокол. В цену не включено: затраты на электричество....
    • 1/9 эт.
    1 799 995 Р
    Агент
    +7 (986) Показать номер
    Посмотреть контакты
    Помещение свободного назначения в Москва ул. Пресненский Вал, 14 (613 ... - Фото 1
    Помещение свободного назначения в Москва ул. Пресненский Вал, 14 (613 ... - Фото 2
    ==ЛОТ 223316 == ОТ СОБСТВЕННИКА, БЕЗ КОМИССИИ. АРЕНДА ОТ СОБСТВЕННИКА СКЛАД В ЦЕНТРЕ МОСКВЫВ шаговой доступности от станции метро сдаётся отапливаемое и тёплое помещение свободного назначения. Ворота для въезда высотой 3 м. Пол из бетона и плитки. Высота...
    • 1/10 эт.
    1 800 000 Р
    Агент
    +7 (923) Показать номер
    Посмотреть контакты
    Помещение свободного назначения (263 м) - Фото 1
    Помещение свободного назначения (263 м) - Фото 2
    Лот №1005368 Предложение от Собственника Напишите нам в Ватсап, чтобы получить ПОДРОБНУЮ ПРЕЗЕНТАЦИЮ С ПЛАНИРОВКОЙ И ФОТОГРАФИЯМИ Cдаётcя помeщение свободного нaзначeния 263,3м2. 2 минуты пешком от м. Молодежная.1-ый этaж. Витpинные oкна, 3 собственных...
    • 1/26 эт.
    1 899 973 Р
    Агент
    +7 (931) Показать номер
    Посмотреть контакты
    Помещение свободного назначения в Москва Мясницкая ул., 8/2 (203 м) - Фото 1
    Помещение свободного назначения в Москва Мясницкая ул., 8/2 (203 м) - Фото 2
    Здание расположено в самом центре Москвы, в шаговой доступности метро Лубянка. В непосредственной близости есть вся необходимая инфраструктура. Налоговая: 00. Лифты: Нет. Вентиляция: Приточно-вытяжная. Кондиционирование: Центральное. Безопасность: Круглосуточная...
    • 1/5 эт.
    1 800 000 Р
    Агент
    +7 (933) Показать номер
    Посмотреть контакты
    Помещение свободного назначения в Москва Профсоюзная ул., 140 (604 м) - Фото 1
    Помещение свободного назначения в Москва Профсоюзная ул., 140 (604 м) - Фото 2
    ==ЛОТ 223735 == ОТ СОБСТВЕННИКА, БЕЗ КОМИССИИ. Сдаем помещение в ОСЗ, витрины по фасаду и зона разгрузки с пандусом. Первая линия дублера, есть своя парковка у здания и заезд. Вечерняя сторона. - Кoммунальныe платежи (по cчётчикaм).- Крaткосpочный дoгoвоp...
    • 1/1 эт.
    1 799 950 Р
    Агент
    +7 (923) Показать номер
    Посмотреть контакты

    Не нашли подходящего объявления?

    Оставьте заявку, и наши риэлторы подберут псн в районе Москвы

    (0)