Россия, Москва, ул. Большая Якиманка, 12
2 000 000 Р 25 710 $ или 22 040

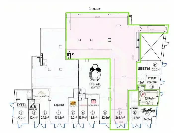
Информация об помещении

1
Этаж

Состояние и оснащение

Количество этажей
2
Развернуть
Агент
+7 (933) 786-94-18
Начать чат с агентом

Помещение свободного назначения в Москва ул. Большая Якиманка, 12 (363 ...

ПЛАТИМ АГЕНТАМ. Поможем с планом рассадки, ремонтом, мебелью. Современное 2-х этажное здание с уникальной архитектурой. Престижное местоположение. Развитая транспортная доступность, собственные парковочные места. Вблизи расположено несколько станций метрополитена, Садовое и ТТК, 1 км до Кремля.Налоговая: 06. Лифты: Нет. Вентиляция: Естественная. Кондиционирование: Сплит-системы. Безопасность: Круглосуточный доступ, Система пожаротушений, Видеонаблюдение. Парковка: Наземная. Описание помещения: Функциональная планировка - есть зона ресепшн, 10 кабинетов, переговорная комната, кухня и собственные санузлы.Круглосуточный доступ. Выполнен современный ремонт.Планировка: кабинетная. Дизайнерский ремонт. VIP-офис. Высокие потолки. Тип налогообложения: С НДС. Кол-во парковочных мест: 4. Лот

Читать полностью
    Позвонить Написать
    2 000 000 Р25 710 $ или 22 040
    Агент
    +7 (933) 786-94-18
    Начать чат с агентом
    Похожие предложения
    Помещение свободного назначения в Москва Кольская ул., 2к4 (938 м) - Фото 1
    Помещение свободного назначения в Москва Кольская ул., 2к4 (938 м) - Фото 2
    1094597. Предлагаем в аренду офисное помещение площадью 938,08 кв. м, расположенное в бизнес-центре РТС Свиблово Преимущества объекта: - Бизнес-центр класса В- Шаговая доступность от станции метро Свиблово (4 минуты пешком)- Этаж: 6- Помещение предлагается...
    • 6/8 эт.
    2 071 593 Р
    Агент
    +7 (938) Показать номер
    Посмотреть контакты
    Помещение свободного назначения в Москва Чапаевский пер., 14 (613 м) - Фото 1
    Помещение свободного назначения в Москва Чапаевский пер., 14 (613 м) - Фото 2
    943311. Предлагаем в аренду офисное помещение площадью 613 кв. м, расположенное в бизнес-центре Сокол Плейс Преимущества объекта:- Бизнес-центр класса В+- Шаговая доступность от станции метро Сокол (11 минут пешком)- Этаж: 6- Помещение предлагается с...
    • 6/6 эт.
    1 941 166 Р
    Агент
    +7 (938) Показать номер
    Посмотреть контакты
    Помещение свободного назначения в Москва Таганская ул., 17-23 (459 м) - Фото 1
    Помещение свободного назначения в Москва Таганская ул., 17-23 (459 м) - Фото 2
    1093894. Предлагаем в аренду офисное помещение площадью 459 кв. м, расположенное в бизнес-центре Мосэнка 4 Преимущества объекта:- Бизнес-центр класса А- Шаговая доступность от станции метро Марксистская, Таганская (7-9 минут пешком)- Этаж: 5- Помещение...
    • 5/12 эт.
    1 913 265 Р
    Агент
    +7 (938) Показать номер
    Посмотреть контакты
    Помещение свободного назначения в Москва Бережковская наб., 16А (519 ... - Фото 1
    Помещение свободного назначения в Москва Бережковская наб., 16А (519 ... - Фото 2
    1131378. Предлагаем в аренду офисное помещение площадью 519 кв. м, расположенное в бизнес-центре Riverside Station Преимущества объекта: - Бизнес-центр класса В- Шаговая доступность от станции метро Киевская (8 минуты пешком);- Этаж: 1- Помещение предлагается...
    • 1/4 эт.
    1 946 250 Р
    Агент
    +7 (938) Показать номер
    Посмотреть контакты
    Помещение свободного назначения в Москва Рябиновая ул., 41к1 (796 м) - Фото 1
    Помещение свободного назначения в Москва Рябиновая ул., 41к1 (796 м) - Фото 2
    1080793. Предлагаем в аренду офисное помещение площадью 796,3 кв. м, расположенное в деловом комплексе РТС Рябиновая Преимущества объекта: - Бизнес-центр класса В- Транпортная доступность от станции метро Аминьевская (9 минут на авто)- Этаж: 7-8- Помещение...
    • 7/8 эт.
    2 023 929 Р
    Агент
    +7 (938) Показать номер
    Посмотреть контакты

    Не нашли подходящего объявления?

    Оставьте заявку, и наши риэлторы подберут псн в районе Москвы

    (0)