2 900 000 Р 36 970 $ или 31 360

Состояние и оснащение

Количество этажей
5
Развернуть
Агент
+7 (925) 783-02-62
Начать чат с агентом

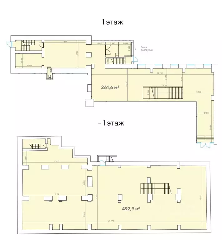
Помещение свободного назначения (316.8 м)

Сдается в аренду помещение свободного назначения на -1-1 этажах и антресоли в бизнес-центре В класса, который находится по адресу: ул. Мясницкая, д. 8/2. Без комиссии для Арендатора ЛОКАЦИЯ:– Шаговая доступность от станций метро Китай-город, Лубянка, Кузнецкий мост.– Рядом пролегают улицы Мясницкая, Подколокольный переулок.ПОМЕЩЕНИЕ:– Помещение с отделкой, открытая планировка.– Высота потолков до 5,5 м.– Отдельный вход.– Центральная система кондиционирования, приточно-вытяжная система вентиляции.– В наличии наземная парковка.– Арендные каникулы и ставка подлежат обсуждению.Звоните, отвечаем по будням с 09:00 до 18:00, а в другое время передадим Ваш контакт нашему менеджеру

Читать полностью
    Позвонить Написать
    2 900 000 Р36 970 $ или 31 360
    Агент
    +7 (925) 783-02-62
    Начать чат с агентом
    Похожие предложения
    Помещение свободного назначения в Москва Мясницкая ул., 8/2 (317 м) - Фото 1
    Помещение свободного назначения в Москва Мясницкая ул., 8/2 (317 м) - Фото 2
    Здание расположено в самом центре Москвы, в шаговой доступности метро Лубянка. В непосредственной близости есть вся необходимая инфраструктура. Налоговая: 00. Лифты: Нет. Вентиляция: Приточно-вытяжная. Кондиционирование: Центральное. Безопасность: Круглосуточная...
    • 1/5 эт.
    2 900 000 Р
    Агент
    +7 (933) Показать номер
    Посмотреть контакты
    Помещение свободного назначения в Москва Троилинский пер., 4/7 (629 м) - Фото 1
    Помещение свободного назначения в Москва Троилинский пер., 4/7 (629 м) - Фото 2
    Центр столицы Предлагается в аренду помещение свободного назначения 628,9 м2, расположенное на 1-ом и цокольном этажах жилого дома. В минуте пешком от метро Смоленская. Отдельный вход с улицы. Кабинетная планировка. Крайний арендатор - клиника...
    • 1/5 эт.
    2 950 000 Р
    Агент
    +7 (916) Показать номер
    Посмотреть контакты
    Помещение свободного назначения в Московская область, Солнечногорск ... - Фото 1
    Помещение свободного назначения в Московская область, Солнечногорск ... - Фото 2
    Аренда производственно-складского помещения 1875 кв.м в ЕсиповоВысота: 8 мНагрузка на пол: 4 т/кв.мСрок сдачи 4 квартал 2025ВАЖНОПрямая аренда от собственникаСтоимость указана с учётом НДСОСНОВНЫЕ ХАРАКТЕРИСТИКИ- Площадь: 1875 кв.м- Температура: Сухой-...
    • 1/3 эт.
    2 812 500 Р
    Агент
    +7 (923) Показать номер
    Посмотреть контакты
    Помещение свободного назначения в Москва Мясницкая ул., 8/2 (317 м) - Фото 1
    Помещение свободного назначения в Москва Мясницкая ул., 8/2 (317 м) - Фото 2
    Сдается в аренду помещение свободного назначения на -1-1 этажах и антресоли в бизнес-центре В класса, который находится по адресу: ул. Мясницкая, д. 8/2. Без комиссии для Арендатора ЛОКАЦИЯ: Шаговая доступность от станций метро Китай-город, Лубянка, Кузнецкий...
    • -1/5 эт.
    2 900 000 Р
    Агент
    +7 (989) Показать номер
    Посмотреть контакты
    Помещение свободного назначения в Москва ул. Красная Пресня, 12 (755 ... - Фото 1
    Помещение свободного назначения в Москва ул. Красная Пресня, 12 (755 ... - Фото 2
    Аренда помещения на 1 и -1 этажах
    • 1/9 эт.
    2 950 000 Р
    Агент
    +7 (981) Показать номер
    Посмотреть контакты

    Не нашли подходящего объявления?

    Оставьте заявку, и наши риэлторы подберут псн в районе Москвы

    (0)