86 250 Р 1 110 $ или 939

Информация об помещении

1
Этаж

Состояние и оснащение

Количество этажей
3
Развернуть
Агент
+7 (923) 079-30-13
Начать чат с агентом

Помещение свободного назначения в Москва ул. Ленинская Слобода, 17 (38 ...

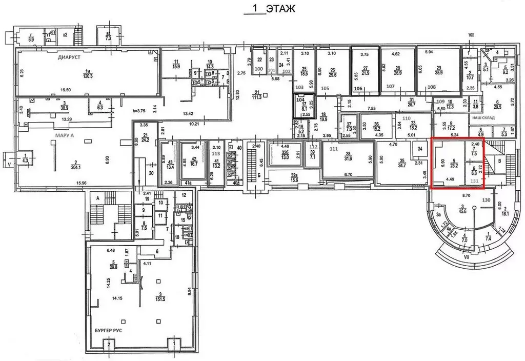
Лот: 418998, бизнес-центр Ленинская Слобода, 17. БЕЗ КОМИССИИ Сдается в аренду ПСН/ складское помещение площадью 37,5 м2 на 1 этаже в офисном здании класса B Ленинская Слобода, 17, расположенном в 3 минутах пешком от метро Автозаводская. Планировка: 3 кабинета: 23,2 м2 , 7,5 м2 и 6,8 м2. Состояние помещения: с ремонтом. Высота потолков — 4 м. Техническое оснащение: естественная вентиляция. Установка кондиционера оформляется отдельным договорам (по согласованию с Арендодателем). В здании нет лифта. Безопасность: Круглосуточная охрана и контроль доступа. В арендную плату включено: НДС, коммунальные платежи и эксплуатационные расходы. В летний период с мая по сентябрь отдельно оплачивается система кондиционирования. На оказание услуг предоставления интернета и телефонии заключается договор с провайдером — ООО Оптима Коммуникейшенс , 1 месяц пользования интернетом в подарок — акция при заключении договора на оказание услуг. Обеспечительный платеж равен одному месяцу аренды и не возвращается при досрочном расторжении договора аренды по инициативе Арендатора. Уборка помещенияаза в неделю включена в стоимость аренды.Предоставляется юридический адрес (уб — разовый платеж за весь период ареды). Залог — 1 месяц. Налоговая 25. Парковки нет, рядом — городская платная парковка. Режим работы: 8:00-22:00. Сдается под слкад, фулфилмент, не под производство (вытяжки, мощностей, воды нет).

Читать полностью
    Позвонить Написать
    86 250 Р1 110 $ или 939
    Агент
    +7 (923) 079-30-13
    Начать чат с агентом
    Похожие предложения
    Помещение свободного назначения в Москва ул. Ленинская Слобода, 17 (38 ... - Фото 1
    Помещение свободного назначения в Москва ул. Ленинская Слобода, 17 (38 ... - Фото 2
    Лот: 418888, бизнес-центр Ленинская Слобода, 17. БЕЗ КОМИССИИ Сдается в аренду склад площадью 37,5 м2 на 1 этаже в офисном здании класса B Ленинская Слобода, 17, расположенном в 3 минутах пешком от метро Автозаводская. Планировка: 3 кабинета: 23,2 м2...
    • 1/3 эт.
    86 250 Р
    Агент
    +7 (923) Показать номер
    Посмотреть контакты
    Помещение свободного назначения (38 м) - Фото 1
    Помещение свободного назначения (38 м) - Фото 2
    Лот № 418998. БЕЗ КОМИССИИ Сдается в аренду ПСН/ складское помещение площадью 37,5 м2 на 1 этаже в офисном здании класса B Ленинская Слобода, 17 , расположенном в 3 минутах пешком от метро Автозаводская. Планировка: 3 кабинета: 23,2 м2 , 7,5 м2 и 6,8...
    • 1/3 эт.
    86 250 Р
    Агент
    +7 (984) Показать номер
    Посмотреть контакты
    Помещение свободного назначения (38 м) - Фото 1
    Помещение свободного назначения (38 м) - Фото 2
    Лот № 418888. БЕЗ КОМИССИИ Сдается в аренду склад площадью 37,5 м2 на 1 этаже в офисном здании класса B Ленинская Слобода, 17 , расположенном в 3 минутах пешком от метро Автозаводская. Планировка: 3 кабинета: 23,2 м2 , 7,5 м2 и 6,8 м2. Состояние помещения:...
    • 1/3 эт.
    86 250 Р
    Агент
    +7 (984) Показать номер
    Посмотреть контакты
    Выгодная аренда - Фото 1
    Выгодная аренда - Фото 2
    Выгодная аренда - Фото 3
    полезная площадь 70м²

    Предлагается в продажу помещение свободного назначения, расположенное в ЖК {{building-name}}, площадью {{area-value}}. Располагается на {{floor}}-м этаже {{floors}}-этажного корпуса. Помещение идеально подойдет для магазина, кафе, офиса или другого бизнеса...
    • 70 м²
    • 1/44 эт.
    495 900 Р /в месяц
    Агент
    +7 (495) Показать номер
    Посмотреть контакты
    Аренда ПСН площадью 34,6 м2 - Фото 1
    Аренда ПСН площадью 34,6 м2 - Фото 2
    Аренда ПСН площадью 34,6 м2 - Фото 3
    Аренда ПСН площадью 34,6 м2 - Фото 4
    Аренда ПСН площадью 34,6 м2 - Фото 5
    Аренда ПСН площадью 34,6 м2 - Фото 6
    Аренда ПСН площадью 34,6 м2 - Фото 7
    Аренда ПСН площадью 34,6 м2 - Фото 8
    Аренда ПСН площадью 34,6 м2 - Фото 9
    полезная площадь 34.6м²

    Помещение формата СТРИТ РИТЕЙЛ, расположено на 1 этаже дома в составе ЖК ОСТРОВ, квартал 4, корпус 7. Площадь – 34,6 кв.м, свободного назначения. Помещение с панорамным остеклением. Отдельный вход. Электрическая мощность 15 кВт. Высота помещения...
    • 34.6 м²
    • 1/16 эт.
    250 000 Р /в месяц
    Агент
    +7 (495) Показать номер
    Посмотреть контакты

    Не нашли подходящего объявления?

    Оставьте заявку, и наши риэлторы подберут псн в районе Москвы

    (0)